Vuokrataan toimistotilat - Helsinki
Valimotie 1, Pitäjänmäki, 00380 Helsinki #10794354
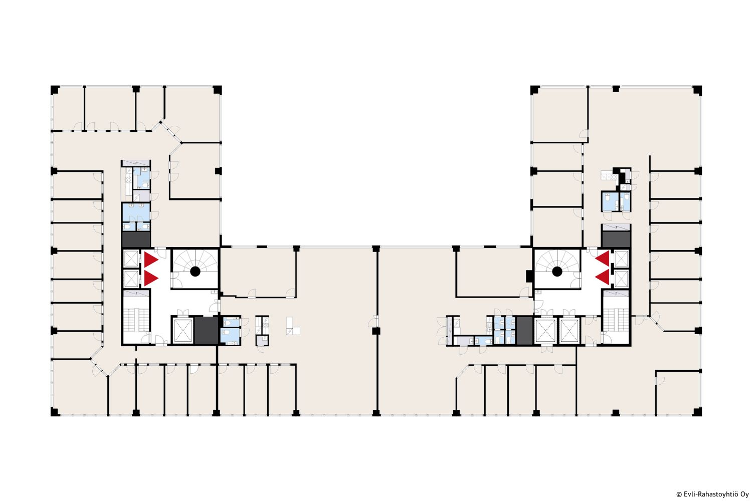
Vuokralaisen tarpeiden mukaan moderniksi saneerattavissa avara toimistotila kiinteistön neljännessä kerroksessa. Tila kattaa koko kerroksen ja voidaan jakaa myös pienempiin kokonaisuuksiin 3-4 käyttäjälle. Toivotuilla muutostöillä voi olla vaikutusta tilan vuokraan. Ohessa esimerkkikuvia tilan mahdollisesta muodosta (kuvat otettu 7. kerroksen mallitilasta, missä saneeraus toteutettu vuonna 2023). Kysy lisätietoja tästä tilasta!
Valimo 1 tarjoaa remontoitua viihtyisää jäähdytettyä toimistotilaa Pitäjänmäellä, joka on pääkaupunkiseudun suurimpia toimistokeskittymiä yhteensä noin 19 000 työpaikallaan. Valimotielle on helppo saapua: parkkitilaa on runsaasti, vierailijat pysäköivät veloituksetta ja Raide-jokeri tuo sinut aivan pääoven eteen. Ensimmäisen kerroksen lounasravintola tarjoaa henkilöstölle maittavaa ruokaa. Alueella on myös laaja tarjonta toimistotyöntekijöille suunnattuja palveluja kuten useampi kuntosali sekä Talin alue golfkenttineen ja lenkkipolkuineen ovat aivan kulman takana.
joista 140 löytyy lämpimästä autohallista. Vierailijat voivat jättää autonsa parkkiin ilmaiseksi talon edustalle.
Jaettavissa
Evli
Aleksanterinkatu 19, 00100 Helsinki
Näytä puhelinnumero
020 155 8610
Saara Raitaranta
Näytä puhelinnumero
040 504 3345
Elina Gröning
Näytä puhelinnumero
041 466 7401
