Vuokrataan toimistotilat - Espoo
Lars Sonckin kaari 14, Leppävaara, 02800 Espoo #10793115
Vuokrataan Stella Business Parkista laadukasta ja modernia toimistotilaa
Osoite
Lars Sonckin kaari 14, 02800 Espoo
Tilatyyppi
Toimistotilaa
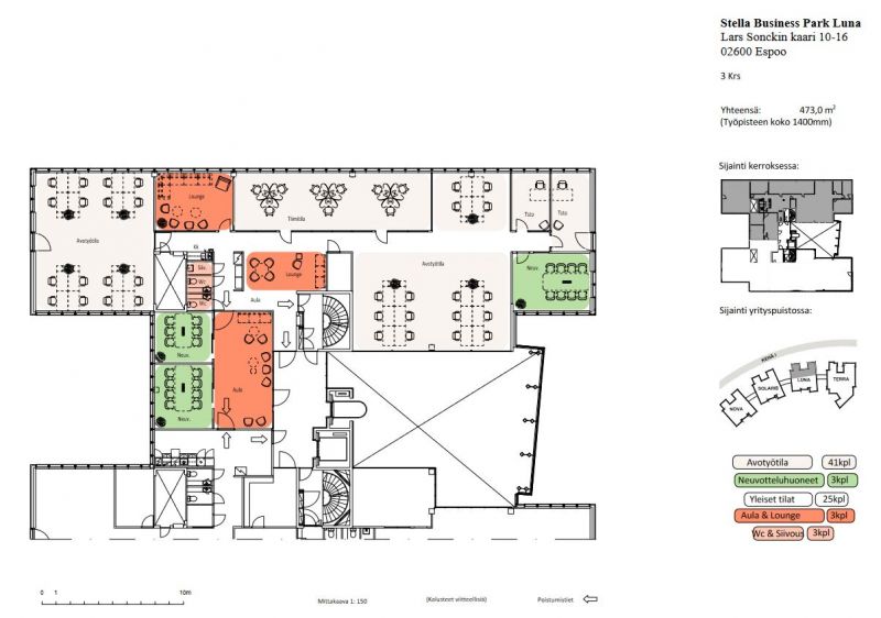
11 - 472,4 m2
Tilajako
Vapaat tilat: 38.2m² / 52.9m² / 15.1m² / 11m² / 11.1m² / 264m² /123.4m² / 106.4m²/ 18.7m² / 182.3m² / 100m² / 472.4m²
Kiinteistö
Vapaana Stella Business Parkista laadukasta ja modernia toimistotilaa
Kiinteistössä toimistotiloja vapaana:
Vapaat tilat:
- 264m² / 6. kerros kulmatoimisto Valoisa, avara ja täysin muokattavissa oleva toimistotila odottaa seuraavaa toimijaansa. Tähän tilaan on helppo ihastua, sillä kolmeen suuntaan avautuvat vehreät näkymät ja ulkoseiniä halkovat ikkunarivistöt takaavat viihtyvyyden ympäri vuoden. Tästä tilasta kuljet kätevästi samassa talossa sijaitsevaan kattokerroksen kuntosaliin sekä uudenkarheisiin POOL-joustotiloihin.
- 472.4m² / 3. kerros Juuri vapautunut valoisa, avara ja lähes muuttovalmis kolmannen kerroksen toimistotila odottaa seuraavaa toimijaansa. Tähän tilaan on helppo ihastua, sillä neljään suuntaan avautuvat vehreät näkymät ja ulkoseiniä halkovat ikkunarivistöt takaavat viihtyvyyden ympäri vuoden. Tästä tilasta saat yrityksellenne sopivan pienellä pintaremontilla.
- 38.2m² / 4. kerros vapaa huone pientoimistoalueella
- 52.9m² / 1. kerros kompakti ja viihtyisä toimistotila.
- 15.1m² / vapaana neljännen kerroksen pientoimisto.
- 11m² / 4. kerros vapaana neljännen kerroksen pientoimisto.
- 11.1m² / Vapaana neljännen kerroksen pientoimisto.
- 123.4m² / Vapaana ensimmäisen kerroksen toimisto
- 106.4m² / Vapaana ensimmäisen kerroksen toimisto
- 18.7m² / Vapaana neljännen kerroksen pientoimisto.
- 182.3m² / Vapaana ensimmäisen kerroksen toimisto
- 100m² / Vapaana neljännen kerroksen pientoimisto.
Stella Business Parkissa ollaan panostettu laadukkaaseen palvelutarjontaan sekä työviihtyvyyttä ja hyvinvointia lisääviin ratkaisuihin. Yrityspuistossa on tarjolla muun muassa aula- ja postituspalvelu, avara kuntosali, juuri valmistunut auditorio, upeat kattokerroksen saunatilat, neuvottelukeskus, autopesula sekä lounasravintola. Yrityspuistossa on myös kaksi suurta parkkihallia, runsaasti parkkitilaa ja sähköauton latauspisteitä.
Kiinteistössä toimistotiloja vapaana:
Vapaat tilat:
- 264m² / 6. kerros kulmatoimisto Valoisa, avara ja täysin muokattavissa oleva toimistotila odottaa seuraavaa toimijaansa. Tähän tilaan on helppo ihastua, sillä kolmeen suuntaan avautuvat vehreät näkymät ja ulkoseiniä halkovat ikkunarivistöt takaavat viihtyvyyden ympäri vuoden. Tästä tilasta kuljet kätevästi samassa talossa sijaitsevaan kattokerroksen kuntosaliin sekä uudenkarheisiin POOL-joustotiloihin.
- 472.4m² / 3. kerros Juuri vapautunut valoisa, avara ja lähes muuttovalmis kolmannen kerroksen toimistotila odottaa seuraavaa toimijaansa. Tähän tilaan on helppo ihastua, sillä neljään suuntaan avautuvat vehreät näkymät ja ulkoseiniä halkovat ikkunarivistöt takaavat viihtyvyyden ympäri vuoden. Tästä tilasta saat yrityksellenne sopivan pienellä pintaremontilla.
- 38.2m² / 4. kerros vapaa huone pientoimistoalueella
- 52.9m² / 1. kerros kompakti ja viihtyisä toimistotila.
- 15.1m² / vapaana neljännen kerroksen pientoimisto.
- 11m² / 4. kerros vapaana neljännen kerroksen pientoimisto.
- 11.1m² / Vapaana neljännen kerroksen pientoimisto.
- 123.4m² / Vapaana ensimmäisen kerroksen toimisto
- 106.4m² / Vapaana ensimmäisen kerroksen toimisto
- 18.7m² / Vapaana neljännen kerroksen pientoimisto.
- 182.3m² / Vapaana ensimmäisen kerroksen toimisto
- 100m² / Vapaana neljännen kerroksen pientoimisto.
Stella Business Parkissa ollaan panostettu laadukkaaseen palvelutarjontaan sekä työviihtyvyyttä ja hyvinvointia lisääviin ratkaisuihin. Yrityspuistossa on tarjolla muun muassa aula- ja postituspalvelu, avara kuntosali, juuri valmistunut auditorio, upeat kattokerroksen saunatilat, neuvottelukeskus, autopesula sekä lounasravintola. Yrityspuistossa on myös kaksi suurta parkkihallia, runsaasti parkkitilaa ja sähköauton latauspisteitä.
Sijainti
Stella Business Park on vuokralaistensa suosittelema kohde, jossa ystävällinen palvelu ja toiminnan kehittäminen kohtaavat. Suosittu sijainti Leppävaarassa juna-aseman ja Sellon palveluiden lähellä houkuttelee työntekijöitä ympäri pääkaupunkiseutua. Stellassa on tarjolla runsaasti myös parkkitilaa."
Ympäristö
Yrityspuiston monipuoliset palvelut varmistavat, että työpäivien lomassa nautit herkulliset lounaat, pesetät autosi ja huollat kehoasi kuntosalilla tai kiropraktikon käsittelyssä. Voit jopa istahtaa etäpalaverin ajaksi parturi-kampaamon hellään huomaan tai järjestää kattokerroksen saunatiloissa yrityksenne afterworkit.
Vapautuu
Heti
Energiatehokkuusluokka
Ei lain edellyttämää energiatodistusta
Näkyvällä paikalla
Ota yhteyttä
Arvo Premises Oy
Joakim Kukkonen
Osakas, Toimitilavälittäjä
Näytä puhelinnumero
040 555 8106
Seppo Pakarinen
Osakas, Kiinteistönvälittäjä. LKV, YKV, AKA
Näytä puhelinnumero
040-703 8000
Pyydä lisätietoa
