Vuokrataan toimistotilat - Espoo
Kutojantie 7, Nihtisilta, 02630 Espoo #10793110
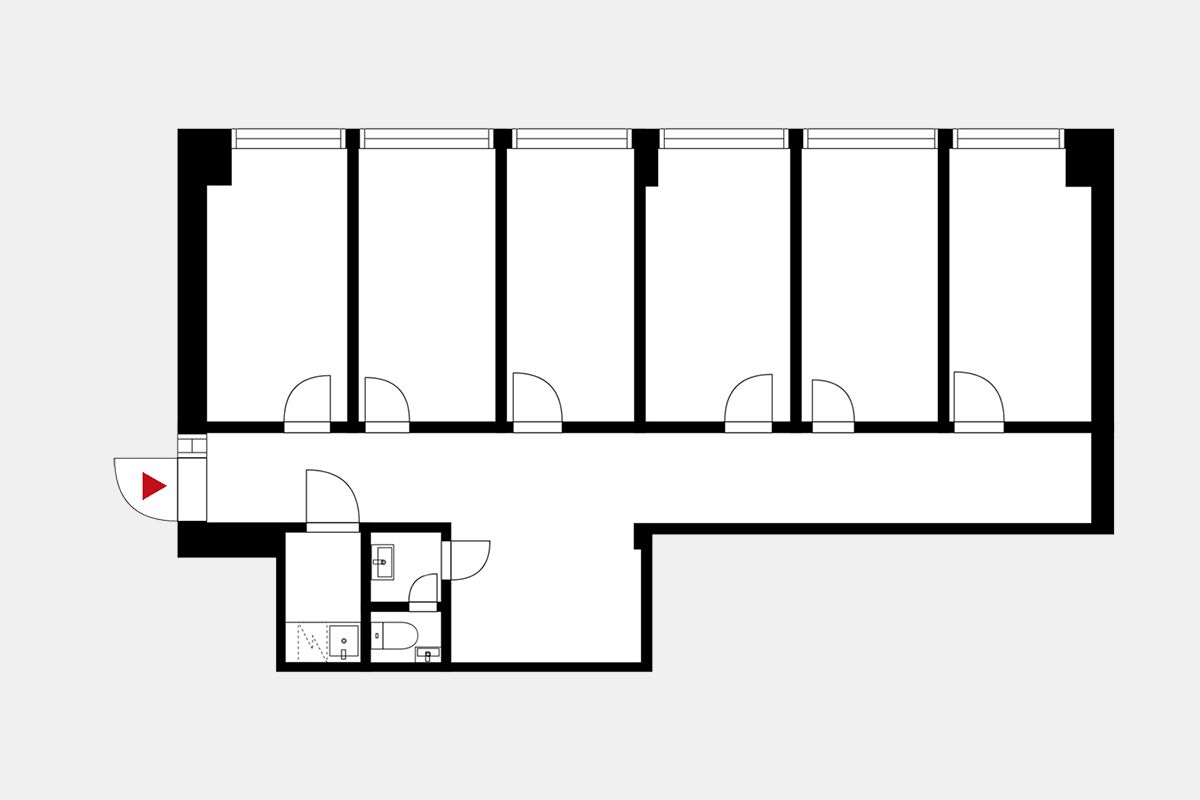
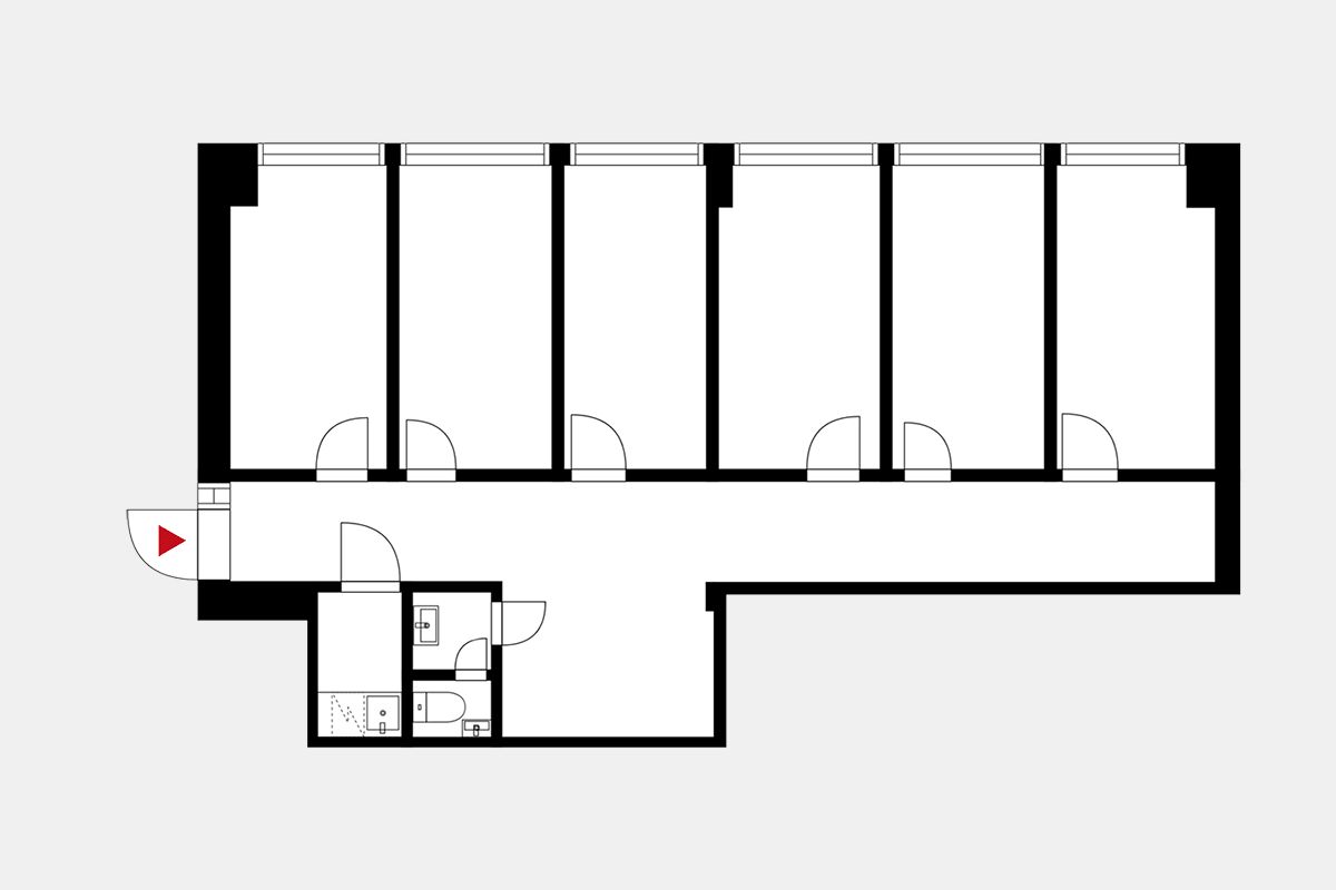
Vapaana siisti neljännen kerroksen toimistotila Kutojankatu 7:ssa. Tilasta on yhteys tavarahissillä alempiin kerroksiin. Monipuolinen ja tehokas tila voidaan toteuttaa joko avo- tai huonetoimistona tai näiden yhdistelmänä.
Kutojantie 7 on toimitilakohde, jolla on sujuva sijainti Espoossa. Kiinteistö sijaitsee reilun viiden minuutin kävelymatkan päässä Keran juna-asemalta ja busseja kulkee sujuvasti moneen suuntaan. Turunväylä ja Kehä II ovat nekin aivan vieressä. Vaikka valtaväylät ovat lähellä, on kohde suojassa liikenteen hälinältä rauhallisella Nihtisillan työpaikka-alueella. Rakennuksen ylimmästä kerroksesta löytyy vuokralaisten käytössä oleva saunaosasto sekä neuvottelutilat.
Croisette on uusi ja innovatiivinen toimitilojen välitysyritys Suomessa. Meillä on vahva halu auttaa teitä löytämään paras toimitilaratkaisu mahdollisimman vaivattomasti.
Huomaathan, että kaikki vapaat ja vapautuvat tilat ovat kauttamme saatavilla. Osa tiloista on hiljaisessa markkinoinnissa, mutta ottamalla meihin yhteyttä saat nekin tietoosi.
Palvelumme on tilanhakijoille täysin maksutonta.
Hissi
Croisette Real Estate Partner
Erottajankatu 5 A 6, 00130 Helsinki
Näytä puhelinnumero
+358 400 585 857
Croisette Vuokraus
Näytä puhelinnumero
+358400585857
