Vuokrataan toimistotilat - Helsinki
Kumpulantie 5, Vallila, 00520 Helsinki #10793105
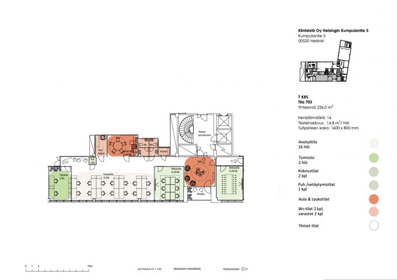
Ylimmän kerroksen tehokas 236 m² toimisto viihtyisässä kiinteistössä Vallilan kehittyvällä toimistoalueella.
Osoite
Kumpulantie 5, 00520 Helsinki
Tilatyyppi
Toimistotilaa
236 m2
Pohjapiirros
Kiinteistö
Ylimmän kerroksen toimisto, jossa on käytössä oma parveke. Tehokas toimisto avotilalla ja kahdella neuvotteluhuoneella.
Tila vuokrataan muuten nykykunnossa, mutta sinne vaihdetaan paikoittain uudet palamatot, valaisimet uusitaan, keittiön taso vaihdetaan, jääkaappi uusitaan sekä seinät huoltomaalataan
Tila vuokrataan muuten nykykunnossa, mutta sinne vaihdetaan paikoittain uudet palamatot, valaisimet uusitaan, keittiön taso vaihdetaan, jääkaappi uusitaan sekä seinät huoltomaalataan
Sijainti
Vallila
Pysäköinti
Pysäköintipaikkoja tarjolla talon omasta parkkihallista ja talon pihalta. Lähellä myös Itä-Pasilan pysäköintilaitokset.
Kulkuyhteydet
Raitiovaunupysäkki suoraan kiinteistön edessä, Pasilan juna-asema kävelymatkan päässä.
Metroasema 1,9 km, Raitiovaunupysäkki alle 100 m, Bussipysäkki 100 m, Juna-asema 600 m, Lentoasema 13,5 km.
Metroasema 1,9 km, Raitiovaunupysäkki alle 100 m, Bussipysäkki 100 m, Juna-asema 600 m, Lentoasema 13,5 km.
Vapautuu
Heti
Kerros
7 / 7
Energiatehokkuusluokka
Ei lain edellyttämää energiatodistusta
Näkyvällä paikalla
Hissi
Ota yhteyttä
ScanReal Oy LKV
Opus Business Park
Hitsaajankatu 24
00810 Helsinki
info@scanreal.fi
Puh:
Näytä puhelinnumero
020 730 8830
Sopivat toimitilat yhdellä otolla!
Kartoitamme toimitilatarpeesi ja etsimme yrityksellesi parhaiten sopivat vapaat toimitilat. Koska vuokranantajat maksavat palvelumme, on tämä yrityksellesi veloituksetonta.
OTA YHTEYTTÄ - SOVI NÄYTTÖ!
Kaikki kohteemme eivät ole netissä, kerro tilatarpeesi niin kartoitamme vaihtoehdot.
Palvelumme on tilanhakijalle ilmainen
Pyydä lisätietoa
