Vuokrataan toimistotilat - Helsinki
Takomotie 1-3, Pitäjänmäki, 00381 Helsinki #10792480
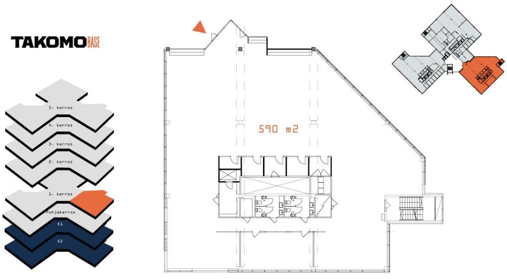
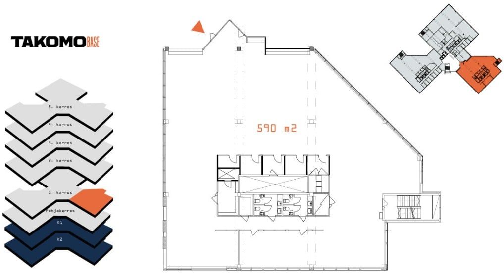
Tämä ensimmäisen kerroksen toimistotila on osittain remontoitu ja on toiminut Takomo Basen showroomina. Tätä tilaa on jaettu soveltumaan monenlaiseen työskentelyyn, ja se tarjoaa niin avointa yilaa kuin työhuoneita. Avokonttorissa onnistuu tehokas kommunikaatio kollegoiden välillä, ja erillisissä huoneissa rauha ja yksityisyys on taattu. Tarvittaessa teitä varten voidaan tehdä vielä tilamuutoksia.
Takomo Basen kiinteistö edustaa linjakasta 2000-luvun arkkitehtuuria ja tarjoaa avaraa sekä valoisaa toimitilaa hyvillä palveluilla: talon palveluihin kuuluu mm. kuntosali, suihku- ja pukuhuonetilat, aulapalvelu, ravintola sekä neuvottelutiloja.
Croisette on uusi ja innovatiivinen toimitilojen välitysyritys Suomessa. Meillä on vahva halu auttaa teitä löytämään paras toimitilaratkaisu mahdollisimman vaivattomasti.
Huomaathan, että kaikki vapaat ja vapautuvat tilat ovat kauttamme saatavilla. Osa tiloista on hiljaisessa markkinoinnissa, mutta ottamalla meihin yhteyttä saat nekin tietoosi.
Palvelumme on tilanhakijoille täysin maksutonta.
Hissi
Croisette Real Estate Partner
Erottajankatu 5 A 6, 00130 Helsinki
Näytä puhelinnumero
+358 400 585 857
Croisette Vuokraus
Näytä puhelinnumero
+358400585857
