Vuokrataan toimistotilat - Helsinki
Fabianinkatu 8, Kaartinkaupunki, 00130 Helsinki #10790872
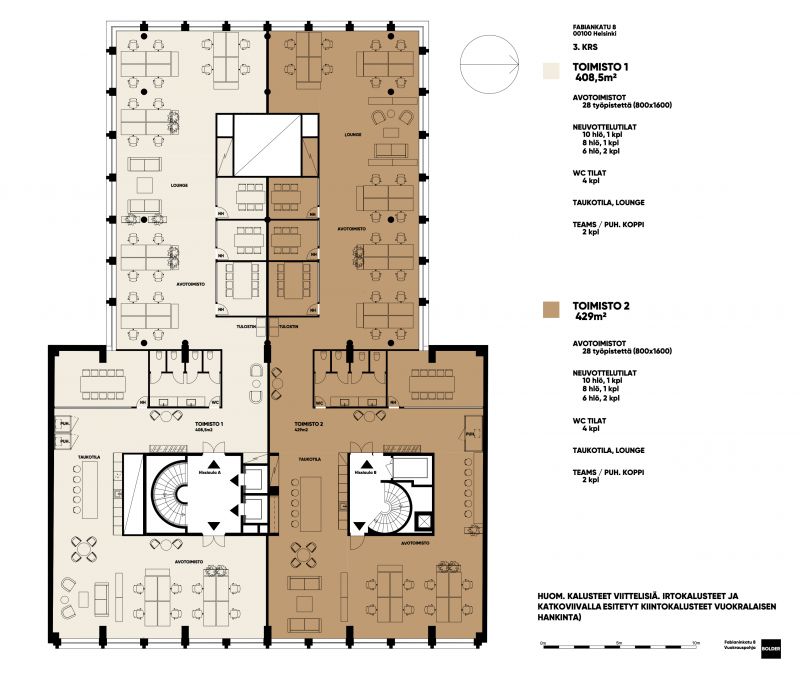
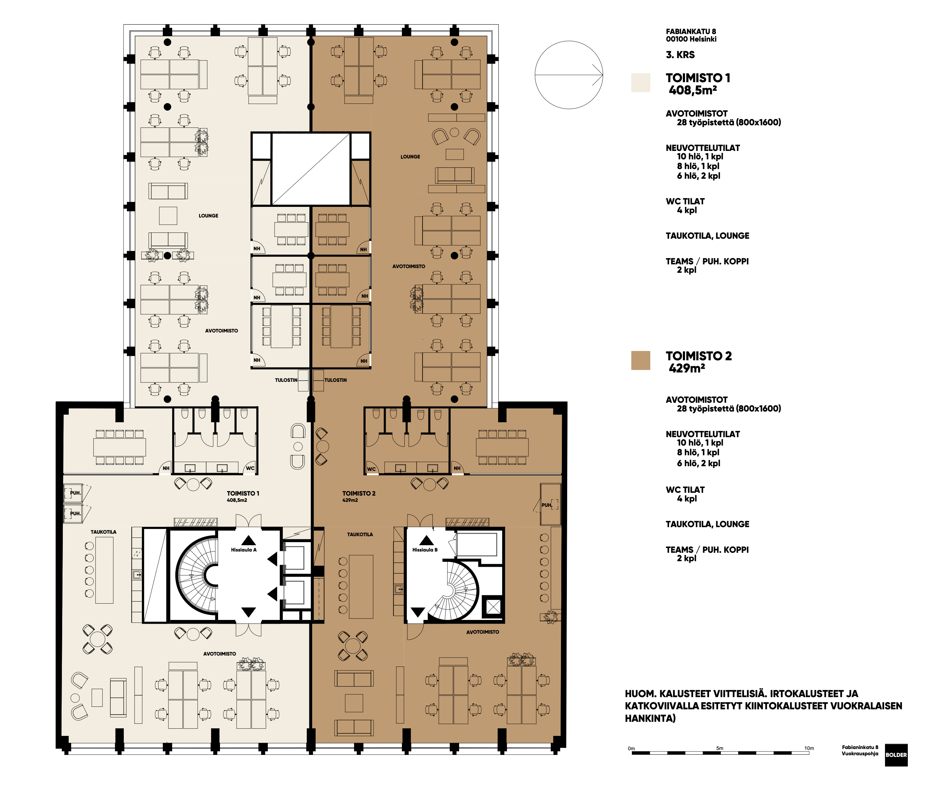
Todella tyylikäs ja uniikki 408,5 m², täysin saneerattu toimisto loistosijainnilla.
Osoite
Fabianinkatu 8, 00130 Helsinki
Tilatyyppi
Toimistotilaa
408,5 m2
Pohjapiirros
Kiinteistö
Kolmannen kerroksen, 2026 valmistuva toimisto aivan Kauppatorin kupeesta.
Klassinen arvorakennus Fabianinkadulla kokee laajamittaisen saneerauksen. Olemassa olevan kiinteistön rakenne säilytetään ja julkisivu uudistetaan. Lisäksi rakennusta laajennetaan sisäpihan puolelle. Kiinteistöön haetaan nyt ensimmäisiä vuokralaisia. Tilat soveltuvat tasokkaaksi pääkonttoriksi, lippulaivaksi kuin myös asiantuntijoiden keitaaksi.
Fabian 8 arvorakennusten keskellä oleva tyylikäs helmi, jonka sisällä on huippuunsa viritettyä modernia ja toimivaa talotekniikkaa. Rakentamiseen käytetään nykyajan parhaita materiaaleja, huipputalotekniikaa ja ainutlaatuista arkkitehtuuria. Uudet kattoterassit tarjoavat kaupungin kauneimmat näköalat. Kiinteistössä tarjotut palvelut tulevat tarkentumaan hankkeen edetessä. Uusiin tiloihin päästään muuttamaan arviolta H1/2026 aikana.
Fabian 8 on helposti saavutettavissa kaikilla kulkuneuvoilla, kuljet raiteilla, pyörillä tai jalan. Työpaikan loistosijainnilla on suuri merkitys arjessa. Se tuo elämään laatua monin tavoin.
Fabian 8 on monien merkityksellisten ja elämää rikastuttavien asioiden keskellä. Voit kokea vanhanajan markkinatunnelmaa Kauppatorilla, istahtaa kahville Espan vihreässä puistossa, ihailla laineiden liplatusta Biennaali-paviljongilta, maistaa kaviaaria Vanhassa kauppahallissa tai haukata happea Tähtitorninmäellä.
Klassinen arvorakennus Fabianinkadulla kokee laajamittaisen saneerauksen. Olemassa olevan kiinteistön rakenne säilytetään ja julkisivu uudistetaan. Lisäksi rakennusta laajennetaan sisäpihan puolelle. Kiinteistöön haetaan nyt ensimmäisiä vuokralaisia. Tilat soveltuvat tasokkaaksi pääkonttoriksi, lippulaivaksi kuin myös asiantuntijoiden keitaaksi.
Fabian 8 arvorakennusten keskellä oleva tyylikäs helmi, jonka sisällä on huippuunsa viritettyä modernia ja toimivaa talotekniikkaa. Rakentamiseen käytetään nykyajan parhaita materiaaleja, huipputalotekniikaa ja ainutlaatuista arkkitehtuuria. Uudet kattoterassit tarjoavat kaupungin kauneimmat näköalat. Kiinteistössä tarjotut palvelut tulevat tarkentumaan hankkeen edetessä. Uusiin tiloihin päästään muuttamaan arviolta H1/2026 aikana.
Fabian 8 on helposti saavutettavissa kaikilla kulkuneuvoilla, kuljet raiteilla, pyörillä tai jalan. Työpaikan loistosijainnilla on suuri merkitys arjessa. Se tuo elämään laatua monin tavoin.
Fabian 8 on monien merkityksellisten ja elämää rikastuttavien asioiden keskellä. Voit kokea vanhanajan markkinatunnelmaa Kauppatorilla, istahtaa kahville Espan vihreässä puistossa, ihailla laineiden liplatusta Biennaali-paviljongilta, maistaa kaviaaria Vanhassa kauppahallissa tai haukata happea Tähtitorninmäellä.
Vapautuu
Heti
Rakennusvuosi
1972
Kerros
3 / 7
Energiatehokkuusluokka
Ei lain edellyttämää energiatodistusta
Näkyvällä paikalla
Hissi
Ota yhteyttä
ScanReal Oy LKV
Opus Business Park
Hitsaajankatu 24
00810 Helsinki
info@scanreal.fi
Puh:
Näytä puhelinnumero
020 730 8830
Sopivat toimitilat yhdellä otolla!
Kartoitamme toimitilatarpeesi ja etsimme yrityksellesi parhaiten sopivat vapaat toimitilat. Koska vuokranantajat maksavat palvelumme, on tämä yrityksellesi veloituksetonta.
OTA YHTEYTTÄ - SOVI NÄYTTÖ!
Kaikki kohteemme eivät ole netissä, kerro tilatarpeesi niin kartoitamme vaihtoehdot.
Palvelumme on tilanhakijalle ilmainen
Pyydä lisätietoa
