Myydään/sijoituskohde toimistotilat, tuotantotilat, varastotilat - Jyväskylä
Kankitie 10, 40320 Jyväskylä #10790796
Myydään monenlaiseen toimintaan soveltuvaa tilaa Seppälänkankaalta. Kohde vuokrattu 1.12.2025 alkaen 10v+5v määräaikaisella pääomavuokrasopimuksella.
Osoite
Kankitie 10, 40320 Jyväskylä
Tilatyyppi
Toimistotilaa
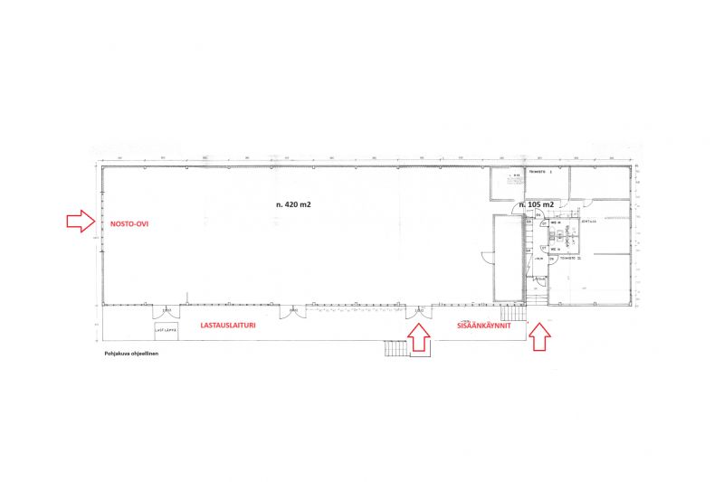
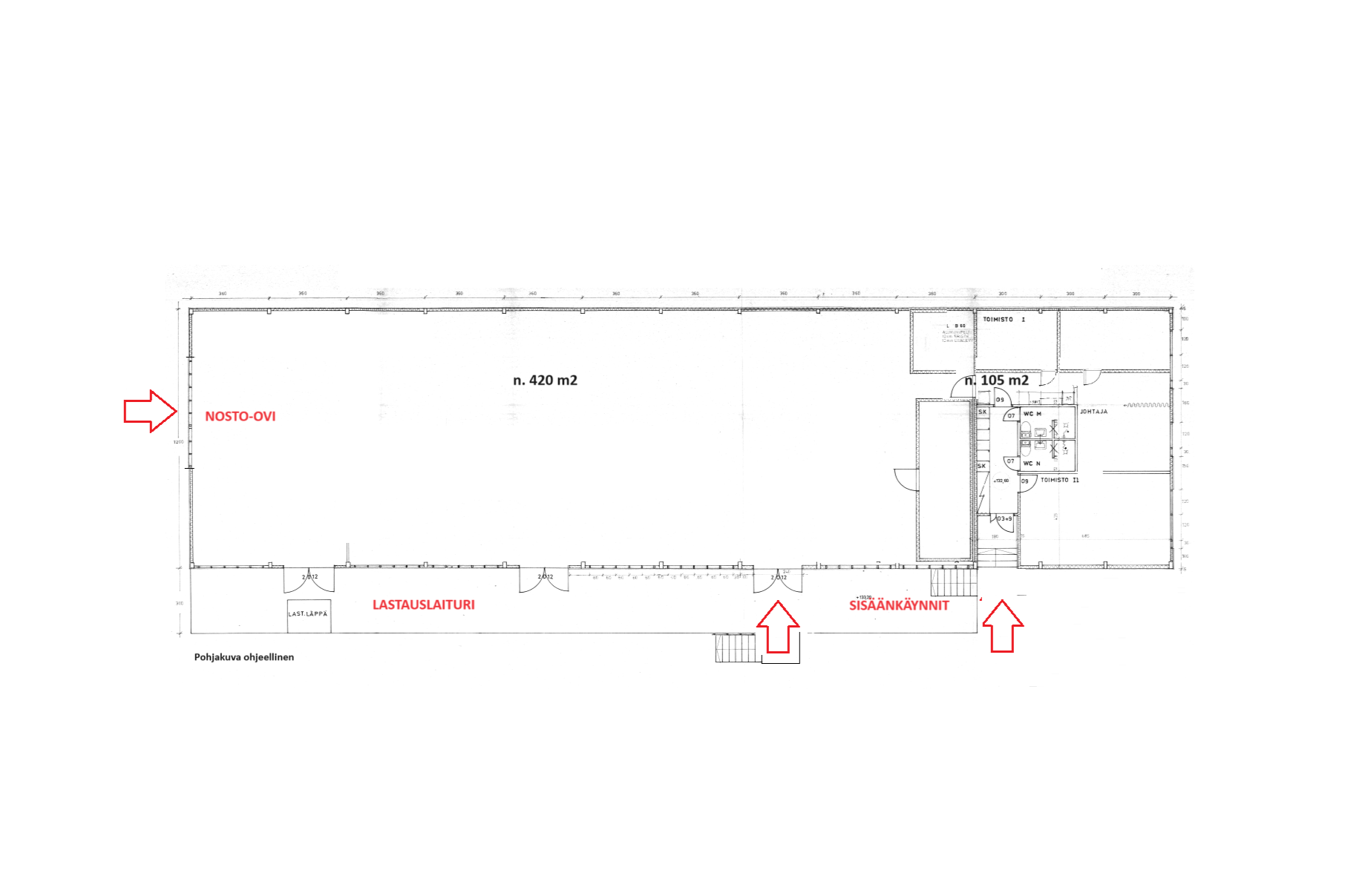
105 m2
Tuotantotilaa
420 m2
Varastotilaa
420 m2
Yhteensä
536 m2
Pohjapiirros
Vuokra
Pyydä lisätiedot
Vuokraan sisältyy jäähdytys
Myyntihinta
289 000€
Kiinteistö
Kiinteistötunnus 179-19-8-2, oma tontti 3000 m2, tehokkuusluku e=0,50, rakennusoikeutta yhteensä 1500 m2, josta käytetty 536 m2 (jäljellä 964 m2). Rakennus valmistunut 1978. Rakennuksessa hallitilaa n. 420 m2 ja toimisto/sosiaalitiloja n. 105 m2. Lämmitysmuotona kaukolämpö. Lämmönjakotapana lämpöpuhaltimet. Toimisto/sosiaalitiloissa koneellinen ilmanvaihto jäähdytyksellä + LTO. Hallitilan vapaa korkeus 3 m.
Päädyssä nosto-ovi ovi ja tilaan 1 kpl lastauslaitureita, toinenkin lastauslaituri saatavissa (ovi otettu pois käytöstä). Aidattu piha-alue.
-Halliin asennettu uusi nosto-ovi 2023
-Hallin julkisivu maalattu 2022 ja toimistotilojen pinnat maalattu 2023
-Kiinteistön lämmitysjärjestelmä uusittu/vaihdettu kaukolämpöön 2017
-Vesikattoremontti 2016 jolloin lisätty myös eristettä ja rännit uusittu samalla.
-Toimisto-osaan asennettu koneellinen ilmastointi/jäähdytys 2018
Ota yhteyttä esittelyä ja lisätietoja varten!
Päädyssä nosto-ovi ovi ja tilaan 1 kpl lastauslaitureita, toinenkin lastauslaituri saatavissa (ovi otettu pois käytöstä). Aidattu piha-alue.
-Halliin asennettu uusi nosto-ovi 2023
-Hallin julkisivu maalattu 2022 ja toimistotilojen pinnat maalattu 2023
-Kiinteistön lämmitysjärjestelmä uusittu/vaihdettu kaukolämpöön 2017
-Vesikattoremontti 2016 jolloin lisätty myös eristettä ja rännit uusittu samalla.
-Toimisto-osaan asennettu koneellinen ilmastointi/jäähdytys 2018
Ota yhteyttä esittelyä ja lisätietoja varten!
Vapautuu
Heti
Rakennusvuosi
1978
Energiatehokkuusluokka
Ei lain edellyttämää energiatodistusta
Lastauslaituri
Ota yhteyttä
Aveon Real Estate Oy
Kauppakatu 18 C 26, 40100 Jyväskylä
Miska Puustinen
Näytä puhelinnumero
+358 45 354 6836
miska.puustinen@aveon.fi
Olemme kiinteistöliiketoiminnan asiantuntija, joka toimii yrittäjämäisesti neuvonantajana kiinteistökaupoissa, toimitilavälittämisessä sekä kiinteistökehityksessä.
Asiakkaitamme ovat kotimaiset ja ulkomaiset kiinteistönomistajat, -sijoittajat sekä tilojen käyttäjät kaikkialla Suomessa.
Pyydä lisätietoa
