Vuokrataan/myydään tuotantotilat, varastotilat, työtilat, autotalli/-hallitilat - Helsinki
Sirrikuja 4 E 7, Kurkimäki, 00940 Helsinki #10789920
Hyvä tuotanto-, varasto- ja teollisuustila myytävänä ja vuokrattavana!
Osoite
Sirrikuja 4 E 7, 00940 Helsinki
Tilatyyppi
Tuotantotilaa
536 m2
Varastotilaa
536 m2
Työtilaa
536 m2
Autotalli/-hallitilaa
536 m2
Yhteensä
536 m2
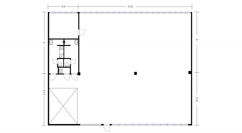
Pohjapiirros
Virtuaaliesittely
Vuokra
4'999 €/kk + alv
Vuokraan sisältyy lämpö
Myyntihinta
Velaton myyntihinta 339'000 €
Muuta
Valoisa ja korkea tuotanto-, varasto- ja teollisuustila Kurkimäen teollisuusalueella myynnissä tai vuokrattavana.
Tilan pinnat ovat siistit ja monikäyttöiset. Tilan korkein vapaa korkeus on etuosassa 6,3 metriä ja tilan takaosassa korkeus on 3,3 metriä. Betonilattian kantavuus on 3 t/m², joten se kestää painavammankin lavatavaran kuljettamisen sekä säilyttämisen. Tuotantotilaan on korkea nosto-ovi (K4,1 m x L3,7 m) ja erillinen käyntiovi. Hallin takaosassa on toimistotilaa, wc- ja suihkutilat sekä vesipiste siivouskomeroineen. Tila on läpitilan huoneisto ja ikkunoita on runsaasti Kontulantien suuntaan.
Tila ei sovellu autokorjaamokäyttöön ilman mittavia muutostöitä ja lupahakemuksia.
Pihalla runsaasti pysäköintitilaa tilan edessä.
Hyvä kiinteistöyhtiö, jonka rakennus on Helsingin kaupungin vuokratontilla. Maanvuokrasopimus on voimassa 2043 asti muuttumattomana.
Hyvät yhteydet Kehä I ja kattavat palvelut lähellä Itäkeskuksessa. Julkinen liikenne kulkee rakennuksen ohi ja läheltä löytyy bussipysäkit.
Monipuolinen tila monenlaisille yrityksille - hyvällä sijainnilla!
Kohdetiedot
Sijainti
Katuosoite: Sirrikuja 4 E 7, 00940 Helsinki
Kaupunginosa: Kurkimäki
Ympäristö: Teollisuusalue ja asuinaluetta
Rakennus/huoneisto
Pinta-alat: 536 m² (yhtiöjärjestyksen mukainen pinta-ala)
Huoneistoselitelmä: Tuotanto- ja varastohallitila
Huoneistotyyppi/Käyttötarkoitus: Nosto-ovi, käyntiovi, toimistotila, sosiaalitilat sekä 2kpl wc, vesipisteitä
Kerros: Katutaso
Kunto, varusteet ja palvelut: Hyvä tila ja taloyhtiö
Vapautuminen: Heti vapaa
Myyntihinta ja kulut
Velaton myyntihinta: 339’000 €
Hoitovastike: 2’605,26 €/kk + alv
Lämmitys: Kaukolämpö (sisältyy hoitovastikkeeseen)
Sähkö- ja vesimaksu: Mittauksen mukaan (oma sähkösopimus ja vesi taloyhtiön taksojen mukaan)
Vuokrahinta ja kulut
Kuukausivuokra: 4'999 €/kk + alv
Sähkömaksu: Vuokralainen tekee oman sähkösopimuksen
Vesimaksu: Kulutuksen mukaan
Lämmitys: Sisältyy vuokraan
Muut ehdot: Minimisopimuskausi 12 kk, vakuus 3 kk:n vuokraa vastaava summa ja luottotietojen on oltava kunnossa
Tilan pinnat ovat siistit ja monikäyttöiset. Tilan korkein vapaa korkeus on etuosassa 6,3 metriä ja tilan takaosassa korkeus on 3,3 metriä. Betonilattian kantavuus on 3 t/m², joten se kestää painavammankin lavatavaran kuljettamisen sekä säilyttämisen. Tuotantotilaan on korkea nosto-ovi (K4,1 m x L3,7 m) ja erillinen käyntiovi. Hallin takaosassa on toimistotilaa, wc- ja suihkutilat sekä vesipiste siivouskomeroineen. Tila on läpitilan huoneisto ja ikkunoita on runsaasti Kontulantien suuntaan.
Tila ei sovellu autokorjaamokäyttöön ilman mittavia muutostöitä ja lupahakemuksia.
Pihalla runsaasti pysäköintitilaa tilan edessä.
Hyvä kiinteistöyhtiö, jonka rakennus on Helsingin kaupungin vuokratontilla. Maanvuokrasopimus on voimassa 2043 asti muuttumattomana.
Hyvät yhteydet Kehä I ja kattavat palvelut lähellä Itäkeskuksessa. Julkinen liikenne kulkee rakennuksen ohi ja läheltä löytyy bussipysäkit.
Monipuolinen tila monenlaisille yrityksille - hyvällä sijainnilla!
Kohdetiedot
Sijainti
Katuosoite: Sirrikuja 4 E 7, 00940 Helsinki
Kaupunginosa: Kurkimäki
Ympäristö: Teollisuusalue ja asuinaluetta
Rakennus/huoneisto
Pinta-alat: 536 m² (yhtiöjärjestyksen mukainen pinta-ala)
Huoneistoselitelmä: Tuotanto- ja varastohallitila
Huoneistotyyppi/Käyttötarkoitus: Nosto-ovi, käyntiovi, toimistotila, sosiaalitilat sekä 2kpl wc, vesipisteitä
Kerros: Katutaso
Kunto, varusteet ja palvelut: Hyvä tila ja taloyhtiö
Vapautuminen: Heti vapaa
Myyntihinta ja kulut
Velaton myyntihinta: 339’000 €
Hoitovastike: 2’605,26 €/kk + alv
Lämmitys: Kaukolämpö (sisältyy hoitovastikkeeseen)
Sähkö- ja vesimaksu: Mittauksen mukaan (oma sähkösopimus ja vesi taloyhtiön taksojen mukaan)
Vuokrahinta ja kulut
Kuukausivuokra: 4'999 €/kk + alv
Sähkömaksu: Vuokralainen tekee oman sähkösopimuksen
Vesimaksu: Kulutuksen mukaan
Lämmitys: Sisältyy vuokraan
Muut ehdot: Minimisopimuskausi 12 kk, vakuus 3 kk:n vuokraa vastaava summa ja luottotietojen on oltava kunnossa
Vapautuu
Heti
Katutasossa
Näkyvällä paikalla
Lastauslaituri
Ota yhteyttä
Tilat.fi
KTM, LKV Antti Soivio
Näytä puhelinnumero
0400 446 553
OTM, LKV Riikka Tuominen
Näytä puhelinnumero
0400 551 790
KTM, LKV Maria-Sofia Puhakka
Näytä puhelinnumero
0400-150330
LKV Tilat.fi Oy on toimitilojen välitykseen erikoistunut yritys.
http://www.tilat.fiPyydä lisätietoa
