Vuokrataan varastotilat - Helsinki
Hankasuontie 3, Konala, 00390 Helsinki #10789792
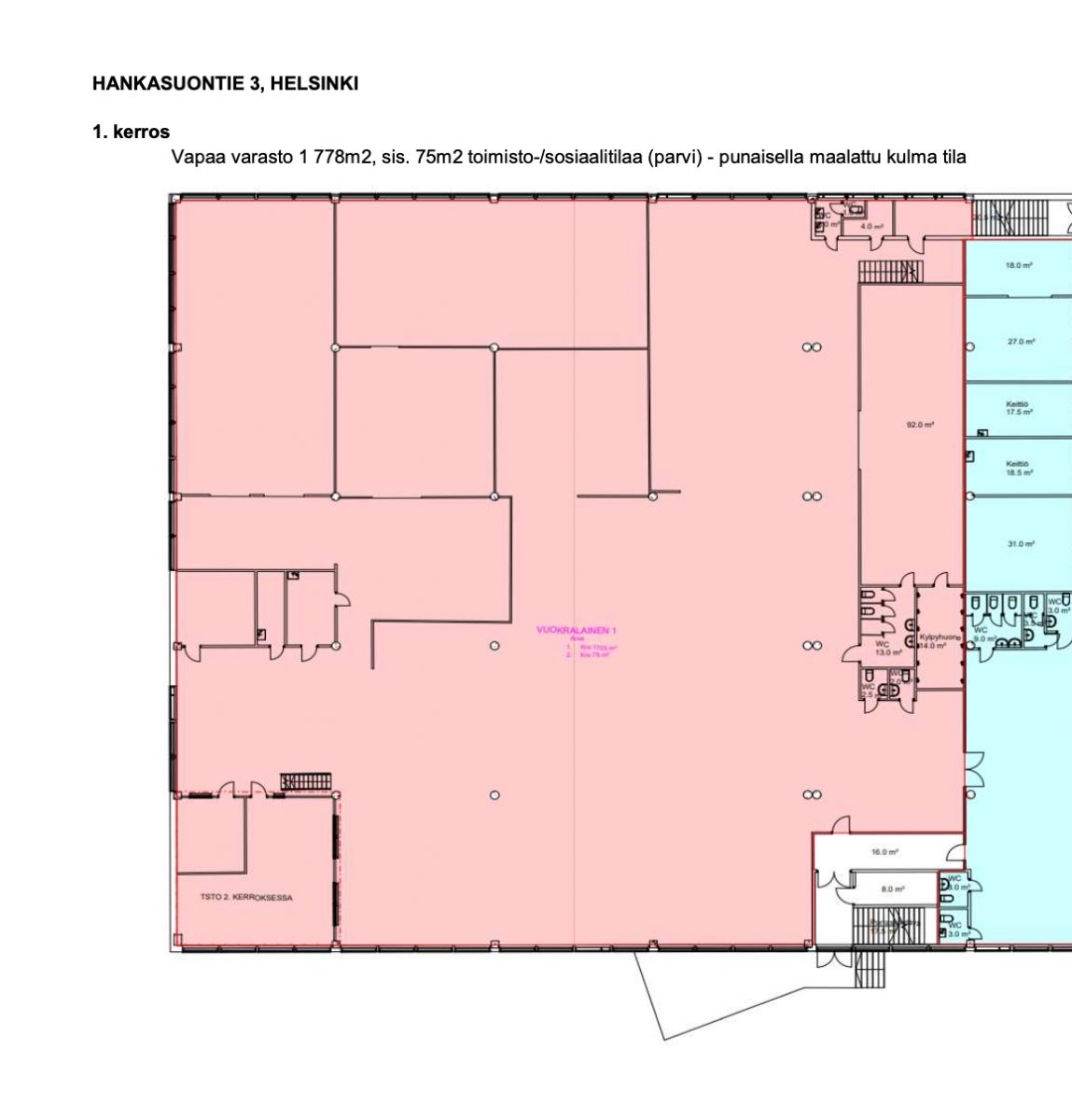
Vuokrataan siistiä varasto- /tuotantotilaa (1778m2), sekä toimistoa Konalasta. Varastotilan vapaa korkeus on noin 5 metriä ja tilaan on lastauslaituriyhteys, sekä kaksi sisään ajettavaa nosto-ovea.
Varastotilasta porrasyhteys 2. kerroksen 737m2 toimistoon. Toimistotilassa on avotilaa, keittiö ja muutama huone.
Hankasuontie 3 kiinteistö sijaitsee Vihdintien varressa Konalassa, josta hyvät liikenneyhteydet koko pääkaupunkiseudulle.
Lisätietoja soita 020 730 4530 tai info@repoint.fi. Palvelumme on tilanhakijalle ilmainen.
Repoint Toimitilat Oy
Itälahdenkatu 22 B, 00210 Helsinki
Näytä puhelinnumero
020 730 4530
Lisätietoja soita Näytä puhelinnumero 020 730 4530 tai info@repoint.fi
https://repoint.fi/