Vuokrataan liiketilat - Helsinki
Höyläämötie 5, Pitäjänmäen Teollisuusalue, 00380 Helsinki #10789665
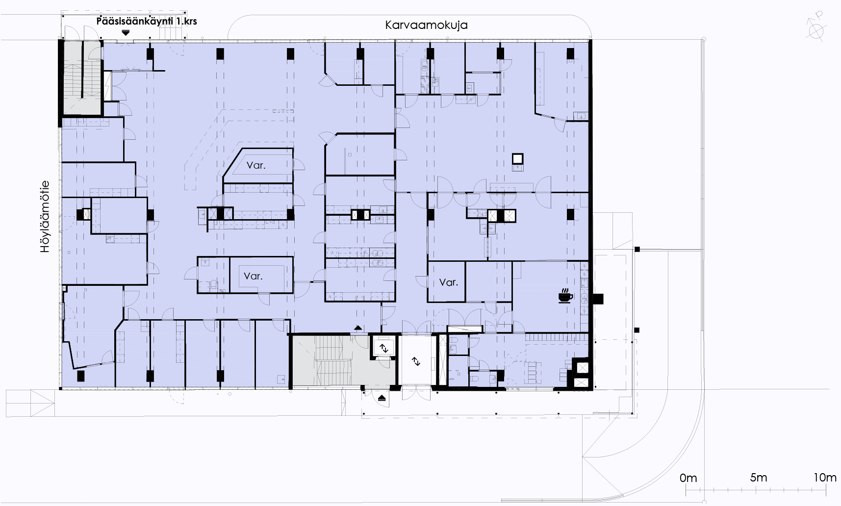
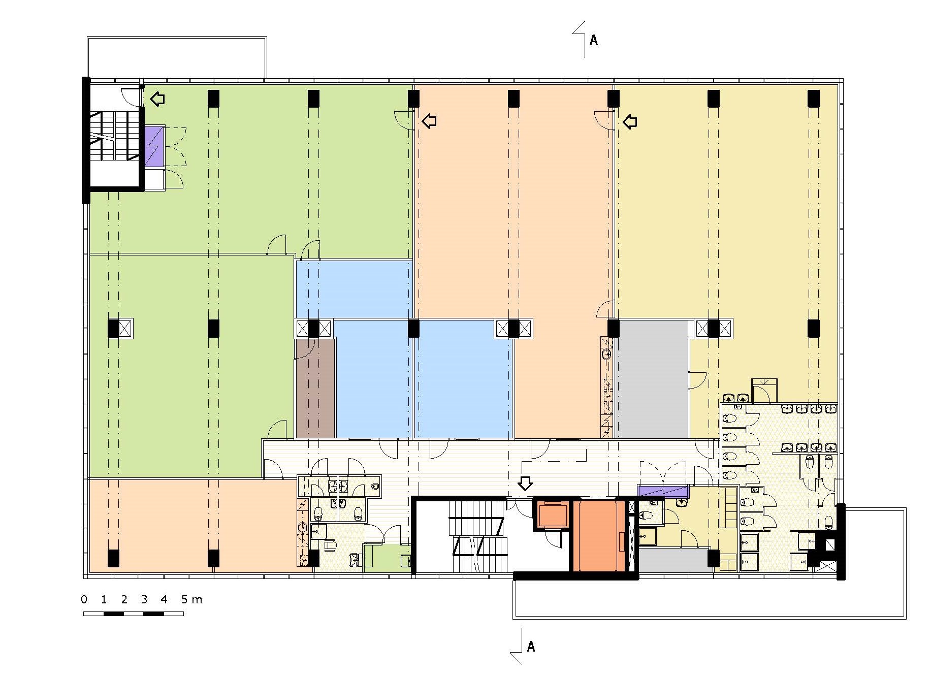
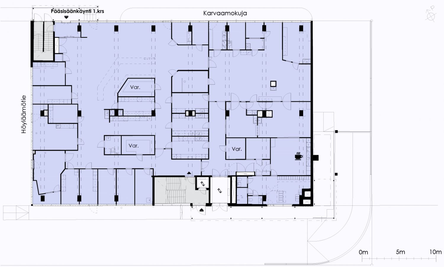
Ensimmäisen kerroksen 850 m²:n liiketila/myymälä yhdistettynä toisen kerroksen 850 m²:n taustatyötiloihin. Kohteessa on uusittu tavarahissi, joka aukeaa kerrokseen suoraan lastaustasanteelta.
Osoite
Höyläämötie 5, 00380 Helsinki
Tilatyyppi
Liiketilaa
1700 m2
Pohjapiirros
Kiinteistö
Erittäin hyvien liikenneyhteyksien varrella sijaitsevaa teollisuus- ja toimistotilaa Pitäjänmäessä.
Tämä tuotanto- ja liiketilarakennus sijaitsee Vihdintien ja Pitäjänmäen välissä hyvien liikenneyhteyksien varrella. Kohde on vaivattomasti saavutettavissa junalla, omalla autolla kuin bussilla. Lähistöllä on paljon palveluita, useampi päivittäistavarakauppa ja harrastusmahdollisuuksia arkea helpottamaan. Lähistöllä on useita lounasravintoloita, kauppoja ja hyvät ulkoilu- ja liikuntamahdollisuudet, esimerkiksi Talin liikuntapuisto on kävelymatkan päässä.
Vuonna 1965 valmistuneen viisikerroksisen kohteen ensimmäisessä kerroksessa on liiketila omalla sisäänkäynnillä ja yläkerrokset ovat tuotantotilaa. Yläkerrat ovat raakatilaa, jonne on rakennettavissa joustavasti asiakkaan tuotannon tarvitsemat toimitilat. Kohteen uusittu tavarahissi nousee lastausseisakkeelta kaikkiin kerroksiin.
Tämä tuotanto- ja liiketilarakennus sijaitsee Vihdintien ja Pitäjänmäen välissä hyvien liikenneyhteyksien varrella. Kohde on vaivattomasti saavutettavissa junalla, omalla autolla kuin bussilla. Lähistöllä on paljon palveluita, useampi päivittäistavarakauppa ja harrastusmahdollisuuksia arkea helpottamaan. Lähistöllä on useita lounasravintoloita, kauppoja ja hyvät ulkoilu- ja liikuntamahdollisuudet, esimerkiksi Talin liikuntapuisto on kävelymatkan päässä.
Vuonna 1965 valmistuneen viisikerroksisen kohteen ensimmäisessä kerroksessa on liiketila omalla sisäänkäynnillä ja yläkerrokset ovat tuotantotilaa. Yläkerrat ovat raakatilaa, jonne on rakennettavissa joustavasti asiakkaan tuotannon tarvitsemat toimitilat. Kohteen uusittu tavarahissi nousee lastausseisakkeelta kaikkiin kerroksiin.
Sijainti
Kiinteistö sijaitsee erittäin hyvien liikenneyhteyksien päässä. Valimon junaseisake on n. 800 m päässä ja bussiyhteydet ovat erinomaiset aluetta sivuavien Vihdintien ja Pitäjänmäentien ansiosta.
Pysäköinti
Autopaikat kiinteistön autohallissa
Palvelut
Lähistön kiinteistöstä löytyy lounasravintoloita ja päivittäistavarakauppoja.
Kulkuyhteydet
Lähimmälle bussipysäkille 300 m
Lähimmälle juna-asemalle 800 m
Lentokentälle 20 min
Lähimmälle juna-asemalle 800 m
Lentokentälle 20 min
Vapautuu
Kysy
Rakennusvuosi
1965
Kerros
1-2
Energiatehokkuusluokka
C2018
Ympäristöluokitus
GRESB Global Sector Leader 2024
Ota yhteyttä
Sponda Oy
Yrjönkatu 29C, 00100 Helsinki
Näytä puhelinnumero
020 43131
Anna Puhtila
Senior Manager, Value Add Portfolio
Näytä puhelinnumero
+358 50 407 9601
Sponda Oy
https://www.sponda.fiPyydä lisätietoa
