Vuokrataan toimistotilat - Espoo
Esikunnankatu 1, Leppävaara, 02600 Espoo #10789639
Osoite
Esikunnankatu 1, 02600 Espoo
Tilatyyppi
Toimistotilaa
1568 m2
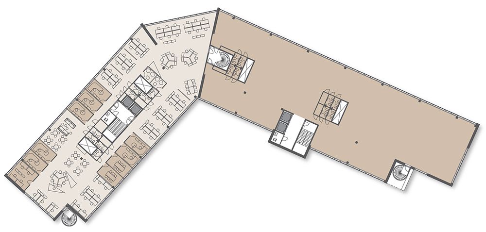
Pohjapiirros
Kiinteistö
Uusi toimistorakennus valmistuu Espoon Leppävaaraan, yhteen pääkaupunkiseudun vauhdikkaimmin kasvavista liike-elämän keskuksista.
Seitsemänkerroksisen toimistorakennuksen julkisivu avautuu Kehä I:lle ja Perkkaantielle. Vaaleat kivipinnat ja suuret lasipinnat tuovat julkisivuun raikkautta ja keveyttä. Toimistotalo sijaitsee Leppävaaran näkyvimmällä paikalla, eikä jää ohikulkijoilta huomaamatta.
Tämän uudiskohteen keskeinen etu on sen oivallinen sijainti. Muutaman minuutin kävelymatkan etäisyydellä ovat rautatie- ja linja-autoasema sekä Leppävaaran palvelut, esimerkiksi lounasravintolat, päivittäistavarakaupat ja Glo Hotel Sello. Kehä I ja kivenheiton päässä sijaitseva Turunväylä mahdollistavat nopeat yhteydet henkilöautolla liikkuville. Matka kiinteistöstä Helsingin ydinkeskustaan taittuu kahdessakymmenessä minuutissa.
Avaria ja valoisia monitilatoimistoja voidaan muunnella joustavasti asiakasyritysten tarpeiden mukaan. Vuokrattavien toimitilojen kokoa on mahdollista muokata noin 100 neliöstä jopa 12 000 neliöön saakka. Siksi kohteen toimitilat tarjoavat houkuttelevan vaihtoehdon varsinkin sellaisille yrityksille, jotka kasvavat nopeasti.
Seitsemänkerroksisen toimistorakennuksen julkisivu avautuu Kehä I:lle ja Perkkaantielle. Vaaleat kivipinnat ja suuret lasipinnat tuovat julkisivuun raikkautta ja keveyttä. Toimistotalo sijaitsee Leppävaaran näkyvimmällä paikalla, eikä jää ohikulkijoilta huomaamatta.
Tämän uudiskohteen keskeinen etu on sen oivallinen sijainti. Muutaman minuutin kävelymatkan etäisyydellä ovat rautatie- ja linja-autoasema sekä Leppävaaran palvelut, esimerkiksi lounasravintolat, päivittäistavarakaupat ja Glo Hotel Sello. Kehä I ja kivenheiton päässä sijaitseva Turunväylä mahdollistavat nopeat yhteydet henkilöautolla liikkuville. Matka kiinteistöstä Helsingin ydinkeskustaan taittuu kahdessakymmenessä minuutissa.
Avaria ja valoisia monitilatoimistoja voidaan muunnella joustavasti asiakasyritysten tarpeiden mukaan. Vuokrattavien toimitilojen kokoa on mahdollista muokata noin 100 neliöstä jopa 12 000 neliöön saakka. Siksi kohteen toimitilat tarjoavat houkuttelevan vaihtoehdon varsinkin sellaisille yrityksille, jotka kasvavat nopeasti.
Sijainti
Leppävaaran juna-asema ja Kehä I:n ja Turunväylä tarjoavat loistavat kulkuyhteydet niin julkisilla kuin omalla autolla liikkuville.
Leppävaarassa pysäköintikään ei muodostu ongelmaksi, sillä toimistorakennusta palvelevassa parkkihallissa on tilaa 500 autolle. Pyörällä liikkuvat voivat jättää kulkuvälineensä turvallisin mielin Avec 2:n pyöräparkkiin.
Leppävaarassa pysäköintikään ei muodostu ongelmaksi, sillä toimistorakennusta palvelevassa parkkihallissa on tilaa 500 autolle. Pyörällä liikkuvat voivat jättää kulkuvälineensä turvallisin mielin Avec 2:n pyöräparkkiin.
Pysäköinti
Autopaikat kiinteistön autohallissa
Palvelut
Avec 2:n palveluihin kuuluvat vastaanotto-, catering- ja ravintolapalvelut. Asiakasyritykset voivat halutessaan hyödyntää toimistorakennuksen tasokkaita sauna- ja kokoustiloja sekä kuntosalia.
Kulkuyhteydet
Lähimmälle bussipysäkille 150 m
Lähimmälle juna-asemalle 600 m
Lentokentälle 20 min
Lähimmälle juna-asemalle 600 m
Lentokentälle 20 min
Vapautuu
Kysy
Kerros
7
Ympäristöluokitus
RESB Global Sector Leader 2025
Ota yhteyttä
Sponda Oy
Yrjönkatu 29C, 00100 Helsinki
Näytä puhelinnumero
020 43131
Anna Puhtila
Senior Manager, Value Add Portfolio
Näytä puhelinnumero
+358 50 407 9601
Sponda Oy
https://www.sponda.fiPyydä lisätietoa
