Vuokrataan liiketilat - Tampere
Hämeenkatu 20, Tampere, 33200 Tampere #10789614
Monien mahdollisuuksien liiketilaa kahdesssa kerroksessa. Katutasossa liiketilaa 100 m2 ja kellarikerroksessa hyvät 150 m2 sosiaalitilat suihkuineen. Liiketilasta isot näyteikkunat vilkkaalle kävelykadulle. Keskeinen sijainti.
Osoite
Hämeenkatu 20, 33200 Tampere
Tilatyyppi
Liiketilaa
250 m2
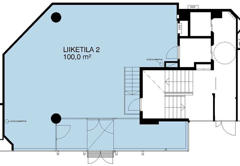
Pohjapiirros
Kiinteistö
Hämeenkatu 20:n kiinteistö sijaitsee keskeisellä paikalla Hämeenkadulla, Sokosta vastapäätä.
Rakennuksen toinen, Kauppakadun puoleinen osa, sijaitsee erilaisten liikkeiden, ravintoloiden ja muiden palvelujen täyttämän kävelykadun välittömässä läheisyydessä.
Kiinteistölle on myönnetty BREEAM In-Use Very Good -tason ympäristösertifikaatti. BREEAM (Building Research Establishment Environmental Assessment Method) on kansainvälinen rakennusten ympäristöluokitusjärjestelmä, joka tähtää rakennuksen käytön ympäristövaikutusten vähentämiseen sekä terveellisempien työympäristöjen kehittämiseen.
Rakennuksen toinen, Kauppakadun puoleinen osa, sijaitsee erilaisten liikkeiden, ravintoloiden ja muiden palvelujen täyttämän kävelykadun välittömässä läheisyydessä.
Kiinteistölle on myönnetty BREEAM In-Use Very Good -tason ympäristösertifikaatti. BREEAM (Building Research Establishment Environmental Assessment Method) on kansainvälinen rakennusten ympäristöluokitusjärjestelmä, joka tähtää rakennuksen käytön ympäristövaikutusten vähentämiseen sekä terveellisempien työympäristöjen kehittämiseen.
Sijainti
Ydinkeskustassa Hämeenkadulla, Sokosta vastapäätä. Rakennuksen toinen osa on Kauppakadun puolella kävelykadun välittömässä läheisyydessä. Keskustorille n. 100 metriä.
Pysäköinti
Autopaikat P-Keskusta Sokos
Palvelut
Kaikki keskustan palvelut sijaitsevat kävelymatkan päässä. Kiinteistössä on useita muotivaateliikkeitä ja pankki.
Kulkuyhteydet
Lähimmälle bussipysäkille 10 m
Lähimmälle juna-asemalle 800 m
Lentokentälle 25 min
Lähimmälle juna-asemalle 800 m
Lentokentälle 25 min
Vapautuu
Kysy
Rakennusvuosi
1956
Kerros
1-K1
Energiatehokkuusluokka
C2018
Ympäristöluokitus
BREEAM,GRESB Global Sector Leader 2024
Ota yhteyttä
Sponda Oy
Yrjönkatu 29C, 00100 Helsinki
Näytä puhelinnumero
020 43131
Timo Matinlompolo
Shopping Centre Manager
Näytä puhelinnumero
+358 20 431 3868
Sponda Oy
https://www.sponda.fiPyydä lisätietoa
