Vuokrataan toimistotilat - Tampere
Hämeenkatu 18 / Kauppakatu 3, Tampere, 33200 Tampere #10789581
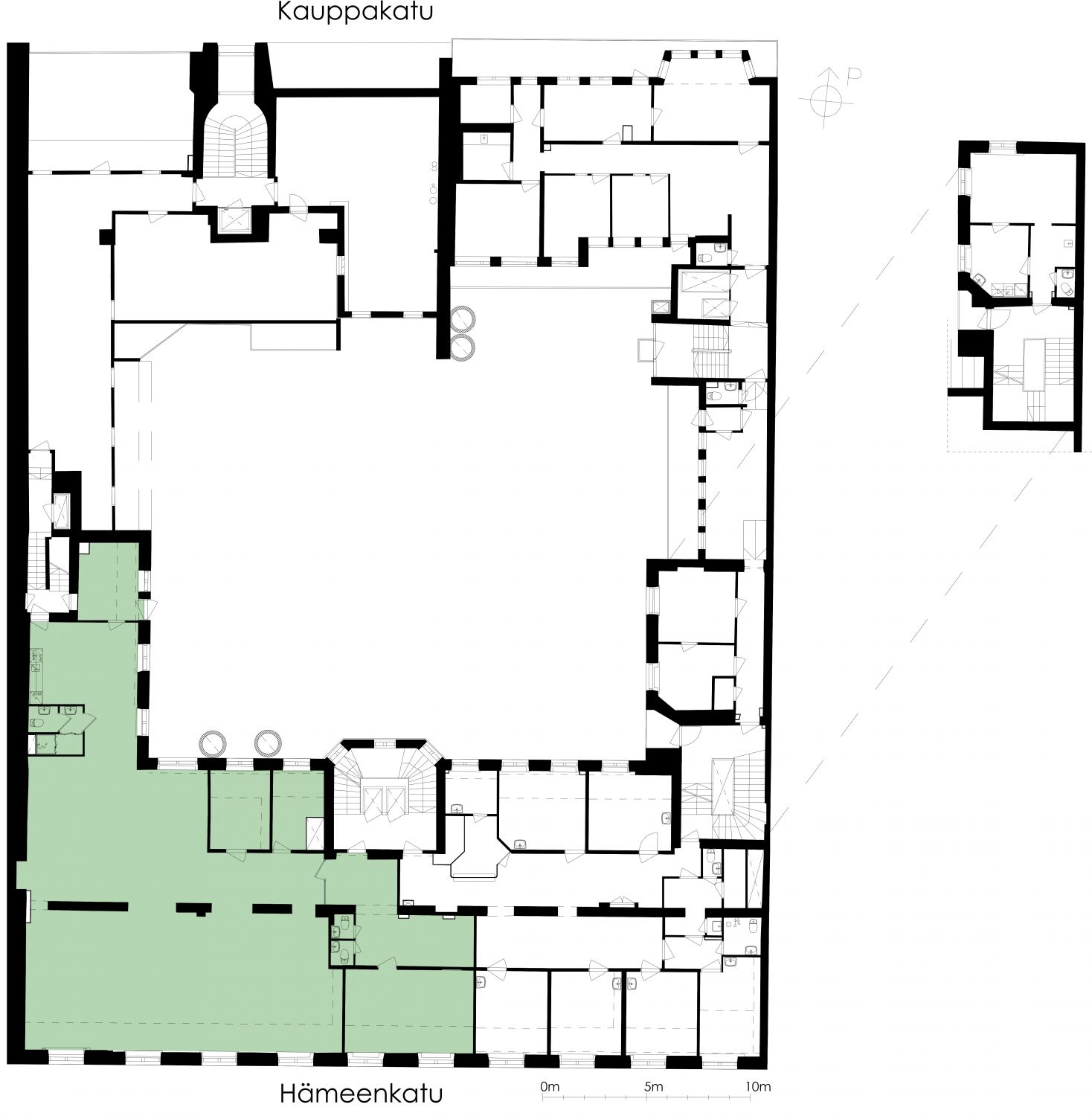
Valoisaa, monikäyttöistä toimistotilaa ylimmän kerroksen rauhassa.
Osoite
Hämeenkatu 18 / Kauppakatu 3, 33200 Tampere
Tilatyyppi
Toimistotilaa
295 m2
Pohjapiirros
Kiinteistö
Kuusikerroksinen liike- ja toimistorakennus edustaa nykymuodossaan 20-luvun klassismia. Sijainti Tampereen keskustassa on mitä parhain.
Alun perin arkkitehti August Krookin kaksikerroksiseksi vuosina 1907-1909 suunnittelema jugendtyylinen liikerakennus. Rakennusta on korotettu neljällä kerroksella 1920-luvun lopussa. Nykymuodossaan rakennus edustaa 20-luvun klassismia.
Keskeisellä paikalla oleva liike- ja toimistorakennus sijaitsee Hämeenkadulla Sokosta vastapäätä. Rakennuksen toinen osa sijaitsee Kauppakadun puolella kävelykadun välittömässä läheisyydessä.
Rakennuksessa on kellarikerroksen lisäksi kuusi maanpäällistä kerrosta. Kohde on liitetty kaukolämpöön, ja Hämeenkatu 18 puoleisessa rakennuksessa on jäähdytys.
Kiinteistölle on myönnetty BREEAM In-Use Very Good -tason ympäristösertifikaatti. BREEAM (Building Research Establishment Environmental Assessment Method) on kansainvälinen rakennusten ympäristöluokitusjärjestelmä, joka tähtää rakennuksen käytön ympäristövaikutusten vähentämiseen sekä terveellisempien työympäristöjen kehittämiseen.
Alun perin arkkitehti August Krookin kaksikerroksiseksi vuosina 1907-1909 suunnittelema jugendtyylinen liikerakennus. Rakennusta on korotettu neljällä kerroksella 1920-luvun lopussa. Nykymuodossaan rakennus edustaa 20-luvun klassismia.
Keskeisellä paikalla oleva liike- ja toimistorakennus sijaitsee Hämeenkadulla Sokosta vastapäätä. Rakennuksen toinen osa sijaitsee Kauppakadun puolella kävelykadun välittömässä läheisyydessä.
Rakennuksessa on kellarikerroksen lisäksi kuusi maanpäällistä kerrosta. Kohde on liitetty kaukolämpöön, ja Hämeenkatu 18 puoleisessa rakennuksessa on jäähdytys.
Kiinteistölle on myönnetty BREEAM In-Use Very Good -tason ympäristösertifikaatti. BREEAM (Building Research Establishment Environmental Assessment Method) on kansainvälinen rakennusten ympäristöluokitusjärjestelmä, joka tähtää rakennuksen käytön ympäristövaikutusten vähentämiseen sekä terveellisempien työympäristöjen kehittämiseen.
Sijainti
Kiinteistö sijaitsee Tampereen ydinkeskustassa hyvien liikenneyhteyksien varrella. Keskustorille on matkaa n. 100 metriä.
Pysäköinti
Autopaikat kadunvarressa ja P-Keskusta
Palvelut
Kaikki keskustan palvelut sijaitsevat kävelyetäisyydellä. Kiinteistössä toimii mm. kirjakauppa, sisustus- ja vaateliike, kampaamo, kauneushoitola, laukkukauppa, ravintola, ulkoilu- ja eräkauppa.
Kulkuyhteydet
Lähimmälle bussipysäkille 10 m
Lähimmälle juna-asemalle 800 m
Lentokentälle 25 min
Lähimmälle juna-asemalle 800 m
Lentokentälle 25 min
Vapautuu
Kysy
Rakennusvuosi
1952
Kerros
6
Energiatehokkuusluokka
E2018
Ympäristöluokitus
BREEAM In-Use Very Good,GRESB Global Sector Leader 2024
Ota yhteyttä
Sponda Oy
Yrjönkatu 29C, 00100 Helsinki
Näytä puhelinnumero
020 43131
Ari-Pekka Lehtonen
Regional Manager, Rest of Finland
Näytä puhelinnumero
+358 400 517 587
Sponda Oy
https://www.sponda.fiPyydä lisätietoa
