Vuokrataan toimistotilat - Helsinki
Laivalahdenkatu 2 B, Herttoniemi, 00880 Helsinki #10789557
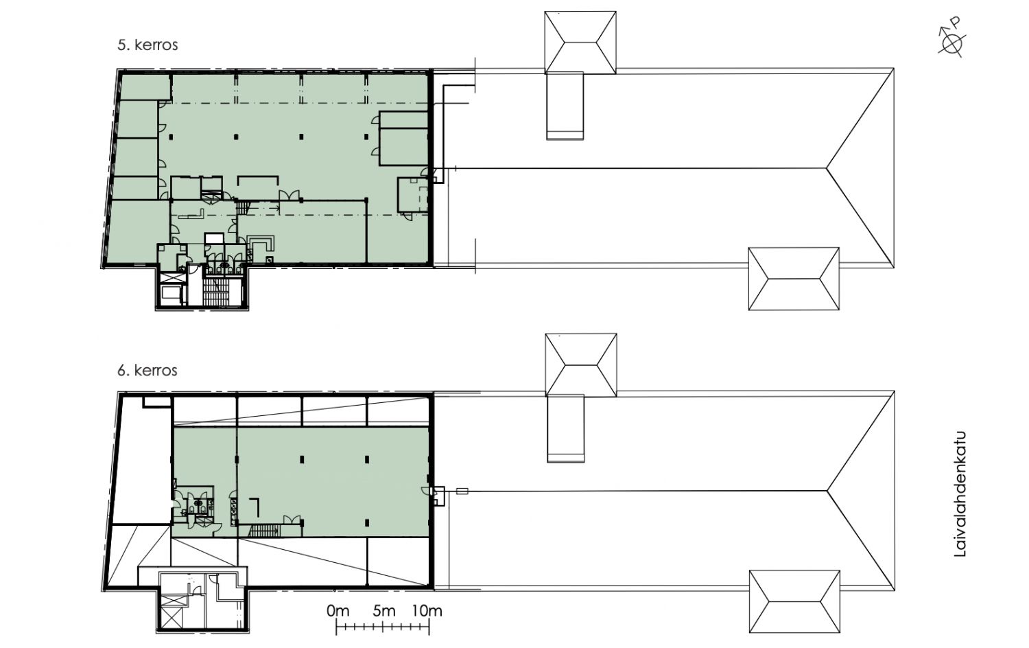
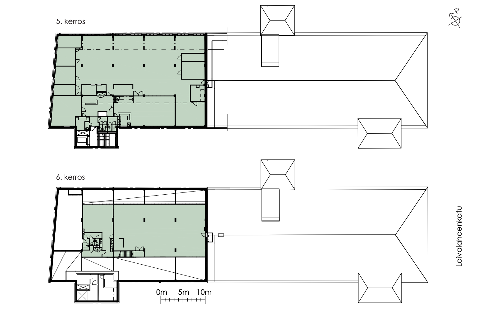
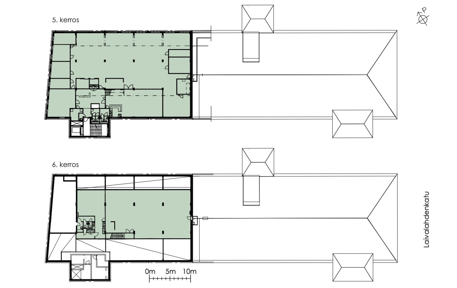
Erittäin valoisa ja avara ylimmän 5.-6. kerroksen toimistotila omalla parvella. Osa tilasta on kuusi metriä korkeaa jäähdytettyä työhuone- ja avotoimistotilaa.
Osoite
Laivalahdenkatu 2 B, 00880 Helsinki
Tilatyyppi
Toimistotilaa
1015 m2
Pohjapiirros
Kiinteistö
Suomalaisen tekstiilialan yhden suurimman yrityksen tilat on modernisoitu vastaamaan nykyajan tarpeita – tervetuloa tutustumaan!
Kiinteistön asiakkailla on käytössään Spondan extranet-palvelu, joka tekee toimitila-asioiden hoitamisesta ja tilavarausten tekemisestä tehokasta.
Herttoniemen yrityspuistossa kohtaavat teollisuus, kauppa ja muotoilu. Alueen kattavat palvelut tarjoavat hyvän toimintaympäristön yrityksille. Kohteen lähellä sijaitsevat monipuoliset palvelut, kuten liikuntakeskuksia, huoltoasema ja isoja ruokakauppoja.
Kiinteistön asiakkailla on käytössään Spondan extranet-palvelu, joka tekee toimitila-asioiden hoitamisesta ja tilavarausten tekemisestä tehokasta.
Herttoniemen yrityspuistossa kohtaavat teollisuus, kauppa ja muotoilu. Alueen kattavat palvelut tarjoavat hyvän toimintaympäristön yrityksille. Kohteen lähellä sijaitsevat monipuoliset palvelut, kuten liikuntakeskuksia, huoltoasema ja isoja ruokakauppoja.
Sijainti
Herttoniemen metroasema on lyhyen kävelymatkan päässä ja Itäväylä kulkee aivan vierestä. Helsingin keskustaan ajaa omalla autolla noin 10 minuuttia.
Autopaikkoja on sekä kiinteistön pihalla että talon kellarikerroksessa olevassa autohallissa, yhteensä 90 kpl.
Autopaikkoja on sekä kiinteistön pihalla että talon kellarikerroksessa olevassa autohallissa, yhteensä 90 kpl.
Pysäköinti
Autopaikat kiinteistön pihassa ja autohallissa
Palvelut
Herttoniemen kattavat palvelut tarjoavat hyvän toimintaympäristön yrityksille.
Kulkuyhteydet
Lähimmälle bussipysäkille 100 m
Lähimmälle metroasemalle 400 m
Lentokentälle 25 min
Lähimmälle metroasemalle 400 m
Lentokentälle 25 min
Vapautuu
Kysy
Rakennusvuosi
1951
Kerros
5-6
Energiatehokkuusluokka
C2018
Ympäristöluokitus
GRESB Global Sector Leader 2025
Ota yhteyttä
Sponda Oy
Yrjönkatu 29C, 00100 Helsinki
Näytä puhelinnumero
020 43131
Anna Puhtila
Senior Manager, Value Add Portfolio
Näytä puhelinnumero
+358 50 407 9601
Sponda Oy
https://www.sponda.fiPyydä lisätietoa
