Videoesittely
Vuokrataan toimistotilat - Helsinki
Kasarmikatu 36, Kaartinkaupunki, 00130 Helsinki #10789491
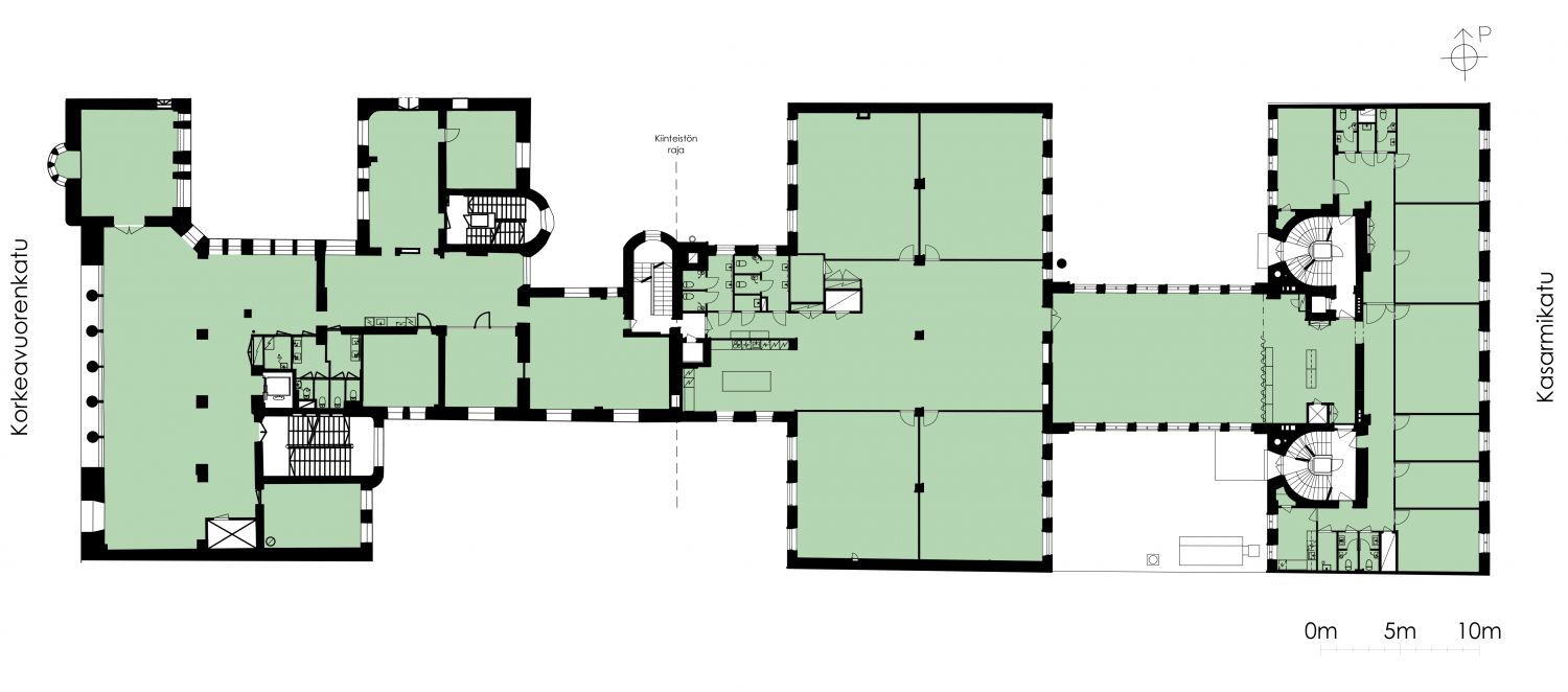
Monikäyttöistä toimistotilaa, jossa mahdollista yhdistää Kasarmikatu 36, 5.krs 831m² tila ja Korkeavuorenkatu 35, 3.krs 511m² tila yhdeksi 1 342m² tilakokonaisuudeksi.
Osoite
Kasarmikatu 36, 00130 Helsinki
Tilatyyppi
Toimistotilaa
1342 m2
Pohjapiirros
Kiinteistö
Keskeisellä mutta rauhallisella paikalla sijaitsevia nykyaikaisia toimistotiloja historiallisen Kasarmitorin laidalla.
Arkkitehti Lars Sonckin suunnittelema, vuonna 1923 valmistunut rakennus on sisätiloiltaan tyylikkäästi saneerattu nykyaikaiseksi toimistotaloksi. Viihtyisissä tiloissa on toimivat ja tehokkaat pohjaratkaisut, ja tilat ovat helposti muunneltavissa erilaisten tarpeiden mukaan yrityskohtaisesti. Talon käyttäjät voivat vuokrata neuvottelutilaa kiinteistön alakerrasta.
Kiinteistö sopii erinomaisesti keskeistä ja rauhallista sijaintia arvostavalle yritykselle. Sijainti edessä avautuvan Kasarmitorin äärellä tarjoaa arvokkaan ja seesteisen ympäristön vain kivenheiton päässä keskustan sykkeestä. Aluetta luonnehtii merelliseen ympäristöön asettunut hallinto- ja finanssirakennusten keskittymä. Kaartinkaupunki on uuden ja vanhan viehättävä sekoitus. Keskellä Helsinkiä, mutta omassa rauhassaan.
Kiinteistölle on myönnetty BREEAM In-Use sertifikaatti tasolla Very Good (part 1 – kiinteistö) ja Excellent (part 2 – ylläpito). BREEAM (Building Research Establishment Environmental Assessment Method) on kansainvälinen rakennusten ympäristöluokitusjärjestelmä, joka tähtää rakennuksen käytön ympäristövaikutusten vähentämiseen sekä terveellisempien työympäristöjen kehittämiseen.
Arkkitehti Lars Sonckin suunnittelema, vuonna 1923 valmistunut rakennus on sisätiloiltaan tyylikkäästi saneerattu nykyaikaiseksi toimistotaloksi. Viihtyisissä tiloissa on toimivat ja tehokkaat pohjaratkaisut, ja tilat ovat helposti muunneltavissa erilaisten tarpeiden mukaan yrityskohtaisesti. Talon käyttäjät voivat vuokrata neuvottelutilaa kiinteistön alakerrasta.
Kiinteistö sopii erinomaisesti keskeistä ja rauhallista sijaintia arvostavalle yritykselle. Sijainti edessä avautuvan Kasarmitorin äärellä tarjoaa arvokkaan ja seesteisen ympäristön vain kivenheiton päässä keskustan sykkeestä. Aluetta luonnehtii merelliseen ympäristöön asettunut hallinto- ja finanssirakennusten keskittymä. Kaartinkaupunki on uuden ja vanhan viehättävä sekoitus. Keskellä Helsinkiä, mutta omassa rauhassaan.
Kiinteistölle on myönnetty BREEAM In-Use sertifikaatti tasolla Very Good (part 1 – kiinteistö) ja Excellent (part 2 – ylläpito). BREEAM (Building Research Establishment Environmental Assessment Method) on kansainvälinen rakennusten ympäristöluokitusjärjestelmä, joka tähtää rakennuksen käytön ympäristövaikutusten vähentämiseen sekä terveellisempien työympäristöjen kehittämiseen.
Sijainti
Kasarmikatu sijaitsee Helsingin ydinkeskustassa Kauppatorin, Esplanadin ja Kasarmintorin välittömässä läheisyydessä. Lähin raitiovaunupysäkki on Kauppatorilla.
Pysäköinti
Autopaikkoja sisäpihalla sekä Q-park Kasarmitori ja Erottaja
Palvelut
Työmatkapyöräilijöitä varten talosta löytyy pyöräparkki ja sosiaalitilat. Kaikki keskustan palvelut ovat lyhyen kävelymatkan etäisyydellä. Alueella on runsaasti ravintoloita, kauppoja, hotelleja ja neuvottelukeskuksia. Kauppahalli ja Kauppatori ovat myös aivan kohteen lähellä.
Kulkuyhteydet
Lähimmälle bussipysäkille 400 m
Lähimmälle juna-asemalle 950 m
Lähimmälle metroasemalle 950 m
Lähimmälle raitiovaunupysäkille 400 m
Lentokentälle 35 min
Lähimmälle juna-asemalle 950 m
Lähimmälle metroasemalle 950 m
Lähimmälle raitiovaunupysäkille 400 m
Lentokentälle 35 min
Vapautuu
Kysy
Rakennusvuosi
1923
Kerros
5
Energiatehokkuusluokka
C2018
Ympäristöluokitus
BREEAM In-Use Very Good,GRESB Global Sector Leader 2025
Ota yhteyttä
Sponda Oy
Yrjönkatu 29C, 00100 Helsinki
Näytä puhelinnumero
020 43131
Joni Rajaniemi
Senior Leasing Manager
Näytä puhelinnumero
+358 50 505 7504
Sponda Oy
https://www.sponda.fiPyydä lisätietoa
