Vuokrataan toimistotilat - Helsinki
Erottajankatu 5, Kaartinkaupunki, Helsinki #10789452
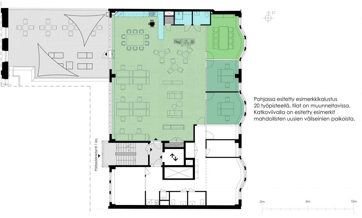
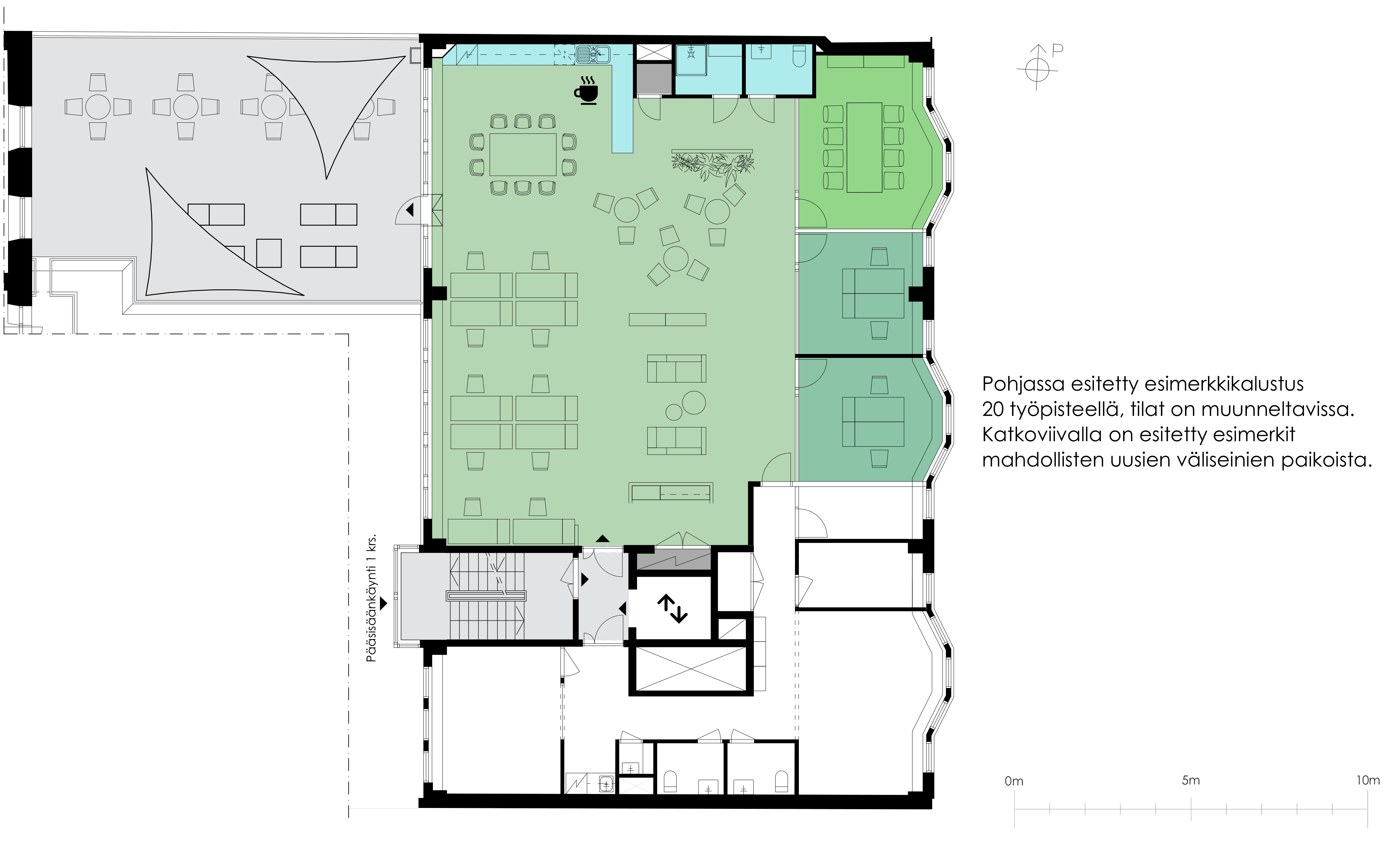
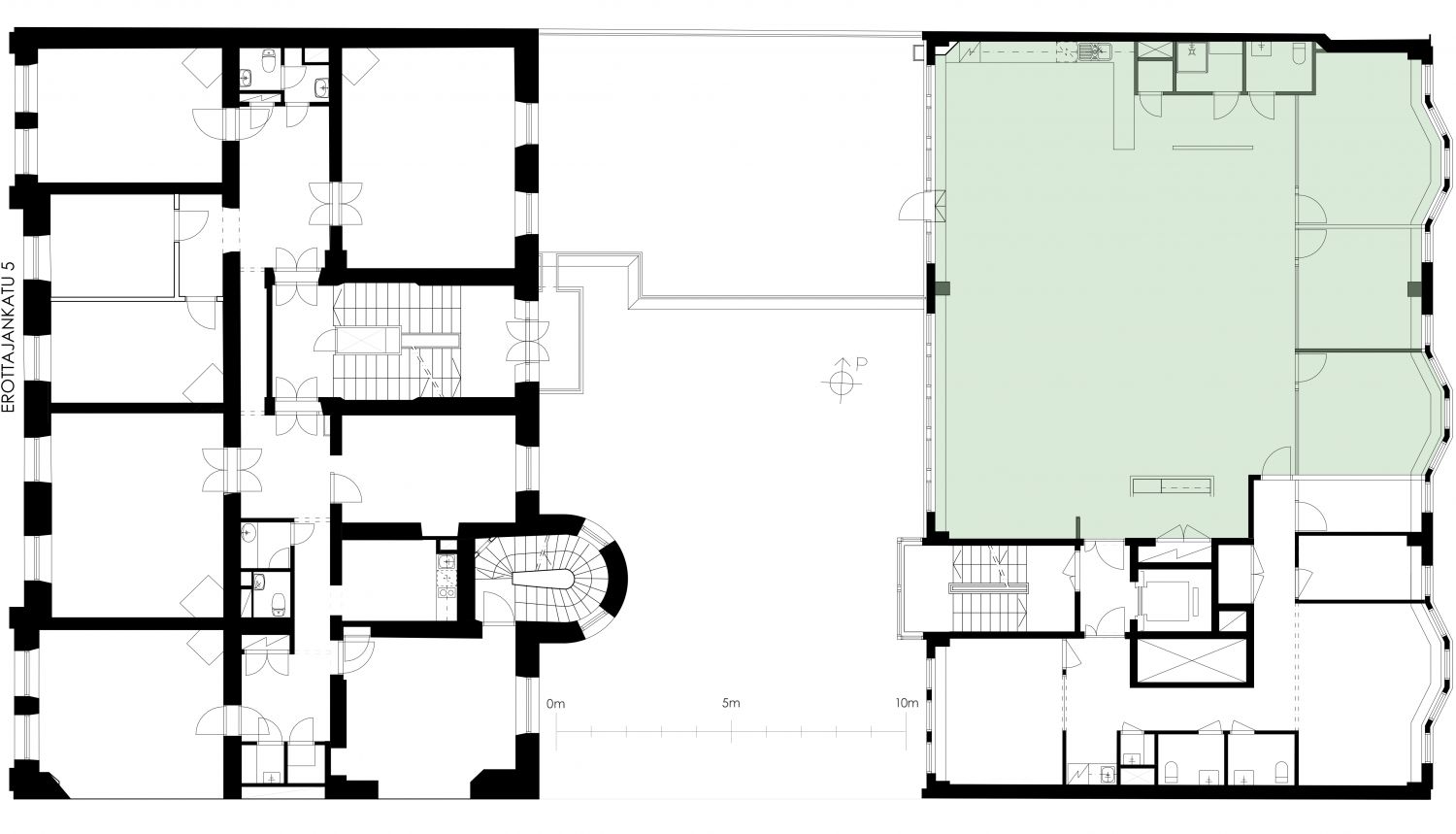
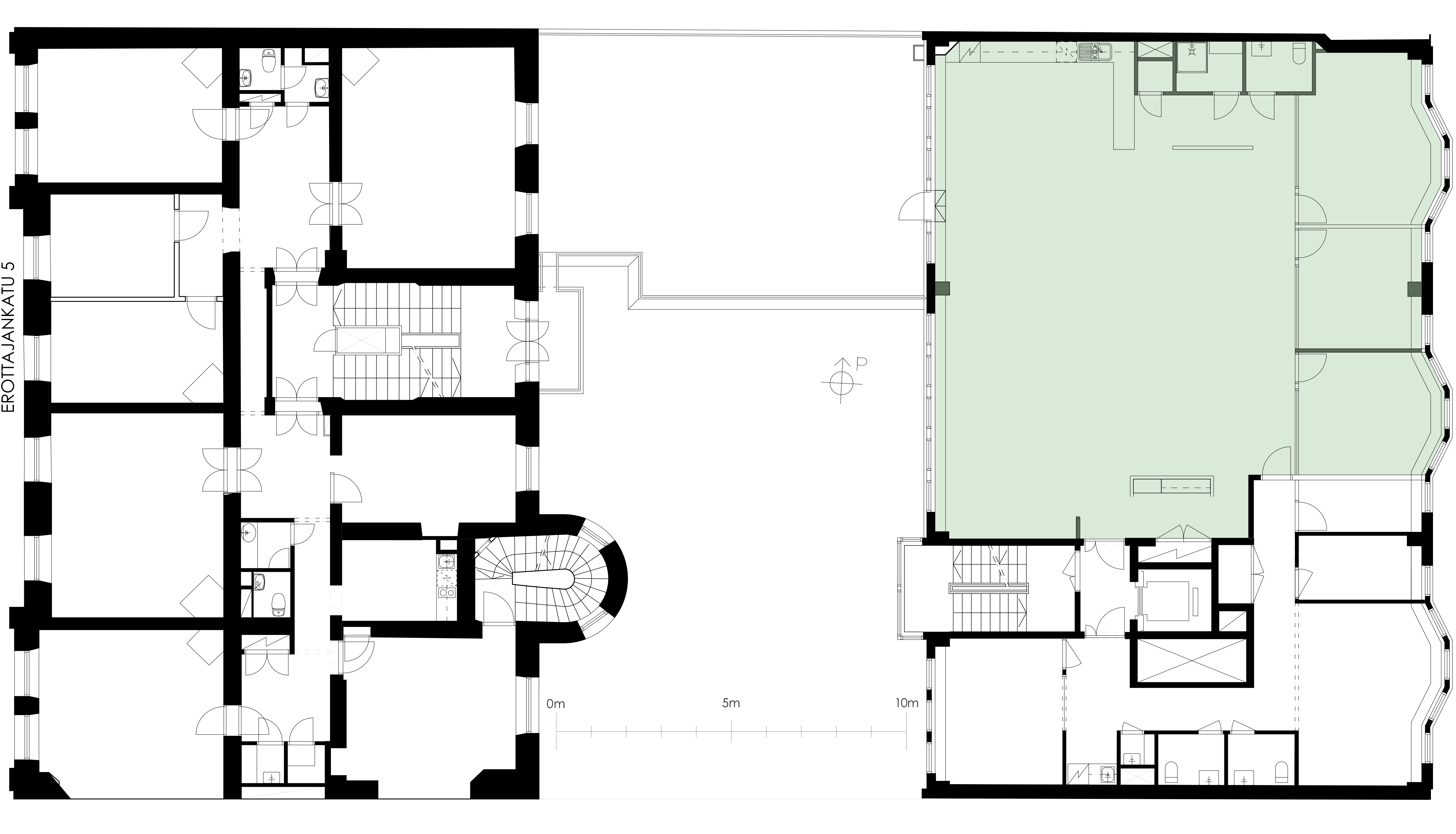
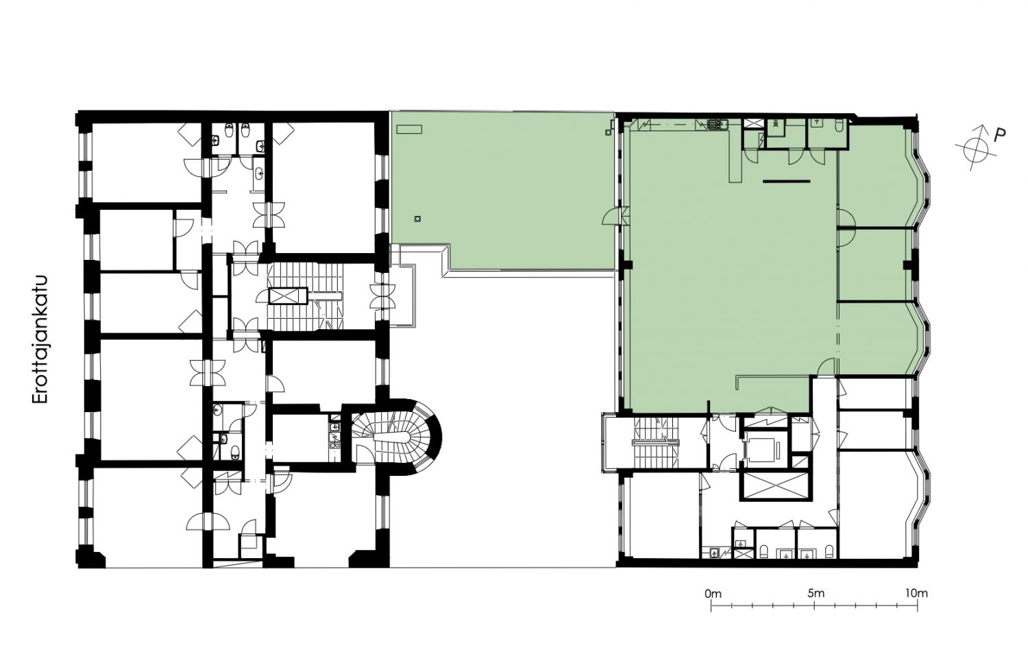
Rauhallisella sisäpihalla sijaitseva 4. kerroksen läpitalon moderni toimistotila, josta on suora yhteys yhdellä hissillä autohalliin. Tilaan kuuluu myös iso sisäpihan terassi. Tilassa on nykyisellään iso avotila ja pari toimistohuonetta. Oheisessa pohjakuvassa on nykytilanteen mukainen tilajako.
Osoite
Erottajankatu 5, Helsinki
Tilatyyppi
Toimistotilaa
191 m2
Pohjapiirros
Kiinteistö
Historiallista arvokkuutta henkivä toimisto- ja liikekiinteistö vehreällä paikalla Helsingin ydinkeskustassa.
Erottajankatu 5 on ainutlaatuinen ja historiallinen kiinteistö, jonka näyttävä sisääntulo tekee välittömän vaikutuksen. Kiinteistö koostuu kahdesta erillisestä rakennuksesta, joista molempiin on oma sisäänkäynti. Erottajan puoleisesta rakennuksesta avautuvat upeat näkymät vehreään Diana-puistoon, ja sen korkeissa, arvokkaissa tiloissa tunnelmaa luovat useat jugend-tyyliset kaakeliuunit. Rauhallisella sisäpihalla sijaitseva rakennus tarjoaa modernimpaa toimitilaa, ja osassa tiloista on myös oma terassi.
Iso Roobertinkadun ravintolakeskittymän palvelut löytyvät läheltä ja Punavuoren trendikkäät kaupat sekä keskustan kaikki palvelut kävelyetäisyyden päässä.
Kiinteistölle on myönnetty BREEAM In-Use Excellent -tason ympäristösertifikaatti. BREEAM (Building Research Establishment Environmental Assessment Method) on kansainvälinen rakennusten ympäristöluokitusjärjestelmä, joka tähtää rakennuksen käytön ympäristövaikutusten vähentämiseen sekä terveellisempien työympäristöjen kehittämiseen.
Erottajankatu 5 on ainutlaatuinen ja historiallinen kiinteistö, jonka näyttävä sisääntulo tekee välittömän vaikutuksen. Kiinteistö koostuu kahdesta erillisestä rakennuksesta, joista molempiin on oma sisäänkäynti. Erottajan puoleisesta rakennuksesta avautuvat upeat näkymät vehreään Diana-puistoon, ja sen korkeissa, arvokkaissa tiloissa tunnelmaa luovat useat jugend-tyyliset kaakeliuunit. Rauhallisella sisäpihalla sijaitseva rakennus tarjoaa modernimpaa toimitilaa, ja osassa tiloista on myös oma terassi.
Iso Roobertinkadun ravintolakeskittymän palvelut löytyvät läheltä ja Punavuoren trendikkäät kaupat sekä keskustan kaikki palvelut kävelyetäisyyden päässä.
Kiinteistölle on myönnetty BREEAM In-Use Excellent -tason ympäristösertifikaatti. BREEAM (Building Research Establishment Environmental Assessment Method) on kansainvälinen rakennusten ympäristöluokitusjärjestelmä, joka tähtää rakennuksen käytön ympäristövaikutusten vähentämiseen sekä terveellisempien työympäristöjen kehittämiseen.
Sijainti
Kiinteistö on hyvien kulkuyhteyksien varrella, sillä aivan rakennuksen edessä on raitiovaunupysäkki.
Pysäköinti
Oma parkkihalli ja Aimo Park Erottaja
Palvelut
Kiinteistön kivijalasta löytyy päivittäistavarakauppa. Myös kaikki muut keskustan palvelut sijaitsevat kävelyetäisyydellä.
Kulkuyhteydet
Lähimmälle bussipysäkille 50 m
Lähimmälle juna-asemalle 750 m
Lähimmälle metroasemalle 800 m
Lähimmälle raitiovaunupysäkille 100 m
Lentokentälle 35 min
Lähimmälle juna-asemalle 750 m
Lähimmälle metroasemalle 800 m
Lähimmälle raitiovaunupysäkille 100 m
Lentokentälle 35 min
Vapautuu
Kysy
Rakennusvuosi
1910
Kerros
4
Energiatehokkuusluokka
B2018
Ympäristöluokitus
BREEAM In-Use Excellent,GRESB Global Sector Leader 2025
Ota yhteyttä
Sponda Oy
Yrjönkatu 29C, 00100 Helsinki
Näytä puhelinnumero
020 43131
Laura Toponen
Senior Leasing Manager
Näytä puhelinnumero
+35850 413 4223
Sponda Oy
https://www.sponda.fiPyydä lisätietoa
