Vuokrataan liiketilat - Helsinki
Erottajankatu 7, Kaartinkaupunki, 00130 Helsinki #10789442
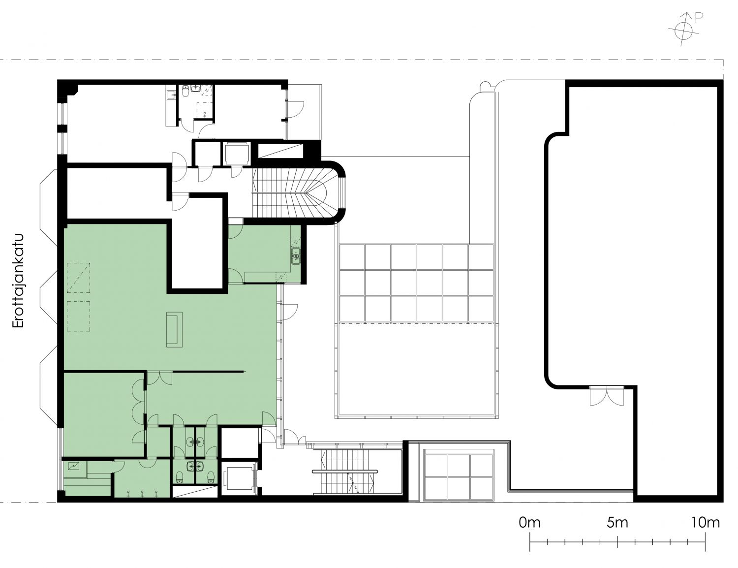
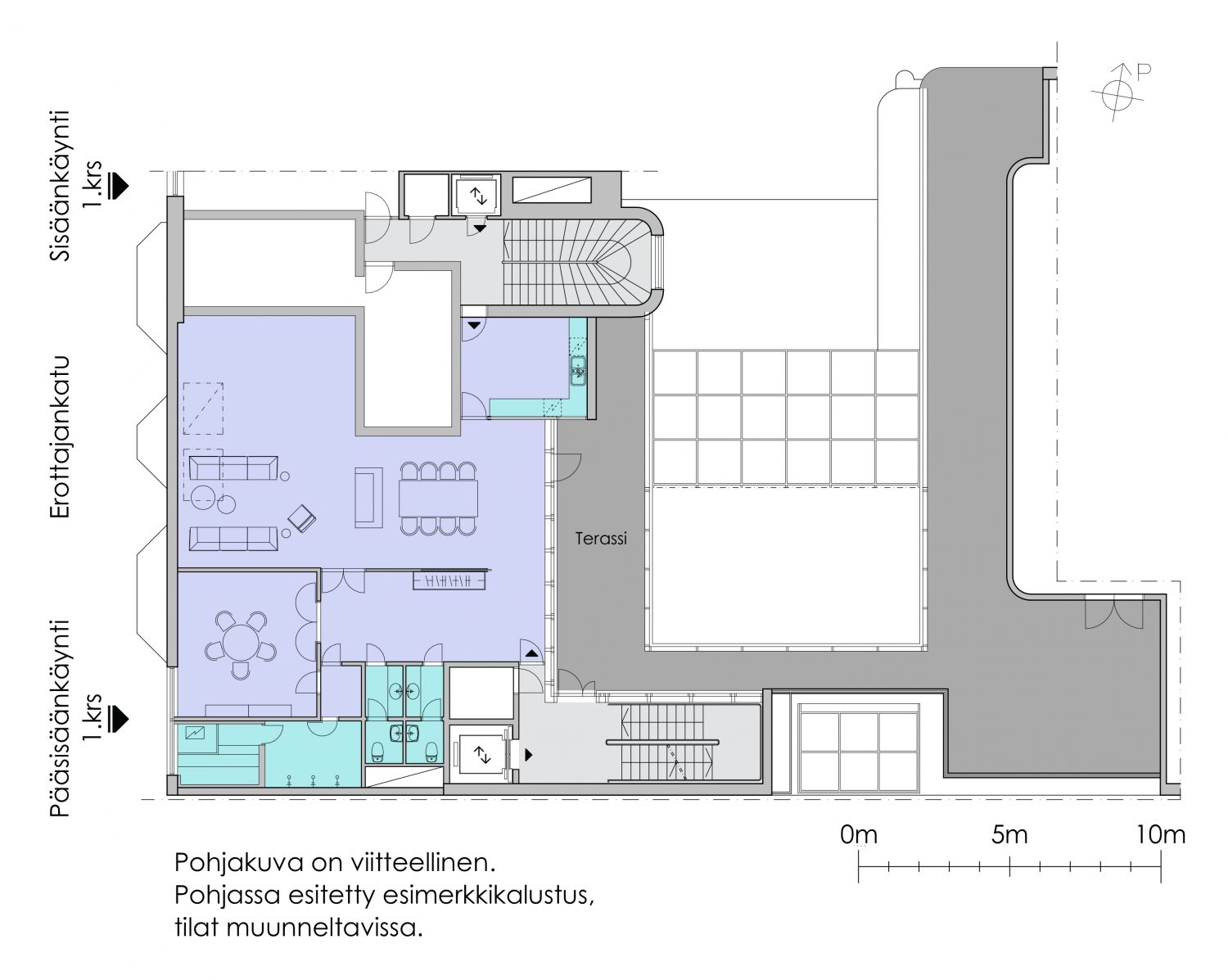
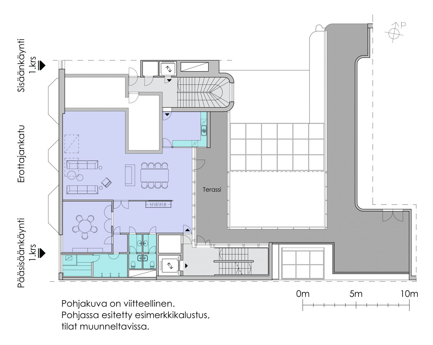
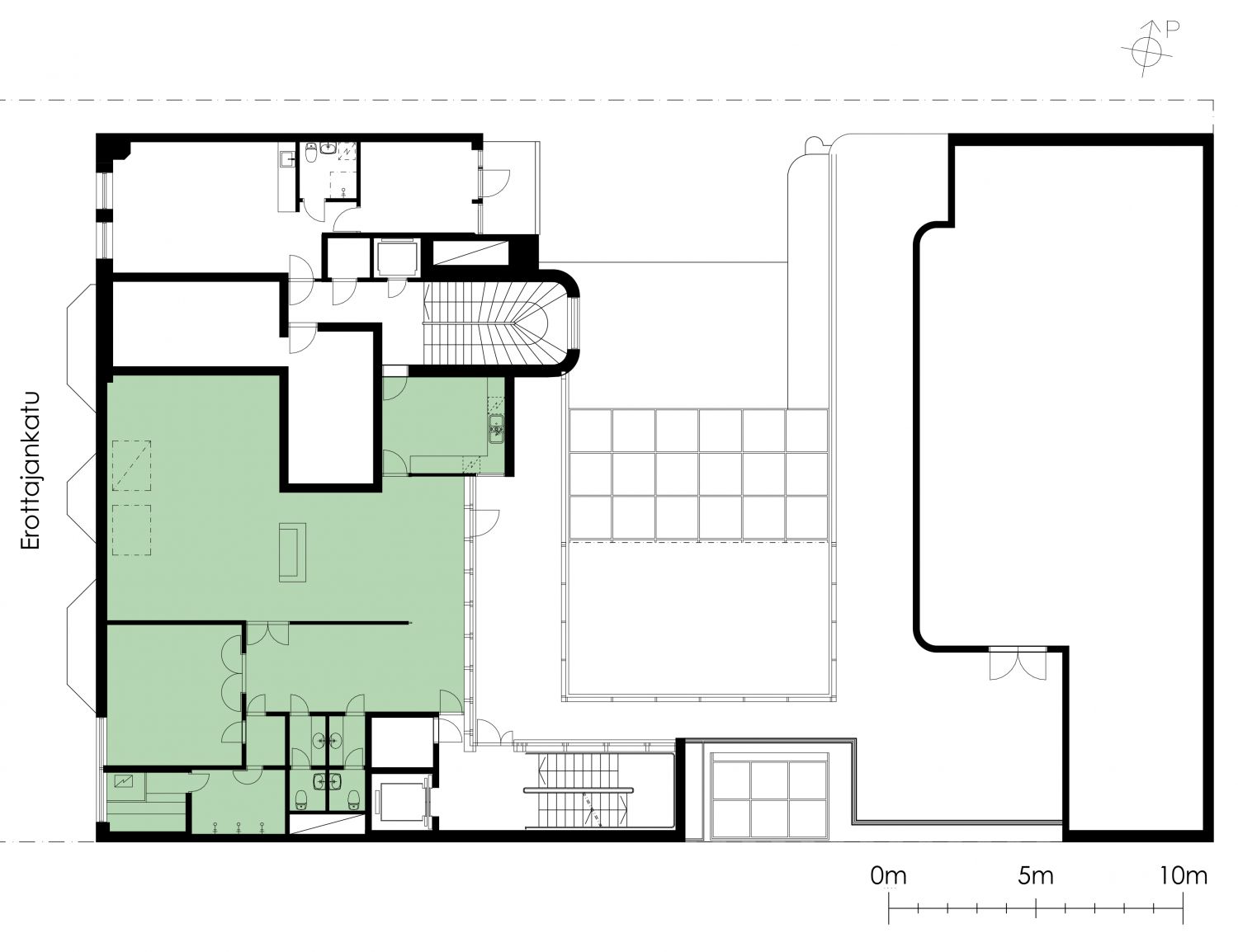
Ylimmän kerroksen liiketila saunalla ja suurella 137m² terassilla. Tila soveltuu nykyisellään esimerkiksi juhla- ja edustustilaksi. Tila on mahdollista muuttaa myös upeaksi ja uniikiksi toimistotilaksi.
Osoite
Erottajankatu 7, 00130 Helsinki
Tilatyyppi
Liiketilaa
159 m2
Pohjapiirros
Kiinteistö
Diana-puiston vieressä sijaitseva upea toimisto- ja liiketilakiinteistö tarjoaa modernia toimitilaa historiallisissa puitteissa.
Ihastuttava kiinteistö on valmistunut vuonna 1912. Se sijaitsee erinomaisella paikalla Erottajalla, aivan Helsingin ydinkeskustassa.
Iso Roobertinkadun ravintolakeskittymä on nurkan takana ja lyhyen kävelymatkan päässä kiinteistöstä sijaitsevat Helsingin keskustan ja Punavuoren monipuoliset palvelut.
Kiinteistölle on myönnetty BREEAM In-Use Excellent -tason ympäristösertifikaatti. BREEAM (Building Research Establishment Environmental Assessment Method) on kansainvälinen rakennusten ympäristöluokitusjärjestelmä, joka tähtää rakennuksen käytön ympäristövaikutusten vähentämiseen sekä terveellisempien työympäristöjen kehittämiseen.
Ihastuttava kiinteistö on valmistunut vuonna 1912. Se sijaitsee erinomaisella paikalla Erottajalla, aivan Helsingin ydinkeskustassa.
Iso Roobertinkadun ravintolakeskittymä on nurkan takana ja lyhyen kävelymatkan päässä kiinteistöstä sijaitsevat Helsingin keskustan ja Punavuoren monipuoliset palvelut.
Kiinteistölle on myönnetty BREEAM In-Use Excellent -tason ympäristösertifikaatti. BREEAM (Building Research Establishment Environmental Assessment Method) on kansainvälinen rakennusten ympäristöluokitusjärjestelmä, joka tähtää rakennuksen käytön ympäristövaikutusten vähentämiseen sekä terveellisempien työympäristöjen kehittämiseen.
Sijainti
Kulkuyhteydet kiinteistölle ovat hyvät, sillä rakennuksen edessä on raitiovaunupysäkit.
Pysäköinti
Oma parkkihalli sekä Aimo Park Erottaja
Palvelut
Kaikki keskustan palvelut sijaitsevat kävelyetäisyydellä.
Kulkuyhteydet
Lähimmälle bussipysäkille 50 m
Lähimmälle juna-asemalle 750 m
Lähimmälle metroasemalle 800 m
Lähimmälle raitiovaunupysäkille 100 m
Lentokentälle 35 min
Lähimmälle juna-asemalle 750 m
Lähimmälle metroasemalle 800 m
Lähimmälle raitiovaunupysäkille 100 m
Lentokentälle 35 min
Vapautuu
Kysy
Rakennusvuosi
1912
Kerros
6
Energiatehokkuusluokka
B2018
Ympäristöluokitus
BREEAM In-Use Excellent,GRESB Global Sector Leader 2025
Ota yhteyttä
Sponda Oy
Yrjönkatu 29C, 00100 Helsinki
Näytä puhelinnumero
020 43131
Laura Toponen
Senior Leasing Manager
Näytä puhelinnumero
+35850 413 4223
Sponda Oy
https://www.sponda.fiPyydä lisätietoa
