Vuokrataan toimistotilat - Helsinki
Arkadiankatu 6, Kamppi, 00100 Helsinki #10789438
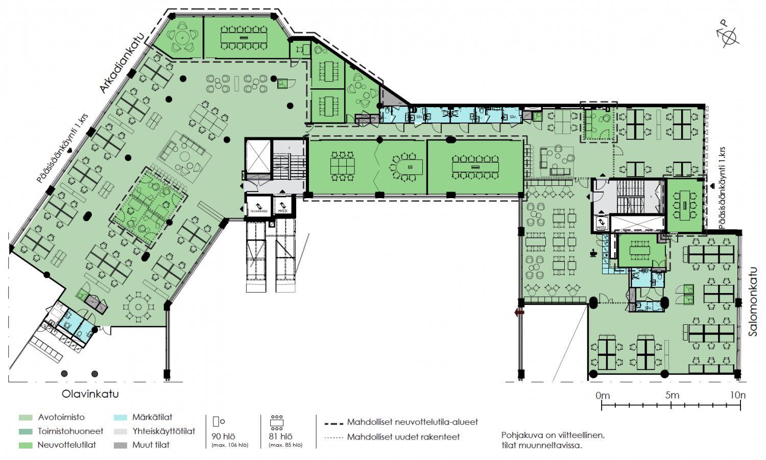
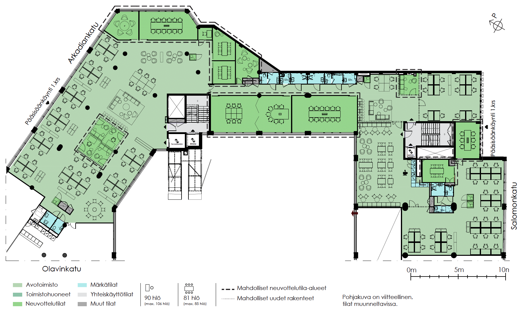
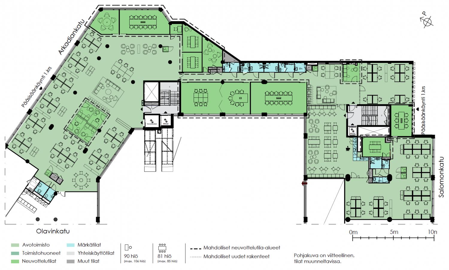
Upea muuttovalmis avotoimistotila jossa on tehokasta tilankäyttöä.
Osoite
Arkadiankatu 6, 00100 Helsinki
Tilatyyppi
Toimistotilaa
1205 m2
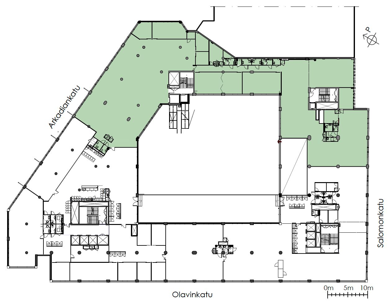
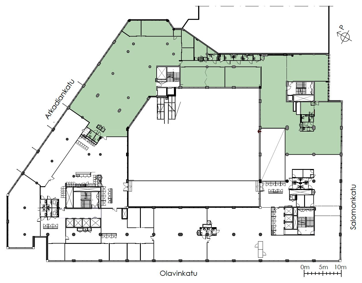
Pohjapiirros
Kiinteistö
Jokaisen asiakkaan tarpeiden ja toiveiden pohjalta tehtävä yksilöllinen toimitilasuunnittelu takaa parhaan paikan bisnekselle Helsingin ytimessä.
Helsingin ytimessä, Narinkkatorin reunalla seisoo Einari Teräsvirran vuonna 1977 suunnittelema kolossaalinen talo, jonka suojellun julkisivun taakaa löytyy toimisto- ja liiketilaa, joissa on tilaa tehdä työtä ja hengittää.
Talo on valtava, kerrosten pinta-ala samoin. Yhdessä tasossa olevaa tilaa on kussakin kerroksessa jopa yli 3 000 m². Sinun ei tarvitse tietää, mitä tiloiltasi haluat, millaisia palveluita kaipaat, tai montako neliötä on tarpeeksi. Selvitetään liiketoimintasi ja henkilökuntasi tarpeet ja toiveet yhdessä. Talossa on vuokrattavissa myös varastotilaa.
Arkadian vaikuttavat ja viihtyisät julkiset tilat palvelevat kaikkia talon käyttäjiä. Palvelutarjontaa tähdittää muun muassa kaksikerroksinen ravintola Farang. Työhyvinvointia tukee talossa toimiva Elixian kuntosali.
Arkadialle on myönnetty BREEAM In-Use Excellent -tason ympäristösertifikaatti. BREEAM (Building Research Establishment Environmental Assessment Method) on kansainvälinen rakennusten ympäristöluokitusjärjestelmä, joka tähtää rakennuksen käytön ympäristövaikutusten vähentämiseen sekä terveellisempien työympäristöjen kehittämiseen.
Arkadia toimii 100 % päästöttömällä energialla, kuten tuulisähköllä ja uusiutuvalla kaukolämmöllä. Lisäksi katolle asennettu aurinkovoimala tuottaa uusiutuvaa energiaa kiinteistön käyttöön.
Helsingin ytimessä, Narinkkatorin reunalla seisoo Einari Teräsvirran vuonna 1977 suunnittelema kolossaalinen talo, jonka suojellun julkisivun taakaa löytyy toimisto- ja liiketilaa, joissa on tilaa tehdä työtä ja hengittää.
Talo on valtava, kerrosten pinta-ala samoin. Yhdessä tasossa olevaa tilaa on kussakin kerroksessa jopa yli 3 000 m². Sinun ei tarvitse tietää, mitä tiloiltasi haluat, millaisia palveluita kaipaat, tai montako neliötä on tarpeeksi. Selvitetään liiketoimintasi ja henkilökuntasi tarpeet ja toiveet yhdessä. Talossa on vuokrattavissa myös varastotilaa.
Arkadian vaikuttavat ja viihtyisät julkiset tilat palvelevat kaikkia talon käyttäjiä. Palvelutarjontaa tähdittää muun muassa kaksikerroksinen ravintola Farang. Työhyvinvointia tukee talossa toimiva Elixian kuntosali.
Arkadialle on myönnetty BREEAM In-Use Excellent -tason ympäristösertifikaatti. BREEAM (Building Research Establishment Environmental Assessment Method) on kansainvälinen rakennusten ympäristöluokitusjärjestelmä, joka tähtää rakennuksen käytön ympäristövaikutusten vähentämiseen sekä terveellisempien työympäristöjen kehittämiseen.
Arkadia toimii 100 % päästöttömällä energialla, kuten tuulisähköllä ja uusiutuvalla kaukolämmöllä. Lisäksi katolle asennettu aurinkovoimala tuottaa uusiutuvaa energiaa kiinteistön käyttöön.
Sijainti
Kiinteistö sijaitsee Helsingin ydinkeskustassa Narinkkatorin laidalla ja siihen on loistavat julkiset yhteydet. Bussiterminaali, rautatieasema, metro- ja raitiovaunuyhteydet sijaitsevat kiinteistön välittömässä läheisyydessä. Arkadiankatu 6:een on helppo tulla pyörällä, sillä Baana kulkee aivan vierestä.
Pysäköinti
Autopaikat kiinteistön parkkihallissa
Palvelut
Aulapalvelu palvelee toimitalon kaikilla sisäänkäynneillä. Arkadiankatu 6:n ravintolapalvelut täydentävät alueen monipuolista ravintola- ja kahvilatarjontaa. Toimistotalon ravintolapalvelut ovat niin vuokralaisten kuin kaikkien kaupunkilaisten käytössä. Kiinteistöstä löytyy myös Elixian kuntosali sekä erillinen liikuntatila, jota voi varata yrityksen omaan käyttöön extranet-palvelun kautta. Naapurista löydät muun muassa hotelleja, ravintoloita ja kahviloita sekä monipuolista kulttuuritarjontaa sekä kauppakeskukset Forum, Citycenter ja Kamppi.
Kulkuyhteydet
Lähimmälle bussipysäkille 50 m
Lähimmälle juna-asemalle 550 m
Lähimmälle metroasemalle 500 m
Lähimmälle raitiovaunupysäkille 150 m
Lentokentälle 30 min
Lähimmälle juna-asemalle 550 m
Lähimmälle metroasemalle 500 m
Lähimmälle raitiovaunupysäkille 150 m
Lentokentälle 30 min
Vapautuu
Kysy
Rakennusvuosi
1977
Kerros
3
Energiatehokkuusluokka
B2018
Ympäristöluokitus
BREEAM In-Use Excellent,GRESB Global Sector Leader 2025
Ota yhteyttä
Sponda Oy
Yrjönkatu 29C, 00100 Helsinki
Näytä puhelinnumero
020 43131
Harri Autio
Director, Leasing
Näytä puhelinnumero
+358 40 846 6560
Sponda Oy
https://www.sponda.fiPyydä lisätietoa
