Vuokrataan toimistotilat - Espoo
Kutojantie 2, Kilo, 02630 Espoo #10789434
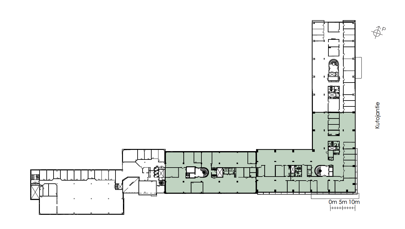
Ylimmän kerroksen hyväkuntoinen toimistotila, jossa on yhdistetty 872 + 541 m². Avotoimistotila tarjoaa mahdollisuuksia käyttötarkoituksen mukaan. Palkkijäähdytys ja nykyaikainen valaistus. Valmiudet mm. varavoimaan ja ups-sähköön.
Osoite
Kutojantie 2, 02630 Espoo
Tilatyyppi
Toimistotilaa
1413 m2
Pohjapiirros
Kiinteistö
Toimivat tilat Kilon toimistoalueella! Tämän toimitilakiinteistön palvelut sekä saavutettavuus ovat erinomaiset.
Kilon Ritarina tunnettu kiinteistö sijaitsee kivenheiton päässä Turunväylän ja Kehä II:n risteyksestä, joten pääväylille pääsee nopeasti. Työmatkansa autoilevalle on hyvät pysäköintialueet. Tänne pääsee helposti myös julkisilla liikennevälineillä: 800 metrin päässä kiinteistöstä sijaitsee Keran asema, läheltä kulkee useita bussilinjoja ja Espoon yksi vilkkaimmista taksitolpista on aivan kiinteistön edessä. Kiinteistössä on yhteiset suihku- ja pukeutumistilat mm. pyörällä töihin tuleville. A-talon aulaan voidaan tarvittaessa järjestää aulapalvelutoiminto.
Kauppakeskus Granin monipuoliset palvelut Kauniaisissa ovat aivan kivenheiton päässä. Löydät Granista hyvät ruokakaupat ja Alkon, leppoisia ruokapaikkoja sekä useita palveluita hyvinvoinnista ja kauneudesta.
Kauppakeskus Sellon monipuoliset palvelut ovat 10 minuutin ajomatkan päässä. Kattavasta tarjonnasta löytyy lukuisia lounasravintoloita, ruokakauppoja, terveys- ja liikuntapalveluita, sekä tasokas hotelli.
Kiinteistön toimistotilat ovat muokattavissa käyttäjien tarpeisiin sopiviksi.
Kilon Ritarina tunnettu kiinteistö sijaitsee kivenheiton päässä Turunväylän ja Kehä II:n risteyksestä, joten pääväylille pääsee nopeasti. Työmatkansa autoilevalle on hyvät pysäköintialueet. Tänne pääsee helposti myös julkisilla liikennevälineillä: 800 metrin päässä kiinteistöstä sijaitsee Keran asema, läheltä kulkee useita bussilinjoja ja Espoon yksi vilkkaimmista taksitolpista on aivan kiinteistön edessä. Kiinteistössä on yhteiset suihku- ja pukeutumistilat mm. pyörällä töihin tuleville. A-talon aulaan voidaan tarvittaessa järjestää aulapalvelutoiminto.
Kauppakeskus Granin monipuoliset palvelut Kauniaisissa ovat aivan kivenheiton päässä. Löydät Granista hyvät ruokakaupat ja Alkon, leppoisia ruokapaikkoja sekä useita palveluita hyvinvoinnista ja kauneudesta.
Kauppakeskus Sellon monipuoliset palvelut ovat 10 minuutin ajomatkan päässä. Kattavasta tarjonnasta löytyy lukuisia lounasravintoloita, ruokakauppoja, terveys- ja liikuntapalveluita, sekä tasokas hotelli.
Kiinteistön toimistotilat ovat muokattavissa käyttäjien tarpeisiin sopiviksi.
Sijainti
Kilon Ritari sijaitsee Espoon Kilossa Nihtisillan työpaikka-alueella, Turun moottorien ja Kehä II:n risteysalueen välittömässä läheisyydessä. Etäisyys Kauniaisten keskustaan on noin 1,5 km ja Turunväylän liittymään noin 0,5 km. Keran rautatieasema on 0,8 km päässä. Espoon yksi vilkkaimmista taksitolpista sijaitsee aivan kiinteistön vieressä.
Kohteessa on hyvät pysäköintialueet.
Kohteessa on hyvät pysäköintialueet.
Pysäköinti
Autopaikat
Kulkuyhteydet
Lähimmälle bussipysäkille 200 m
Lähimmälle juna-asemalle 800 m
Lentokentälle 25 min
Lähimmälle juna-asemalle 800 m
Lentokentälle 25 min
Vapautuu
Kysy
Rakennusvuosi
1971
Kerros
5
Energiatehokkuusluokka
C2018
Ympäristöluokitus
GRESB Global Sector Leader 2024
Ota yhteyttä
Sponda Oy
Yrjönkatu 29C, 00100 Helsinki
Näytä puhelinnumero
020 43131
Anna Puhtila
Senior Manager, Value Add Portfolio
Näytä puhelinnumero
+358 50 407 9601
Sponda Oy
https://www.sponda.fiPyydä lisätietoa
