Vuokrataan toimistotilat, varastotilat - Espoo
Koskelontie 21-25, Koskelo, 02920 Espoo #10788998
Varasto 1 201 m²: vapaa korkeus 8 m, nosto-ovet lastauslaiturilla
Toimistotilat: yhteensä 842 m² (1. ja 2. kerroksessa)
Tilat voidaan yhdistää suuremmaksi kokonaisuudeksi
Osoite
Koskelontie 21-25, 02920 Espoo
Tilatyyppi
Toimistotilaa
840 m2
Varastotilaa
1201 m2
Yhteensä
2041 m2
Kiinteistö
Kohteessa on vapaana tiloja kolmessa rakennuksessa:
A-talo: varastotilaa
B-talo: varasto- ja toimistotiloja
C-talo: varasto-, toimisto- ja liiketiloja
A-talo – 1 410 m² varastotila
Maantasossa sijaitseva varasto
Kolme nosto-ovea (leveys 4,5 m)
Vapaa korkeus n. 5–6 m
Parvella toimistotilaa
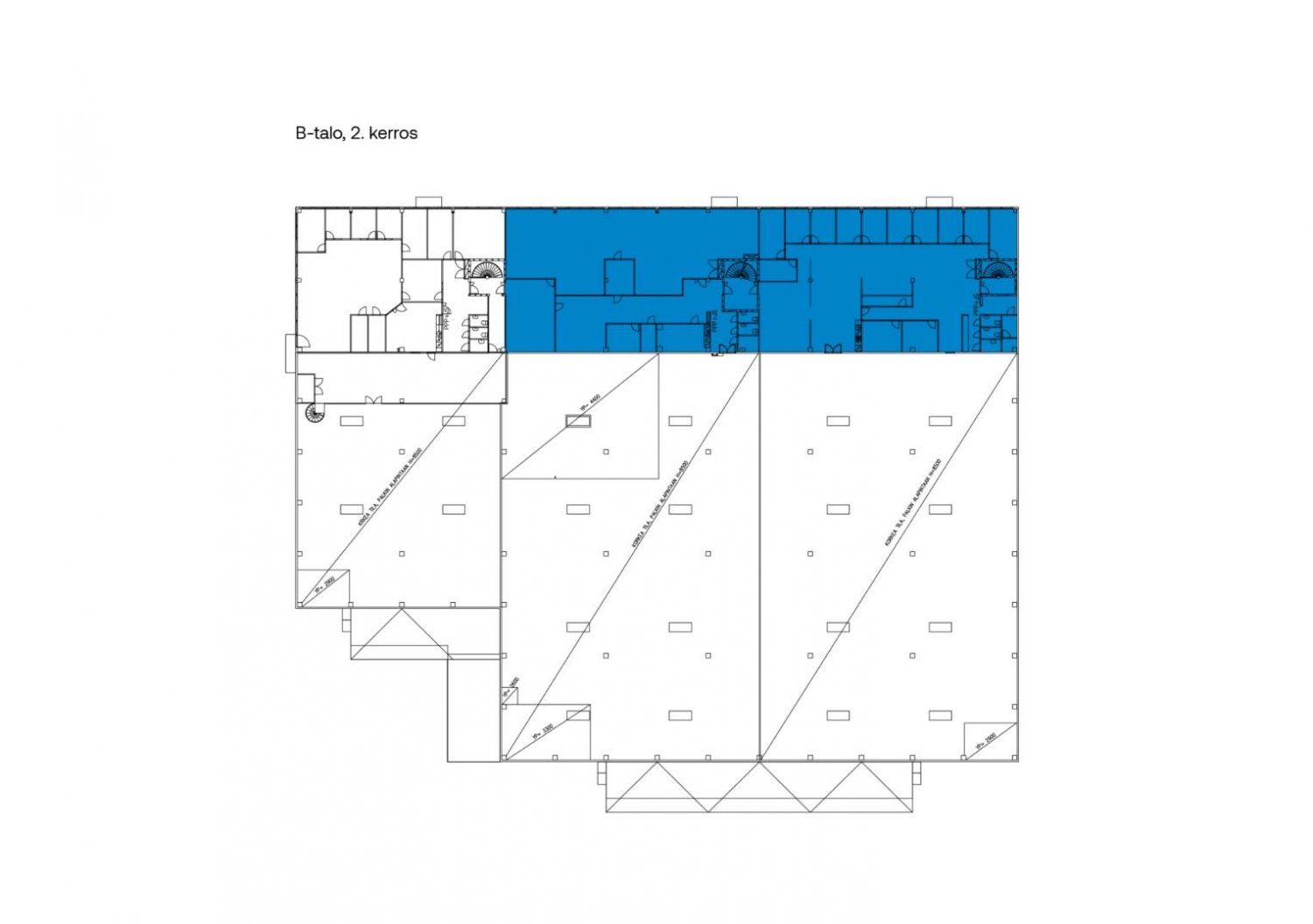
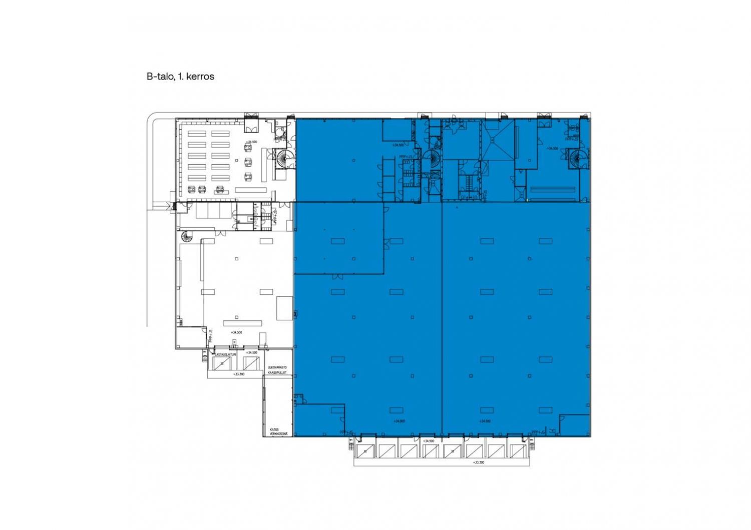
B-talo – yhteensä 4 083 m² varasto- ja toimistotilaa
1. kerros: varasto 1 391 m² + sosiaalitilat, nosto-ovi maantasossa ja lastauslaituri toisella puolella
2. kerros: toimisto 424 m² (edustava toimistokokonaisuus)
Toinen vaihtoehto:
Varasto 1 201 m²: vapaa korkeus 8 m, nosto-ovet lastauslaiturilla
Toimistotilat: yhteensä 842 m² (1. ja 2. kerroksessa)
Tilat voidaan yhdistää suuremmaksi kokonaisuudeksi
C-talo – yhteensä 2 746 m² varasto- ja toimistotilaa
Varasto 1 177 m²: vapaa korkeus 8,9 m (osassa 5,7 m), nosto-ovi lastauslaiturille
Varasto 1 155 m²: vapaa korkeus 8,9 m, nosto-ovi lastauslaiturille, lasiseinä Kehä III:lle päin – soveltuu myös myymäläkäyttöön
Toimisto 294 m²: toisen kerroksen toimisto (ei hissiä)
Toimisto 160 m²: toisen kerroksen toimisto (ei hissiä), josta yksi huone vuokrattu
A-talo: varastotilaa
B-talo: varasto- ja toimistotiloja
C-talo: varasto-, toimisto- ja liiketiloja
A-talo – 1 410 m² varastotila
Maantasossa sijaitseva varasto
Kolme nosto-ovea (leveys 4,5 m)
Vapaa korkeus n. 5–6 m
Parvella toimistotilaa
B-talo – yhteensä 4 083 m² varasto- ja toimistotilaa
1. kerros: varasto 1 391 m² + sosiaalitilat, nosto-ovi maantasossa ja lastauslaituri toisella puolella
2. kerros: toimisto 424 m² (edustava toimistokokonaisuus)
Toinen vaihtoehto:
Varasto 1 201 m²: vapaa korkeus 8 m, nosto-ovet lastauslaiturilla
Toimistotilat: yhteensä 842 m² (1. ja 2. kerroksessa)
Tilat voidaan yhdistää suuremmaksi kokonaisuudeksi
C-talo – yhteensä 2 746 m² varasto- ja toimistotilaa
Varasto 1 177 m²: vapaa korkeus 8,9 m (osassa 5,7 m), nosto-ovi lastauslaiturille
Varasto 1 155 m²: vapaa korkeus 8,9 m, nosto-ovi lastauslaiturille, lasiseinä Kehä III:lle päin – soveltuu myös myymäläkäyttöön
Toimisto 294 m²: toisen kerroksen toimisto (ei hissiä)
Toimisto 160 m²: toisen kerroksen toimisto (ei hissiä), josta yksi huone vuokrattu
Sijainti
Loistava sijainti Espoon Koskelossa Kehä III:n välittömässä läheisyydessä. Koskelo Trade Parkista on yhteydet kaikille pääväylille sekä Helsinki-Vantaan lentoasemalle ja Vuosaaren satamaan.
Pysäköinti
Pihalla pysäköinti tilaa.
Vapautuu
Heti
Kerros
1 / 2
Energiatehokkuusluokka
Ei lain edellyttämää energiatodistusta
Katutasossa
Näkyvällä paikalla
Ota yhteyttä
Arvo Premises Oy
Joakim Kukkonen
Osakas, Toimitilavälittäjä
Näytä puhelinnumero
040 555 8106
Seppo Pakarinen
Osakas, Kiinteistönvälittäjä. LKV, YKV, AKA
Näytä puhelinnumero
040-703 8000
Pyydä lisätietoa
