Vuokrataan toimistotilat, liiketilat - Turku

Yliopistonkatu 25, 20100 Turku #10787538

Toimistotila Turun keskustan ytimessä lähellä Kauppatoria ja Hansakorttelia. Tilaa yhteensä 306m2.

Osoite
Yliopistonkatu 25, 20100 Turku
Tilatyyppi
Toimistotilaa
306 m2
Liiketilaa
306 m2
Yhteensä
306 m2
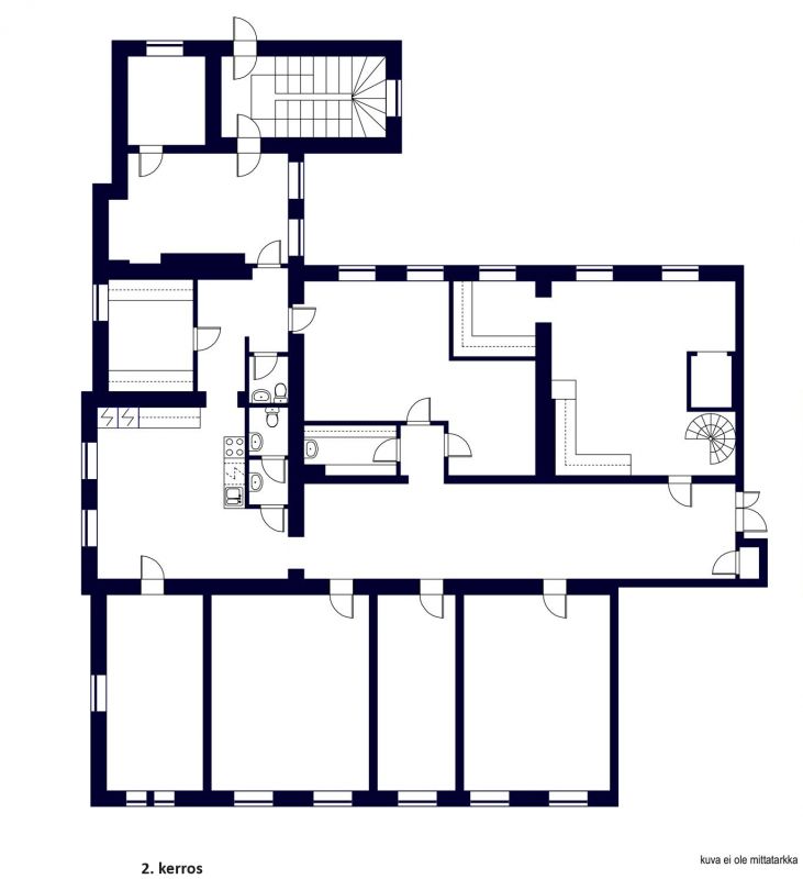
Pohjapiirros
Vuokra
Sopimuksen mukaan
Kiinteistö
Vuonna 1890 valmistunut arvokiinteistö koostuu paljolti elinkeinoelämää palvelevista tiloista. Hyvä esimerkki on tämä pitkään apteekkia palvellut 2. kerroksen toimisto. Rakennukseen on viimeisimpänä tehty LVIS-perusparannus remontti vuonna 2022.

Tämä tilava toimistotila sijaitsee erinomaisella paikalla Turun keskustassa, Yliopistonkadun varrella. Toisessa kerroksessa sijaitseva tila tarjoaa rauhallisen ja inspiroivan työympäristön erilaisille yrityksille ja organisaatioille. Hansakorttelin sisäänkäynnin läheisyys takaa vilkkaan kulkureitin ja hyvän näkyvyyden toimistolle.

Toimistotila koostuu yhteensä 306m2 alasta huoneineen ja avotiloineen, joka mahdollistaa tehokkaan ja joustavan tilojen suunnittelun. Tilassa on runsaasti luonnonvaloa, mikä luo miellyttävän työympäristön ja edistää työntekijöiden hyvinvointia. Lisäksi lähellä sijaitsevat parkkipaikat tarjoavat kätevän mahdollisuuden asiakkaiden ja työntekijöiden pysäköintiin.

Tämä toimistotila tarjoaa mahdollisuuden luoda moderni ja viihtyisä työympäristö organisaatiollesi Turun keskustassa.
Sijainti
Tämä tila sijaitsee Turun ydinkeskustassa kävelykadun varrella. Vastapäätä on kauppakeskus Hansakorttelin sisäänkäynti ja H&M likkeen sisäänkäynti. Toimisto sijaitsee rakennuksen kulmassa ja siinä on ikkunat niin Yliopistonkadulle, Puolalankadulle kuin sisäpihalle.
Ympäristö
Ympärillä on paljon toimistoja ja liiketiloja. Tämä osaa keskustaa on kävelijöiden suosima alue, sillä liikennettä ei ole kävelykadun vuoksi
Pysäköinti
Vieressä on 3-4 pysäköintilaitosta, joista on saatavilla kuukausipaikkoja. Mahdollisuus paikkaan rakennuksen sisäpihalla
Palvelut
Kaikki keskustan palvelut ovat kävelyetäisyydellä. Lukuisat lounasravintolat ja erilaiset liikkeet ovat vaivattomasti saavutettavissa lähietäisyydellä
Kulkuyhteydet
Turussa julkinen liikenne kulkee Kauppatorin kautta, joka on tämän rakennuksen vieressä 100m matkan päässä. Omalla autolla asiointi helppoa lukuisten pysäköintimahdollisuuksien johdosta
Vuokralaisia
Rakennuksessa on useampi vuokralainen
Muuta
Toimisto on tällä hetkellä yhdistetty kerrosta alempana olevaan liiketilaan, johon käynti tapahtuu tilat yhdistävien kierreportaiden kautta tai rakennuksen rappukäytävästä. Katutason huoneisto on kaikkiaan 303m2 koostuen lähinnä avotilasta. Toimiston vuokraluokka sellaisenaan on n. 15-18€/m2/kk. Pitkäaikaisella vuokrasopimuksella vuokranantaja on valmis remontoimaan huoneistoa toiveiden mukaan.
Lisätietoa saneerauksista
LVIS-perusparannus
Vapautuu
Heti
Rakennusvuosi
1890
Saneerausvuosi
2022
Kerros
2
Energiatehokkuusluokka
E2013

Näkyvällä paikalla

Hissi

Ota yhteyttä

Turun Alueen Toimitilat Oy

Jukka Haataja
KTM, LKV
Puh. Näytä puhelinnumero 040 6832283

Turun Alueen Toimitilat on perustettu vuonna 2010. Yritys on kiinteistönvälitykseen, toimitilakonsultointiin ja tilakartoitukseen erikoistunut osaaja. Lisäksi yrityksellä on yli 10 vuoden kokemus pankki- ja rahoitusalalta.

Ota rohkeasti yhteyttä ja kerro meille tarpeesi, niin kartoitamme laajasta kiinteistökannastamme yrityksellesi sopivat tilat!
Meiltä kannattaa myös tiedustella myynnissä olevia sijoituskohteita (suuri osa kohteista ovat hiljaisessa myynnissä) sekä tontteja mikäli yrityksesi haluaa räätälöidyt tilat.

  http://www.turunalueentoimitilat.fi
Pyydä lisätietoa

Kohteesta Yliopistonkatu 25, Turku

 

B2B palvelut

LASTAUSRATKAISUT

Mainos
Lastauksien ratkaisut tehokkaammin ja turvallisemmin

MARKKINOINTI

Tavoita oikea kohderyhmä!