Myydään liiketilat - Pomarkku
Vesterinkuja 8, Keskusta, 29630 Pomarkku #10787469
Teollisuus-kauppakiinteistö lähellä Pomarkun keskustaa.
1,39 hehtaarin tilalla sijaitsee rautakauppana toimineet rakennukset.
Myymälärakennus valmistunut vuonna 1986 ja sitä on laajennettu vuonna 1992.
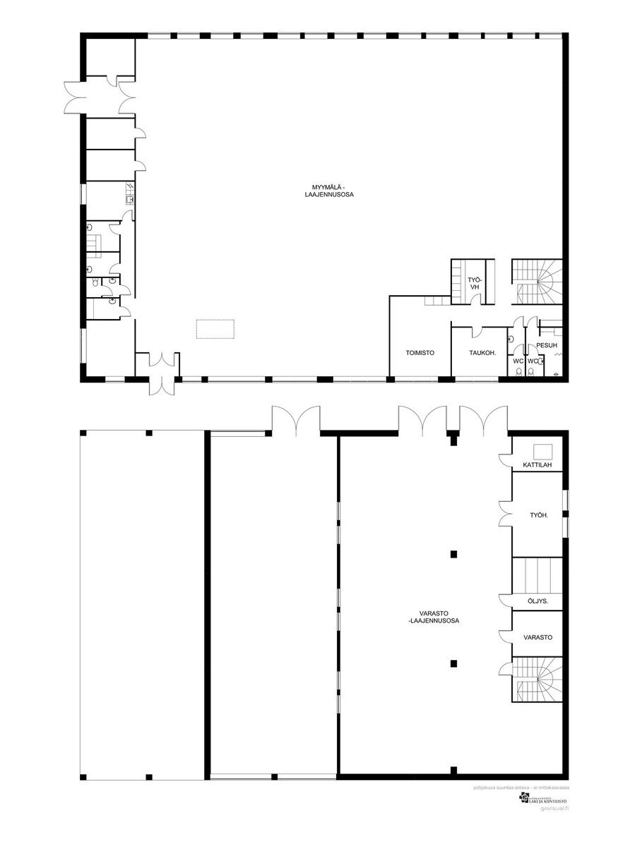
Kerrosala noin 1112 neliötä. Asfaltoidulla pihalla lisäksi noin 920 neliön hallirakennus, jossa sisäkorkeus 5,5 metriä. Tontilla lisäksi kaksi vanhaa varastorakennusta ja asuinrakennus.
Myymälä- ja hallirakennuksen kerrosala yhteensä yli 2000 neliötä tarjoten monipuoliset ja siistit tilat moneen eri yritystoimintaan. Myymälärakennuksen tilat kahdessa eri kerroksessa. Myymälärakennuksessa keskuslämmitys (öljy), osaksi sähkölämmitys sekä kaksi ilmalämpöpumppua. Rakennuksessa koneellinen poistoilma. "Yläkerran" sisäkorkeus noin 3,5 metriä, joka muunneltavissa olevaa tilaa. Asemakaavan mukaisen tontin tehokkuusluku 0,6, joten runsaasti käyttämätöntä rakennusoikeutta jälkellä.
Hyvin hoidettu kokonaisuus, hyvällä sijainnilla.
Tule tutustumaan soveltuisiko tämä kiinteistö sinun käyttötarkoitukseen!
Vuosittainen öljynkulutus noin 4000L/vuosi.
Varainsiirtovero 3%.
2 X sosiaalitilat yläkerrassa.

Kankaanpään Laki ja Kiinteistö Oy
Keskuskatu 61
38700 KANKAANPÄÄ
Näytä puhelinnumero
+35825788991
Tuori Juhani
kiinteistönvälittäjä, kaupanvahvistaja
Näytä puhelinnumero
044-553 0215