Myydään liiketilat - Karvia
Kylä-Karviantie 13A, Keskusta, 39930 Karvia #10787463
Komea kivitalo Karvian keskustassa.
Karvian Säästöpankin aikoinaan rakennuttama ja pitkään pankin käytössä ollut kiinteistö, jolla vuonna 1939 valmistunut täystiilirakenteinen, jykevä rakennus.
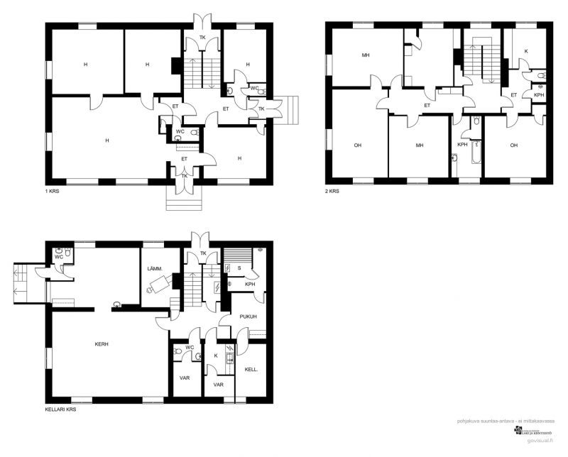
Rakennuksessa tiloja kolmessa eri kerroksessa. Yläkerrassa kaksi vuokrattuna olevaa asuntoa (yksiö ja kolmio). Katutasossa kaksi liiketilaa, joista toinen vuokrattuna kampaamo-alan yritykselle. Kellarikerroksessa monikäyttöinen kerho-kokoushuone, joka soveltunut vuosien varrella erittäin hyvin sekä yritys- että harrastekäyttöön sekä asunnoksi. Kolme eri sisäänkäyntiä sekä käynti autotalliovilla entiseen autotalliin, joka tällä hetkellä pois käytöstä ja yhdistetty kerho-kokoustilaan. Näiden lisäksi ullakko. Eri kerrokset yhdistää kaunis portaikko. Kolme eri sisäänkäyntiä, lisäksi kellariin autotalli, joka tällä hetkellä poissa käytöstä. Kerrosala yhteensä noin 450 neliötä.
Rakennuksessa pidetty vuosien mittaan hyvää huolta, mm. vesikatto uusittu, lämmitysjärjestelmä uusittu ja liitytty kaukolämpöverkkoon. Valokuitu mahdollistaa sujuvat yhteydet.
Rakennuksesta on moneksi ja se taipuu idearikkaan omistajan käytössä asumiseen ja monenlaiseen yrittämiseen. Rakennuksen edessä ja takana hyvin paikoitustilaa.
Sijanti mitä mainion, aivan vireän Karvian kunnan keskustassa. Karvia on yhteisöllinen ja erittäin vireä kunta, jossa on hyvä asua ja yrittää. Monipuolinen kulttuurielämä, harrastusmahdollisuudet, geopark- ja muut luontokohteet luovat hyvän asumisen perusteet. Pori, Tampere, Seinäjoki kaikki 90-130 kilometrin etäisyydellä. Parkanon rautatieasemalle noin 40 kilometriä.
Kohde mahdollistaa ostaa kiinteistönä tai osakekauppana, jolloin kaupan kohteena Kiinteistö Oy Karvian Pankkitalon osakekanta.
Tervetuloa tutustumaan!
Molemmissa asunnoissa keittiö.
Lisäksi isommassa liiketilassa keittiö
Keittiön pintamateriaalit:
Lattia: muovi
Seinä: maalattu

Kankaanpään Laki ja Kiinteistö Oy
Keskuskatu 61
38700 KANKAANPÄÄ
Näytä puhelinnumero
+35825788991
Tuori Juhani
kiinteistönvälittäjä, kaupanvahvistaja
Näytä puhelinnumero
044-553 0215