Vuokrataan liiketilat - Helsinki
Katajanokanlaituri 4, Katajanokka, 00160 Helsinki #10786757
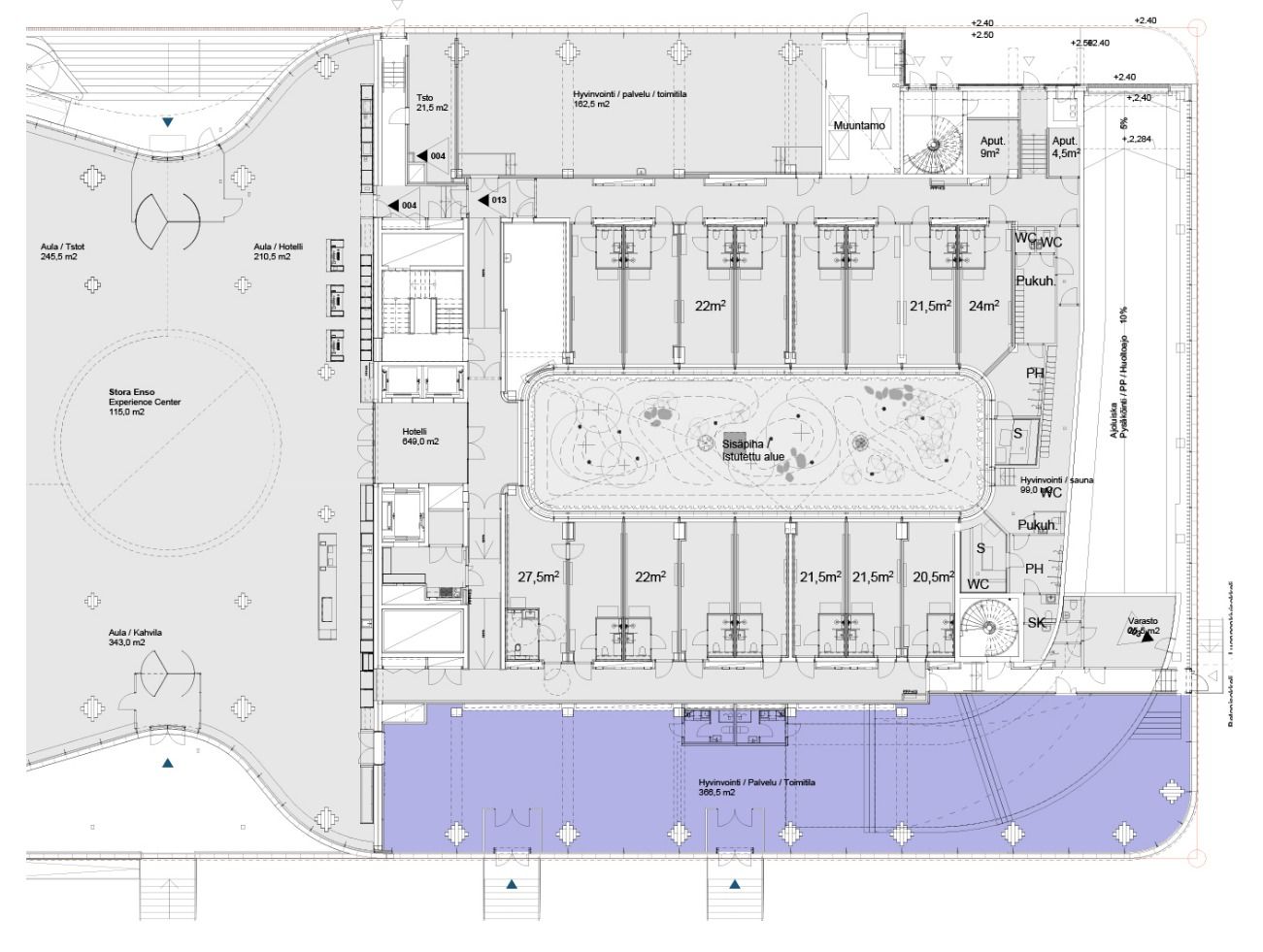
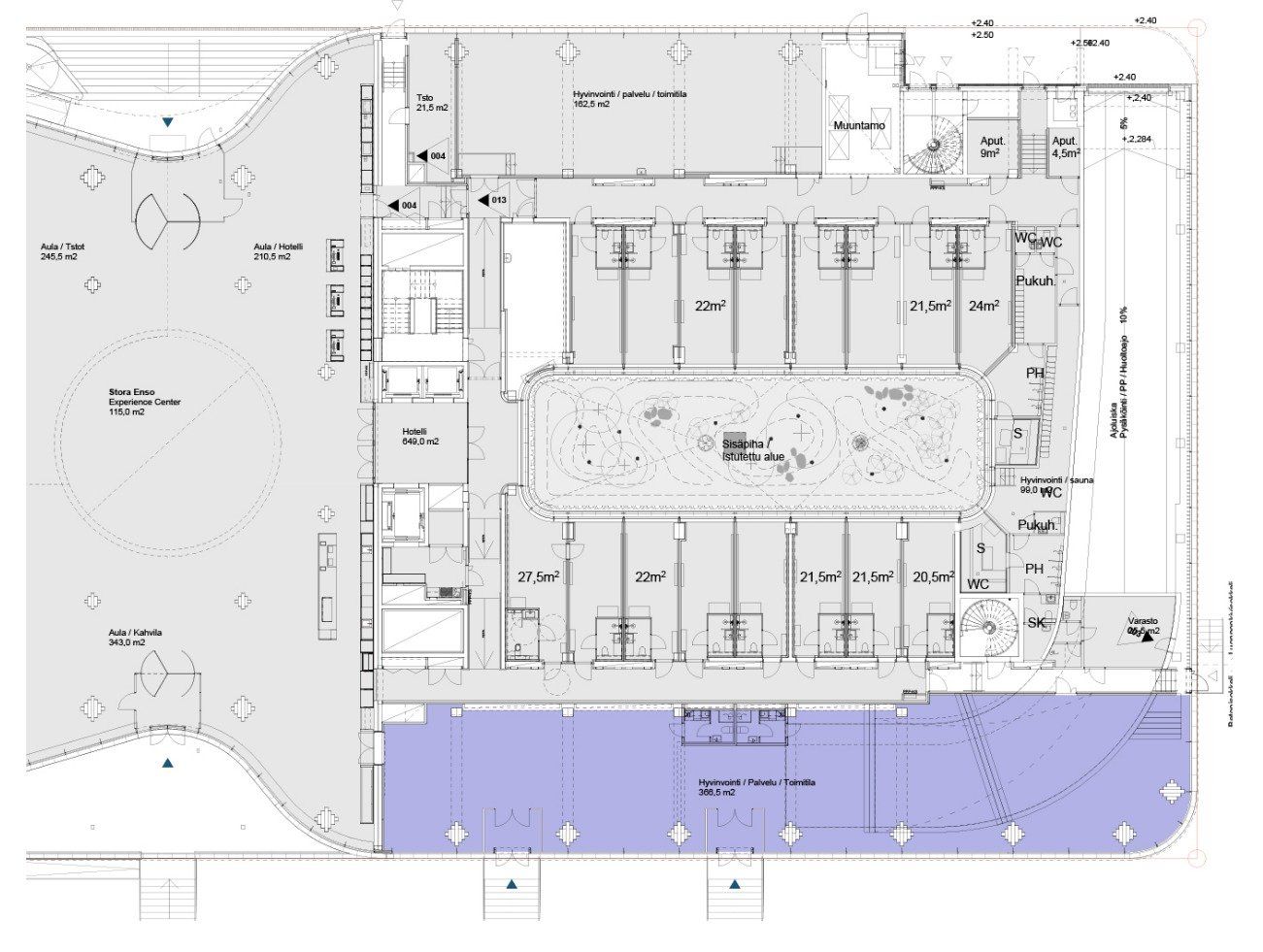
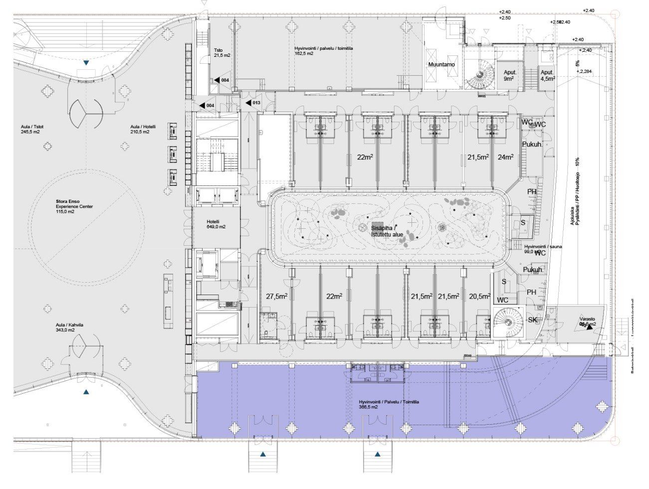
Avara ja valoisa liiketila upeissa merimaisemissa. Tähän avoimeen liiketilaan voidaan toteuttaa esimerkiksi näyttävä showroom tai jotain aivan toisenlaista liiketoimintaa. Tilassa on pienet takahuoneet wc-tiloineen. Tila ei sovellu ravintola- tai kahvilatoimijalle.
Katajanokan Laituri on kesällä 2024 valmistuva uudenaikainen toimistotalo, joka sijaitsee keskeisellä paikalla Helsingin Katajanokalla meren rannalla. Merkittävään kulttuuriympäristöön sijoittuvaan kiinteistöön tulee myös julkisia tiloja, jolloin se palvelee myös merellisestä sijainnista nauttivia kaupunkilaisia ja matkailijoita. Näkyvät puupinnat sekä rakennuksen persoonallinen muotoilu toimivat vahvoina erottautumistekijöinä alueen muista kiinteistöistä. Valmistuttuaan kiinteistölle tullaan hakemaan LEED Platinum -ympäristösertifikaattia.
Croisette on uusi ja innovatiivinen toimitilojen välitysyritys Suomessa. Meillä on vahva halu auttaa teitä löytämään paras toimitilaratkaisu mahdollisimman vaivattomasti.
Huomaathan, että kaikki vapaat ja vapautuvat tilat ovat kauttamme saatavilla. Osa tiloista on hiljaisessa markkinoinnissa, mutta ottamalla meihin yhteyttä saat nekin tietoosi.
Palvelumme on tilanhakijoille täysin maksutonta.
Hissi
Croisette Real Estate Partner
Erottajankatu 5 A 6, 00130 Helsinki
Näytä puhelinnumero
+358 400 585 857
Croisette Vuokraus
Näytä puhelinnumero
+358400585857
