Vuokrataan toimistotilat - Helsinki
Vääksyntie 2, Vallila, 00510 Helsinki #10785099
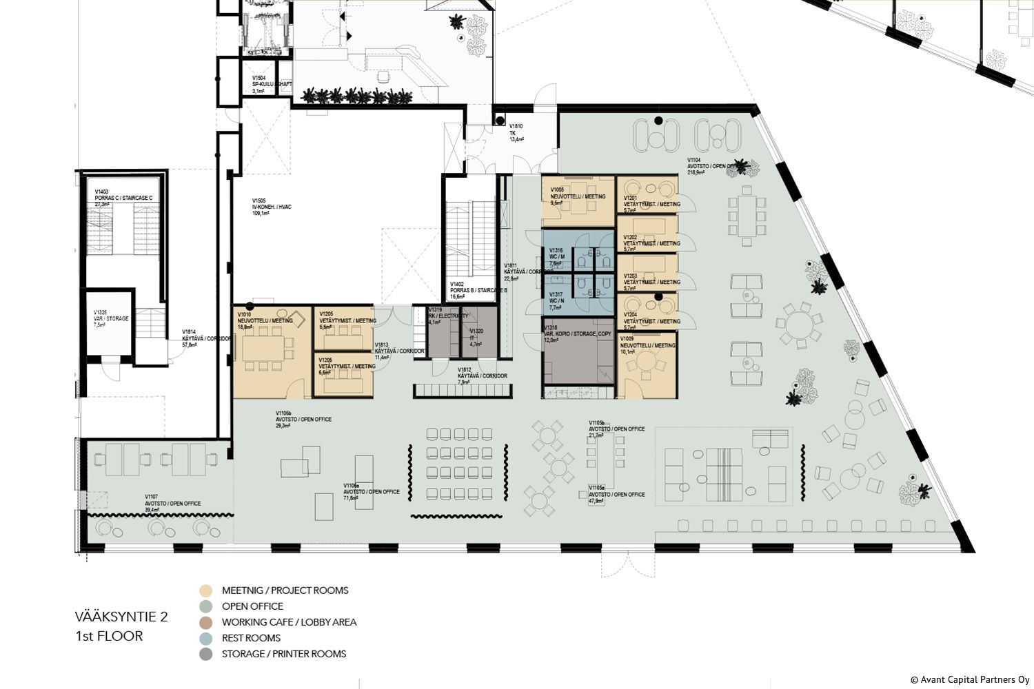
Vuokrattavana ensimmäisen kerroksen tilava toimistotila Vallilassa, OP:n pääkonttorina tunnetusta toimistokorttelista. Tässä valoisassa toimitilassa on muun muassa avotoimistotilaa, vetäytymis- ja kokoushuoneita sekä suuret ikkunat Teollisuuskadun ja Vääksyntien suuntiin.
Vallila-kortteli on moderni, vuosina 2015-2017 valmistunut JKMM Arkkitehtien suunnittelemana ja mm. LEED Gold -sertifikaatilla palkittu toimistorakennus. Arkkitehtonisesti upeat tilat ovat avaria ja valoisia, ja materiaalit parhaita mahdollisia. Kohde on 2024 alkaen hiilineutraali.
Palvelut rakennuksessa ovat erinomaiset, joista esimerkkeinä lounasravintoloita löytyy useita, aulapalvelu ja neuvotteluhuoneet ovat tasokkaita sekä myös kuntosali-, työterveys-, hieronta- ja kampaamopalvelut ovat työntekijöiden käytettävissä.
Kohde on helposti saavutettavissa niin omalla autolla, julkisella liikenteellä kuin pyörälläkin. Metrolle kävelyä vain muutama minuutti ja työmatkapyöräilyyn kannustavat väljät ja siistit hygieniatilat.
Avant Capital Partners
Eteläranta 8, 00130 Helsinki
Avant Capital vuokraus
Näytä puhelinnumero
040 759 8095
