Vuokrataan toimistotilat - Helsinki
Pohjoisesplanadi 35, Keskusta, 00100 Helsinki #10783677
Arvotalon toimistotila huippusijainnilla Pohjoisesplanadin ja Mikonkadun kulmassa. Tyylikäs kokonaisuus ylimmän kerroksen huoneistossa, joka juuri valmistunut peruskorjauksesta. Sisäänkäynti kauppakujan (Mummotunneli) portaasta. Ota yhteyttä ja sovi esittely, vuokrauspalvelumme on tilanhakijoille maksuton. Puh. 09 7745 100.
Osoite
Pohjoisesplanadi 35, 00100 Helsinki
Tilatyyppi
Toimistotilaa
224 m2
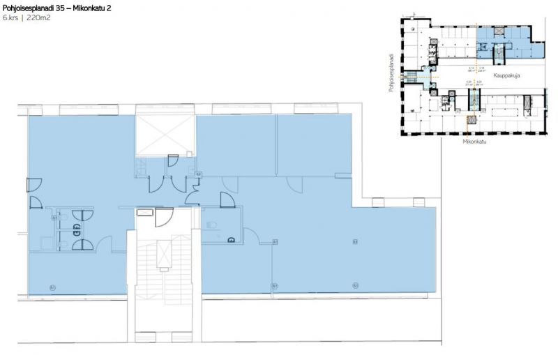
Pohjapiirros
Sijainti
Ydinkeskusta
Pysäköinti
Keskustan parkkihallit.
Kulkuyhteydet
Erinomaiset
Vapautuu
Heti
Kerros
6 / 6
Energiatehokkuusluokka
Ei lain edellyttämää energiatodistusta
Näkyvällä paikalla
Hissi
Liitetiedostot
Ota yhteyttä
Senaatin Notariaatti Oy LKV
Lämmittäjänkatu 4 A
FIN-00880 Helsinki
Tel:
Näytä puhelinnumero
+358 9 7745 100
Pyydä lisätietoa
