Vuokrataan toimistotilat - Helsinki
X Haaga, Eliel Saarisen tie 2, Haaga, 00400 Helsinki #10780062
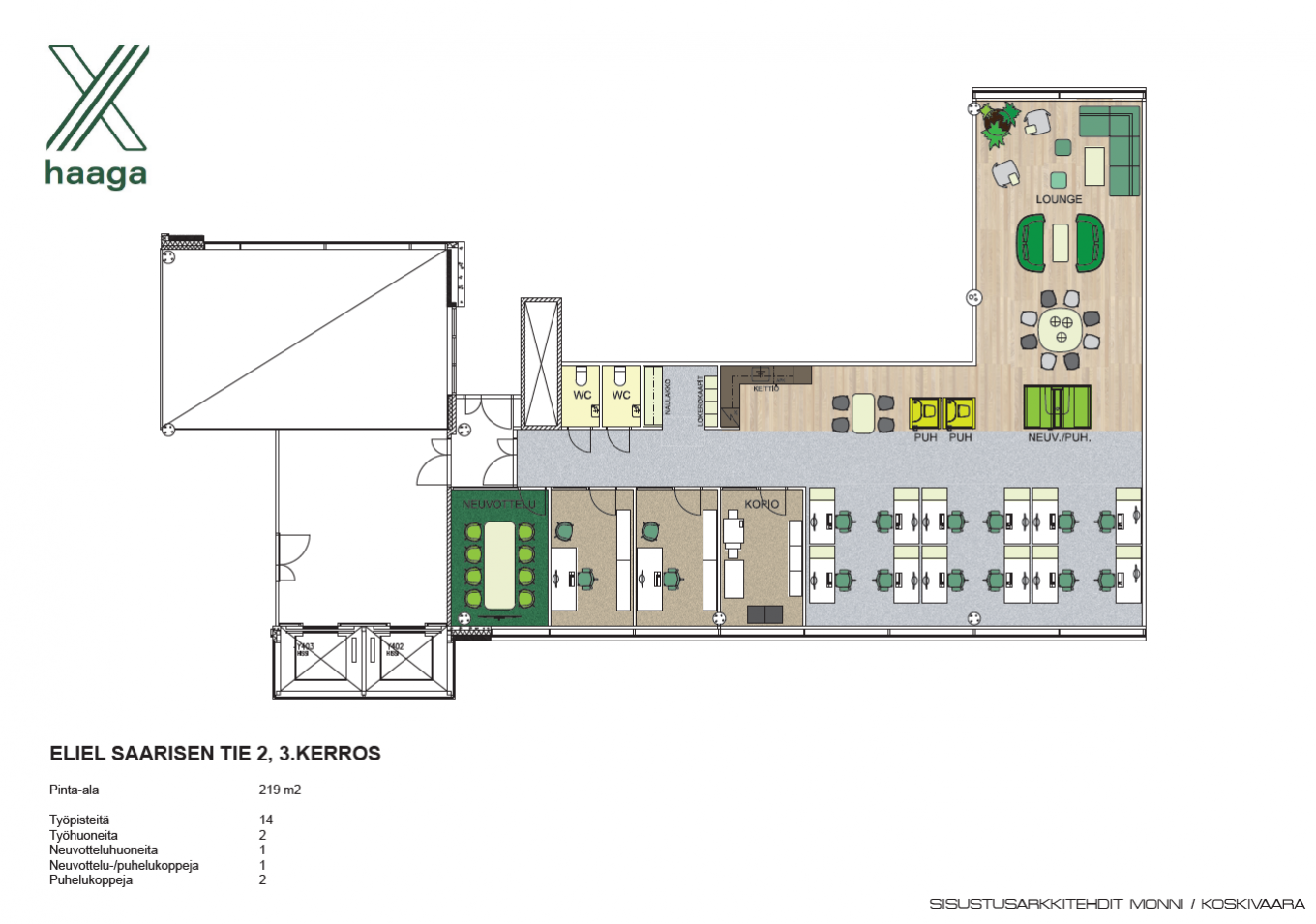
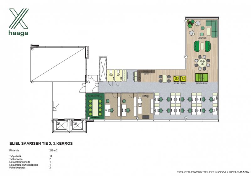
Avara ja valoisa 3. kerroksen 219 m² toimistotila modernista toimistotalosta, Pohjois-Haagasta.
Osoite
Eliel Saarisen tie 2, 00400 Helsinki
Tilatyyppi
Toimistotilaa
219 m2
Pohjapiirros
Kiinteistö
X Haaga on moderni toimistotalo Pohjois-Haagassa, Hämeenlinnanväylän varrella ja Keskuspuiston kainalossa.
Vapaana kiinteistön 3. kerroksessa valoisa toimitila, joka on muokattavissa tulevan vuokralaisen tarpeisiin sopivaksi.
Ilmoituksen kuvat ovat yleiskuvia kiinteistön eri tiloista.
X Haaga on loistava yrityksen kotipesä, josta koko pääkaupunkiseutu on helposti saavutettavissa autolla, bussilla tai junalla. Raide-Jokeri pikaraitiotien pysäkki on aivan X Haagan vieressä. Kiinteistö sijaitsee lyhyen matkan päässä Helsingin keskustasta ja 20 minuuttia lentoasemalta. Kiinteistön välittömässä läheisyydessä on hyvät palvelut: mm. päivittäistavarakauppa, hotelli ja monipuoliset liikuntamahdollisuudet.
Erinomainen sijainti Hämeenlinnanväylän varrella tuo X Haagalle päivittäin 40 000 ajoneuvossa matkustavan ihmisen huomion.
Kiinteistössä palvelee laadukas lounasravintola. Lisäksi talossa on vuokrattavia neuvottelutiloja ja saunaosasto sekä kuntosali vuokralaisten käyttöön.
Vapaana kiinteistön 3. kerroksessa valoisa toimitila, joka on muokattavissa tulevan vuokralaisen tarpeisiin sopivaksi.
Ilmoituksen kuvat ovat yleiskuvia kiinteistön eri tiloista.
X Haaga on loistava yrityksen kotipesä, josta koko pääkaupunkiseutu on helposti saavutettavissa autolla, bussilla tai junalla. Raide-Jokeri pikaraitiotien pysäkki on aivan X Haagan vieressä. Kiinteistö sijaitsee lyhyen matkan päässä Helsingin keskustasta ja 20 minuuttia lentoasemalta. Kiinteistön välittömässä läheisyydessä on hyvät palvelut: mm. päivittäistavarakauppa, hotelli ja monipuoliset liikuntamahdollisuudet.
Erinomainen sijainti Hämeenlinnanväylän varrella tuo X Haagalle päivittäin 40 000 ajoneuvossa matkustavan ihmisen huomion.
Kiinteistössä palvelee laadukas lounasravintola. Lisäksi talossa on vuokrattavia neuvottelutiloja ja saunaosasto sekä kuntosali vuokralaisten käyttöön.
Pysäköinti
Vuokrattavia autopaikkoja pihalla tai katoksen alla. Parkkipaikkoja lisäksi kadunvarressa.
Kulkuyhteydet
Bussipysäkki 100 m, Juna-asema 1,2 km, Lentoasema 10,5 km
Vapautuu
Heti
Kerros
3
Energiatehokkuusluokka
Ei lain edellyttämää energiatodistusta
Näkyvällä paikalla
Hissi
Ota yhteyttä
ScanReal Oy LKV
Opus Business Park
Hitsaajankatu 24
00810 Helsinki
info@scanreal.fi
Puh:
Näytä puhelinnumero
020 730 8830
Sopivat toimitilat yhdellä otolla!
Kartoitamme toimitilatarpeesi ja etsimme yrityksellesi parhaiten sopivat vapaat toimitilat. Koska vuokranantajat maksavat palvelumme, on tämä yrityksellesi veloituksetonta.
OTA YHTEYTTÄ - SOVI NÄYTTÖ!
Kaikki kohteemme eivät ole netissä, kerro tilatarpeesi niin kartoitamme vaihtoehdot.
Palvelumme on tilanhakijalle ilmainen
Pyydä lisätietoa
