Vuokrataan - Lahti
Askonkatu 10, 15100 Lahti #10780029
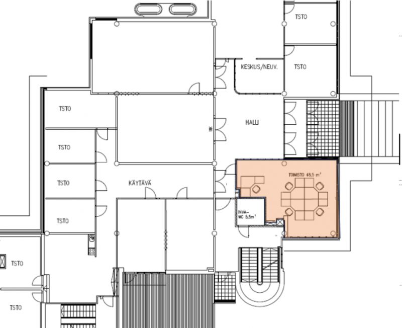
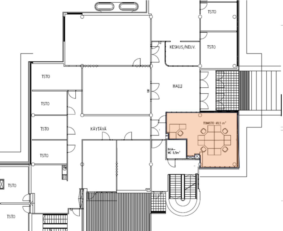
Vuokrattavana 48 m2 toimitila Askonalueelta Matkakeskuksen läheltä. Toimitila sijaitsee 1.kerroksessa ja soveltuu esim valokuvaukseen, valmennustilaksi ( yksityinen tai pienryhmä) tai toimistoksi. Yhteiskäyttöiset sosiaalitilat.
Kysy lisää sp: heli.reinberg@rhg.fi
Osoite
Askonkatu 10, 15100 Lahti
Vapautuu
Kysy
Huoneiden lukumäärä
1
Energiatehokkuusluokka
Ei lain edellyttämää energiatodistusta
Ota yhteyttä
RHG Real Estate
Hämeenkatu 2 B20, 20500 Turku
Näytä puhelinnumero
020 734 4020
Heli Reinberg
Näytä puhelinnumero
040 647 4900
Pyydä lisätietoa
