Vuokrataan toimistotilat, liiketilat, varastotilat - Oulu
Hiltusenkaarre 21, Rusko, 90620 Oulu #10780006
Uudiskohde Ruskossa
Osoite
Hiltusenkaarre 21, 90620 Oulu
Tilatyyppi
Toimistotilaa
297 m2
Liiketilaa
279 m2
Varastotilaa
624 m2
Yhteensä
1200 m2
Kiinteistö
Uudiskohde Ruskossa
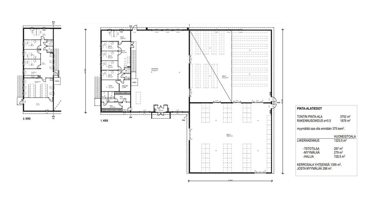
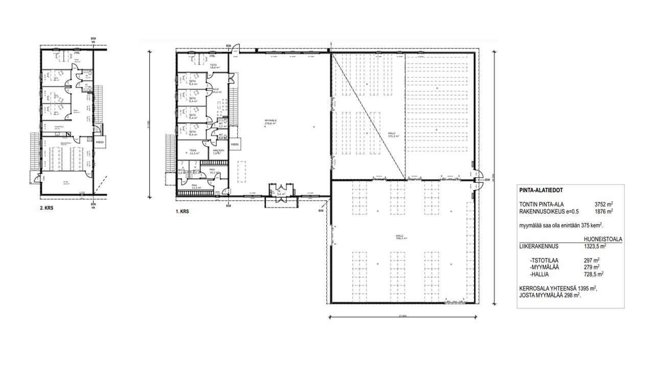
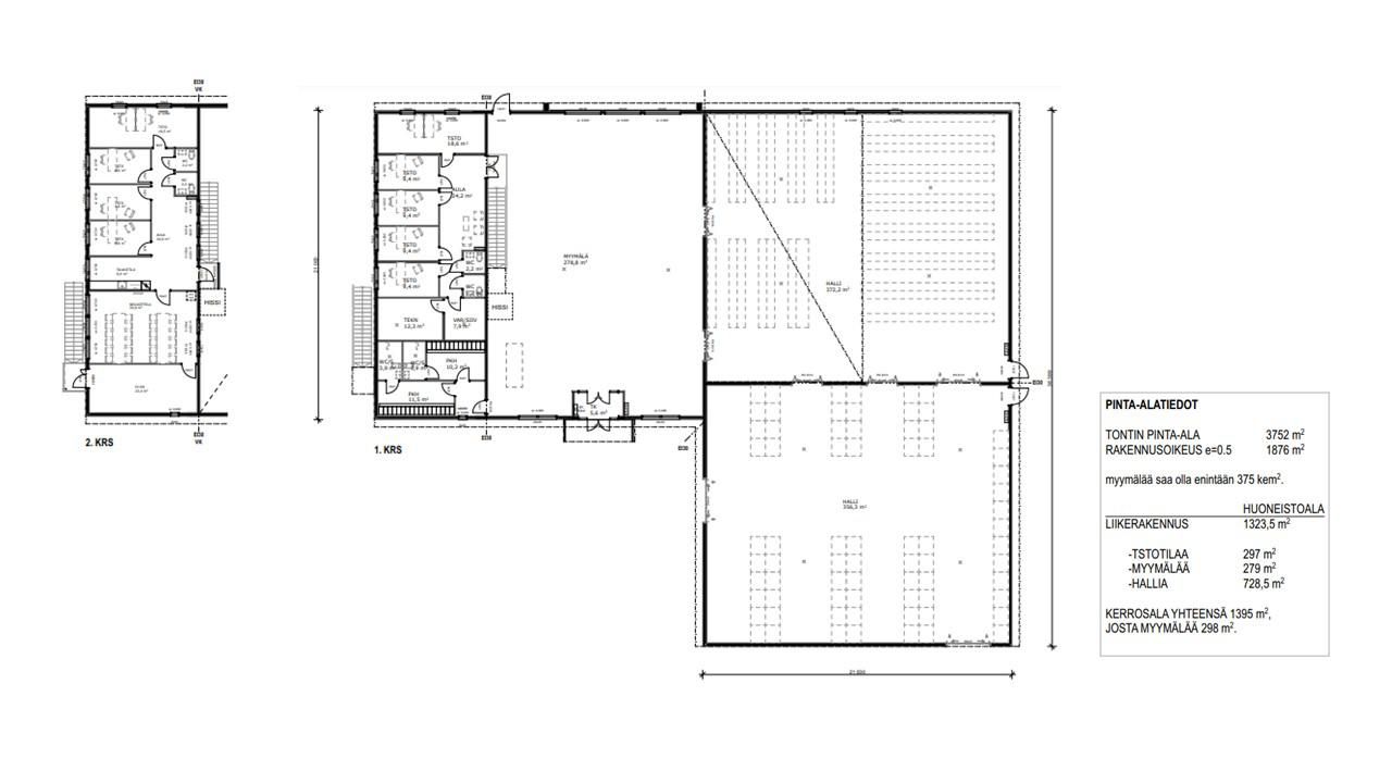
Nyt tarjolla laadukkaat uudet yritystoimintaa palvelevat liike-, varasto- ja toimistotilat erinomaisella sijainnilla.
Tontin pinta-ala on 3752 m2. Rakennusoikeutta tontilla on yhteensä 1876 m2 (e= 0,5).
Toimiva ratkaisu tontille on esimerkiksi noin 1200 m2:n L-muotoinen liikerakennus. Tällä ratkaisulla saadaan iso seinäpinta-alanäkyvyys vilkkaalle Ruskontielle ja hyvät liikenne- ja parkkialueet sisäpihan puolelle.
Lämmitysmuotona on kaukolämpö ja lattialämmitys.
Vuokrahinnat: hallit alkaen 10 €/m2 (+alv), toimistot ja sosiaalitilat alkaen 14 €/m2 (+alv). Hoitovastike arvio 2,5 €/m2 (+alv).
Myyntihinnat: hallit alk. 1150 €/m2 (+alv), toimistot ja sosiaalitilat alk. 1300 €/m2 (+alv).
Rakentamisaika on noin 10 kuukautta.
Sijainti
Hiltusenkaarre 21 sijaitsee keskeisellä paikalla Oulun suurinta ja merkittävintä teollisuuden, alihankintatoimintojen ja pienteollisuuden keskittymää.
Hiltusenkaarteelta on erinomaiset ja nopeat kulkuyhteydet moneen suuntaan ja kohteesta pääsee kätevästi niin Kuusamontielle, Nelostielle kuin Oulun keskustaankin.
Ajoaika Oulun keskustaan 10 min.
Nyt tarjolla laadukkaat uudet yritystoimintaa palvelevat liike-, varasto- ja toimistotilat erinomaisella sijainnilla.
Tontin pinta-ala on 3752 m2. Rakennusoikeutta tontilla on yhteensä 1876 m2 (e= 0,5).
Toimiva ratkaisu tontille on esimerkiksi noin 1200 m2:n L-muotoinen liikerakennus. Tällä ratkaisulla saadaan iso seinäpinta-alanäkyvyys vilkkaalle Ruskontielle ja hyvät liikenne- ja parkkialueet sisäpihan puolelle.
Lämmitysmuotona on kaukolämpö ja lattialämmitys.
Vuokrahinnat: hallit alkaen 10 €/m2 (+alv), toimistot ja sosiaalitilat alkaen 14 €/m2 (+alv). Hoitovastike arvio 2,5 €/m2 (+alv).
Myyntihinnat: hallit alk. 1150 €/m2 (+alv), toimistot ja sosiaalitilat alk. 1300 €/m2 (+alv).
Rakentamisaika on noin 10 kuukautta.
Sijainti
Hiltusenkaarre 21 sijaitsee keskeisellä paikalla Oulun suurinta ja merkittävintä teollisuuden, alihankintatoimintojen ja pienteollisuuden keskittymää.
Hiltusenkaarteelta on erinomaiset ja nopeat kulkuyhteydet moneen suuntaan ja kohteesta pääsee kätevästi niin Kuusamontielle, Nelostielle kuin Oulun keskustaankin.
Ajoaika Oulun keskustaan 10 min.
Vapautuu
Kysy
Ota yhteyttä
Logistila Oy
Kiilakiventie 1, 90250 OULU
Sami Karppinen
Näytä puhelinnumero
+358401994722
Pyydä lisätietoa
