Vuokrataan toimistotilat - Helsinki
Salmisaarenaukio 1, Salmisaari, 00180 Helsinki #10779716
Muuttovalmis, noin 658 m² toimisto upealta sijainnilta meren ääreltä Salmisaaresta.
Osoite
Salmisaarenaukio 1, 00180 Helsinki
Tilatyyppi
Toimistotilaa
658 m2
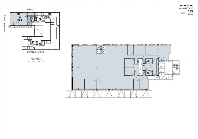
Pohjapiirros
Kiinteistö
Vuonna 2007 valmistunut Salmisaarenaukio 1 rakennettiin alun perin korkeatasoiseksi pääkonttorikiinteistöksi.
Neljännen kerroksen tyylikäs 658 m² toimisto.
Kiinteistön on suunnitellut arkkitehtitoimisto Helin & Co Architects.
• Kiinteistössä on toimitiloja yhteensä noin 14.500 m².
• Salmisaarenaukio tarjoaa tyylikkäät ja muuntojoustavat toimitilat, jotka remontoidaan asiakkaiden tarpeiden ja toiveiden mukaisesti.
• Kiinteistön lattiasta kattoon ulottuvista ikkunoista avautuu mahtava merimaisema kohti Lauttasaarta.
• Tarvittavat pysäköintipaikat löytyvät suoran hissiyhteyden päästä, kiinteistön välittömässä yhteydessä sijaitsevasta lämpimästä pysäköintihallista.
• Kiinteistö on sertifioitu kansainvälisellä Breeam In Use -ympäristösertifikaatilla
Talossa on runsaasti liiketoimintaa helpottavia palveluita mm. lämmin autohalli, neuvottelutiloja, aulapalvelu, lounasravintola, lukittavat säilytystilat polkupyörille ja suihku- ja sosiaalitilat.
Salmisaari ja Ruoholahti ovat alunperin teollisuus ja varastoaluetta, joka on muuttunut 1990- ja 2000-luvuilla tärkeäksi yrityselämän keskittymäksi, jossa työskentelee 14.000 ihmistä.
Täällä kohtaavat historiallinen teollinen ympäristö sekä huippumodernit pääkonttoritason toimistot. Kyseessä on Helsingin tärkein pääkonttorikeskittymä keskustan ohella. Alueella pääkonttoriansa pitävät mm. Varma, Ilmarinen, Wärtsilä,
F-Secure, Cargotec, Outokumpu, Altia, Accenture, Supercell, Kemira ja Deloitte.
Ilmoituksen kuvat ovat yleiskuvia kiinteistöstä.
Neljännen kerroksen tyylikäs 658 m² toimisto.
Kiinteistön on suunnitellut arkkitehtitoimisto Helin & Co Architects.
• Kiinteistössä on toimitiloja yhteensä noin 14.500 m².
• Salmisaarenaukio tarjoaa tyylikkäät ja muuntojoustavat toimitilat, jotka remontoidaan asiakkaiden tarpeiden ja toiveiden mukaisesti.
• Kiinteistön lattiasta kattoon ulottuvista ikkunoista avautuu mahtava merimaisema kohti Lauttasaarta.
• Tarvittavat pysäköintipaikat löytyvät suoran hissiyhteyden päästä, kiinteistön välittömässä yhteydessä sijaitsevasta lämpimästä pysäköintihallista.
• Kiinteistö on sertifioitu kansainvälisellä Breeam In Use -ympäristösertifikaatilla
Talossa on runsaasti liiketoimintaa helpottavia palveluita mm. lämmin autohalli, neuvottelutiloja, aulapalvelu, lounasravintola, lukittavat säilytystilat polkupyörille ja suihku- ja sosiaalitilat.
Salmisaari ja Ruoholahti ovat alunperin teollisuus ja varastoaluetta, joka on muuttunut 1990- ja 2000-luvuilla tärkeäksi yrityselämän keskittymäksi, jossa työskentelee 14.000 ihmistä.
Täällä kohtaavat historiallinen teollinen ympäristö sekä huippumodernit pääkonttoritason toimistot. Kyseessä on Helsingin tärkein pääkonttorikeskittymä keskustan ohella. Alueella pääkonttoriansa pitävät mm. Varma, Ilmarinen, Wärtsilä,
F-Secure, Cargotec, Outokumpu, Altia, Accenture, Supercell, Kemira ja Deloitte.
Ilmoituksen kuvat ovat yleiskuvia kiinteistöstä.
Vapautuu
Heti
Rakennusvuosi
2007
Kerros
4 / 8
Energiatehokkuusluokka
Ei lain edellyttämää energiatodistusta
Näkyvällä paikalla
Hissi
Ota yhteyttä
ScanReal Oy LKV
Opus Business Park
Hitsaajankatu 24
00810 Helsinki
info@scanreal.fi
Puh:
Näytä puhelinnumero
020 730 8830
Sopivat toimitilat yhdellä otolla!
Kartoitamme toimitilatarpeesi ja etsimme yrityksellesi parhaiten sopivat vapaat toimitilat. Koska vuokranantajat maksavat palvelumme, on tämä yrityksellesi veloituksetonta.
OTA YHTEYTTÄ - SOVI NÄYTTÖ!
Kaikki kohteemme eivät ole netissä, kerro tilatarpeesi niin kartoitamme vaihtoehdot.
Palvelumme on tilanhakijalle ilmainen
Pyydä lisätietoa
