Vuokrataan toimistotilat - Helsinki
Valimotie 10 2.krs 1305 m2 toimistotila, Valimotie 10, Pitäjänmäki, 00380 Helsinki #10779334
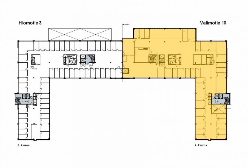
Monipuolinen toimistotila Sporttitalon toisessa kerroksessa. Tilassa oma keittiö, useampi wc-tila ja sekä neuvottelu- että toimistohuoneita.
Suunnittelemme mahdolliset remontit ja muutostyöt aina asiakaskohtaisesti vuokraneuvottelujen yhteydessä.
Valimo Centerin kaikkia vuokralaisia palvelee Valimotie 13a:ssa sijaitseva aulapalvelu, josta hoituu myös postien vastaanotto, edelleenlähetys sekä pakettipalvelut. Samasta rakennuksesta löydät talon oman – vuokralaisille suunnatun kuntosalin, jonne pääsee kulkuavaimella klo 5-21. Katutasossa runsaan lounaan arkipäivisin tarjoilee Ravintola Factory. Mikäli tarvetta on kokoustiloille, löytyy niitä joustavasti vuokrattavana aina 2-20:lle henkilölle.
Katso videoesittely Valimo Centeristä: https://youtu.be/W4-0X0CgEa0
Tästä kohteesta voit olla yhteydessä pääkaupunkiseudun vuokrauspäällikköömme Artoon.
Puh. 044 906 2226 / Arto Haavisto
- Valmistunut vuonna 1994, peruskorjattu 2017
- Pinta-ala: 13 103 m²
- Kerrosten lukumäärä: 6
- Lastauslaituri ja tavarahissi
- 3 henkilöhissiä
- Koneellinen jäähdytetty ilmanvaihto
- Turvallista kulunvalvottua tilaa
- Neuvottelutilat
Jaettavissa
Hissi
Lastauslaituri
Nurmi-Yhtiöt Oy
Nurmi Kiinteistöt
Jousitie 7
20760 Piispanristi
puh.
Näytä puhelinnumero
044 906 2226
/ Arto Haavisto (pk-seutu)
puh.
Näytä puhelinnumero
040 624 0344
/ Ilias Niemi (Varsinais-Suomi)
