Vuokrataan toimistotilat - Helsinki
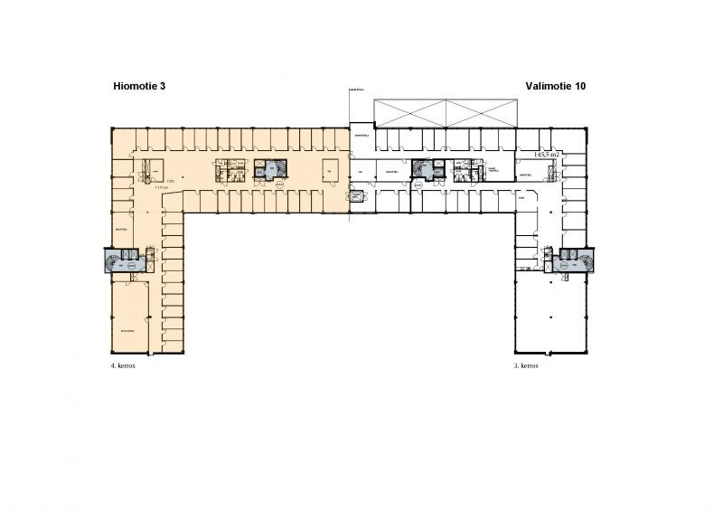
Hiomotie 3 4.krs 1171 m², Hiomotie 3, Pitäjänmäki, 00380 Helsinki #10779331
Iso toimistotila 1171 m² rakennuksen neljännessä kerroksessa.
Toteutamme tilaan tarvittaessa remontit ja tilamuutokset vuokralaisen toiveiden mukaisesti. Vuokrattavissa myös koko kerros, joka jatkuu Valimotie 10 puolelle (2. ja 3.) 2978 m2 ja 2341 m2.
Vuokralaisia palvelee Valimotie 13 A:ssa sijaitseva aulapalvelu, josta hoituu myös postien vastaanotto, edelleenlähetys sekä pakettipalvelut. Rakennuksesta löytyy myös pieni kuntosali sekä päivittäin lämpeävä sauna, josta aloitat työpäiväsi reippaasti. Katutasossa runsaan lounaan arkipäivisin tarjoilee Ravintola Factory.
Katso videoesittely Valimo Centeristä: https://youtu.be/W4-0X0CgEa0
Tästä kohteesta voit olla yhteydessä pääkaupunkiseudun vuokrauspäällikköömme Artoon.
Puh. 044 906 2226 / Arto Haavisto
- Valmistunut vuonna 1994, peruskorjattu 2017
- Pinta-ala: 10 911 m², kerrospinta-ala 1 172 m², jaettavissa 300 m² / 800 m²
- Kerrosten lukumäärä: 6
- Lastauslaituri (Valimotie 10 kanssa yhteinen)
- 3 henkilöhissiä
- Koneellinen jäähdytetty ilmanvaihto
- Turvallista kulunvalvottua tilaa
- Autopaikat: 270 kpl autohallissa, katoksessa ja pihapaikoilla (yhdessä Valimotie 10:n kanssa)
Jaettavissa
Hissi
Lastauslaituri
Nurmi-Yhtiöt Oy
Nurmi Kiinteistöt
Jousitie 7
20760 Piispanristi
puh.
Näytä puhelinnumero
044 906 2226
/ Arto Haavisto (pk-seutu)
puh.
Näytä puhelinnumero
040 624 0344
/ Ilias Niemi (Varsinais-Suomi)
