Vuokrataan toimistotilat - Espoo
Linnoitustie 3, Leppävaara, 02600 Espoo #10777815
Nykyaikaista ja kaikki talotekniset vaatimukset täyttävää muuntojoustavaa avo-/kombitilaa SÄTERI BUSINESS PARKISSA. Kiinteistössä on laajat Business Park palvelut kuten aulapalvelu, ravintola, auditorio, edustus- ja neuvottelutilat sekä autohalli. Palvelumme on tilanhakijoille ilmainen.
SOITA ja SOVI ESITTELY!
Osoite
Linnoitustie 3, 02600 Espoo
Tilatyyppi
Toimistotilaa
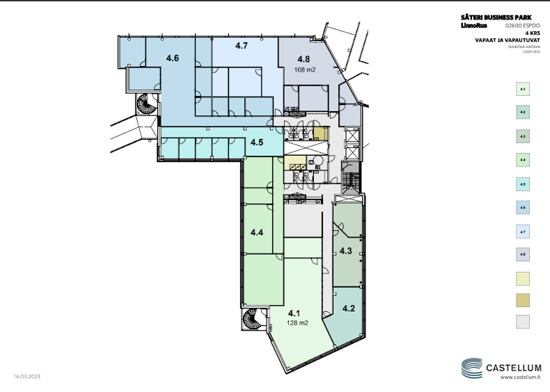
128 m2
Pohjapiirros
Kiinteistö
Quartetto -Intermezzo
Ympäristö
Kansainvälinen toimistokeskittynä.
Pysäköinti
Autohallissa ja pihalla.
Palvelut
Kaikki kauppakeskus Sellon palvelut.
Kulkuyhteydet
Juna, Kehä I
Vapautuu
Heti
Rakennusvuosi
2012
Kerros
4 / 6
Energiatehokkuusluokka
Ei lain edellyttämää energiatodistusta
Näkyvällä paikalla
Hissi
Liitetiedostot
Ota yhteyttä
Senaatin Notariaatti Oy LKV
Lämmittäjänkatu 4 A
FIN-00880 Helsinki
Tel:
Näytä puhelinnumero
+358 9 7745 100
Pyydä lisätietoa
