Vuokrataan toimistotilat - Oulu
Konekuja 8, Ruskonselkä, 90630 Oulu #10777580
Osoite
Konekuja 8, 90630 Oulu
Tilatyyppi
Toimistotilaa
556 m2
Muuta
Vuorattavat tilat sijaitsevat Konekuja 8, 90630 Oulu, siistikuntoisessa vuonna 2000 valmistuneessa rakennuksessa, jota on ylläpidetty hyvässä kunnossa.
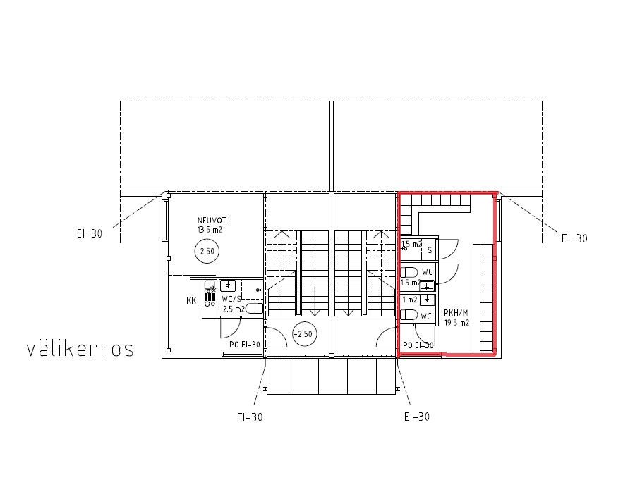
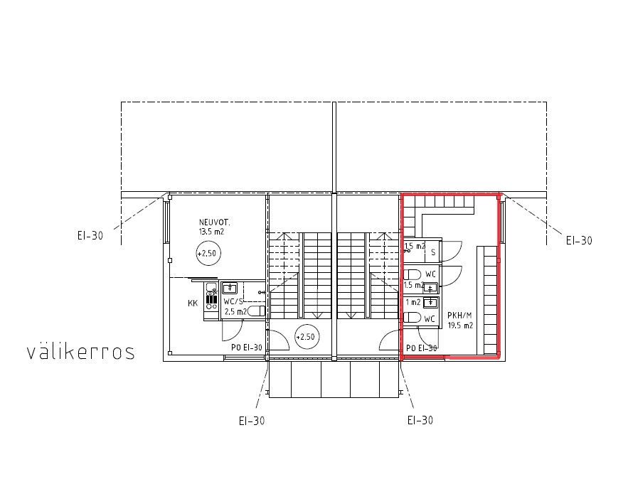
Toimistotilat ovat rakennuksen toisessa kerroksessa ja nosto-ovellinen tuotantotila katutasossa.
Vapautuvat tilat:
Toimistotila 2. krs, yht. n. 556 m2.
Tila on myös jaettavissa useammalle käyttäjälle 237 jyvm2/ 272,90 jyvm2/ 44,2 jyvm2.
Jaettuna useammalle käyttäjälle tiloissa on yhteiskäyttöinen keittiö, wc-tilat, aula- ja porrastilat. Jyvitykset tulevat näistä yhteisistä aulatiloista sekä sosiaali- ja pukuhuonetiloista sekä porrasaulasta.
- Useita huoneita sekä avotilaa
- 2 wc:tä kerroksen aulassa, välikerroksessa sosiaalitilat suihkuilla.
Tilat vapautuvat sopimuksen mukaan.
Vuokra:
Toimistotila 12,00 euroa/m2/kk + alv.
Autopaikat 20,00 euroa/m2/kk + alv.
Pistokkeelliset autopaikat asfaltoidulla piha-alueella.
Vuokralainen vastaa käyttösähköstä neliöperusteisesti mittauksen mukaan, käytössään olevien tilojensa siivouksesta kustannuksellaan ja toimittaa toimistojätteensä kiinteistön jätepisteeseen. Erikoisjätteestä ja liiketoimintaansa liittyvästä jätteestä, jota ei voi toimittaa jätepisteeseen vastaa vuokralainen kustannuksellaan. Tuotantotilojen osalta vuokralainen vastaa tuotanto- ja varastointitoimintaansa liittyvästä jätteestä kustannuksellaan.
Vuokra sidotaan elinkustannusindeksiin, korotus/tarkistus kerran vuodessa. Minimikorotus 3,0 % / vuosi.
Vakuus: 3 kk:n arvonlisäverollista vuokraa vastaava määrä
Pyydä lisätietoja näistä kohteita.
Toimistotilat ovat rakennuksen toisessa kerroksessa ja nosto-ovellinen tuotantotila katutasossa.
Vapautuvat tilat:
Toimistotila 2. krs, yht. n. 556 m2.
Tila on myös jaettavissa useammalle käyttäjälle 237 jyvm2/ 272,90 jyvm2/ 44,2 jyvm2.
Jaettuna useammalle käyttäjälle tiloissa on yhteiskäyttöinen keittiö, wc-tilat, aula- ja porrastilat. Jyvitykset tulevat näistä yhteisistä aulatiloista sekä sosiaali- ja pukuhuonetiloista sekä porrasaulasta.
- Useita huoneita sekä avotilaa
- 2 wc:tä kerroksen aulassa, välikerroksessa sosiaalitilat suihkuilla.
Tilat vapautuvat sopimuksen mukaan.
Vuokra:
Toimistotila 12,00 euroa/m2/kk + alv.
Autopaikat 20,00 euroa/m2/kk + alv.
Pistokkeelliset autopaikat asfaltoidulla piha-alueella.
Vuokralainen vastaa käyttösähköstä neliöperusteisesti mittauksen mukaan, käytössään olevien tilojensa siivouksesta kustannuksellaan ja toimittaa toimistojätteensä kiinteistön jätepisteeseen. Erikoisjätteestä ja liiketoimintaansa liittyvästä jätteestä, jota ei voi toimittaa jätepisteeseen vastaa vuokralainen kustannuksellaan. Tuotantotilojen osalta vuokralainen vastaa tuotanto- ja varastointitoimintaansa liittyvästä jätteestä kustannuksellaan.
Vuokra sidotaan elinkustannusindeksiin, korotus/tarkistus kerran vuodessa. Minimikorotus 3,0 % / vuosi.
Vakuus: 3 kk:n arvonlisäverollista vuokraa vastaava määrä
Pyydä lisätietoja näistä kohteita.
Vapautuu
Kysy
Kerros
2
Ota yhteyttä
Catella Property Oy
Kirkkokatu 6, 5. krs, 90100 OULU
Näytä puhelinnumero
010 5220 100
Pekka Laurila-Harju
Näytä puhelinnumero
010 5220 603
Pyydä lisätietoa
