Vuokrataan toimistotilat, tuotantotilat, varastotilat, työtilat, autotalli/-hallitilat, muut tilat - Loviisa
Troolitie 8 c, 07910 Loviisa #10777183
Vuokrataan hyväkuntoinen elintarviketuotantokiinteistö! Kuukausivuokra: 5,9 €/kk + alv
Osoite
Troolitie 8 c, 07910 Loviisa
Tilatyyppi
Toimistotilaa
80 m2
Tuotantotilaa
325 m2
Varastotilaa
100 m2
Työtilaa
440 m2
Autotalli/-hallitilaa
325 m2
Muuta tilaa
40 m2
Yhteensä
500 m2
Virtuaaliesittely
Vuokra
5,90 €/m²/kk + alv
Muuta
Valkon kylässä lähellä Loviisaa vuokrattavana hyväkuntoinen elintarviketuotantorakennus isoine kylmiöineen ja pakkashuoneineen sekä -tunneleineen. Rakennuksessa on lisäksi toimisto- ja sosiaalitilat.
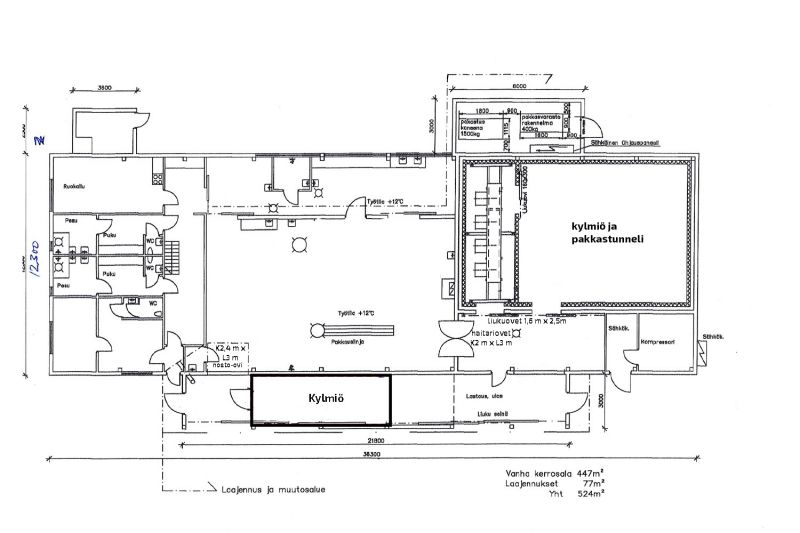
Rakennuksen yhteispinta-ala on noin 500 m². Tuotantotilojen pinta-ala on noin 325 m² ja tilan vapaakorkeus on noin 3,9 metriä. Tilassa pakastamon pinta-ala on 100 m². Tuotantotilan varusteluun kuuluu nosto-ovia, lattiakaivoja ja vesipisteitä. Rakennuksessa on lisäksi toimisto- ja sosiaalitilaa noin 80 m² ja 40 m² tekninen tila. Rakennuksen toisella sivulla on noin 60 m² katostilaa ja katoksen sisällä on lisäkylmiö.
Rakennuksessa edullinen lämmitys ilmavesilämpöpumpulla (plussalla pito maksaa noin 2000 € vuodessa).
Iso piha-alue, jossa on hyvin pysäköintipaikkoja ja liikkumatilaa raskaalle kalustolle.
Rakennus sijaitsee Valkon satama-alueella merenrannalla. Ollut kalanjalostuskäytössä, mutta soveltuu lähes mihin tahansa elintarviketuotantoon. Todella siistit ja hyväkuntoiset tilat!
Kiinnostuitko? Pyydä lisätietoja!
Kohdetiedot
Sijainti
Katuosoite: Troolitie 8 C, 07910 Valko
Kaupunginosa: Valko
Ympäristö: Teollisuusalue ja satama
Rakennus/huoneisto
Pinta-ala: Noin 440 m² + 60 m² katos
Rakennustyyppi: Elintarvikekiinteistö (Muut maa-, metsä- ja kalatalouden rakennukset)
Rakennusvuosi: 1991
Tilaselitelmä: Elintarviketuotantotila ja pakkastilat sekä toimisto- ja sosiaalitilat
Energiatodistus: Ei lain edellyttämää todistusta
Kunto, varusteet ja palvelut: Hyvä kunto, hyväksyttyä elintarviketuotantotilaa, kylmävarastoa, toimisto- ja sosiaalitilaa.
Lämmitys: Ilmavesilämpöpumpulla
Vapautuu: Heti vapaa
Vuokrahinta ja kulut
Kuukausivuokra: 5,9 €/kk + alv
Sähkömaksu: Mittauksen mukaan (vuokralainen tekee oman sähkösopimuksen)
Vesimaksu: Mittauksen mukaan
Lämmitys: Vuokralainen vastaa kuluista
Auraus ja jätehuolto: Vuokralainen vastaa itse järjestelyistä ja kuluista
Muut ehdot: Vakuus 3 kk:n vuokraa vastaava summa, minimivuokrasopimusaika 12kk määräaikaisena ja sen jälkeen jatkuu toistaiseksi voimassa olevana 3kk irtisanomisajalla, luottotietojen on oltava kunnossa
Rakennuksen yhteispinta-ala on noin 500 m². Tuotantotilojen pinta-ala on noin 325 m² ja tilan vapaakorkeus on noin 3,9 metriä. Tilassa pakastamon pinta-ala on 100 m². Tuotantotilan varusteluun kuuluu nosto-ovia, lattiakaivoja ja vesipisteitä. Rakennuksessa on lisäksi toimisto- ja sosiaalitilaa noin 80 m² ja 40 m² tekninen tila. Rakennuksen toisella sivulla on noin 60 m² katostilaa ja katoksen sisällä on lisäkylmiö.
Rakennuksessa edullinen lämmitys ilmavesilämpöpumpulla (plussalla pito maksaa noin 2000 € vuodessa).
Iso piha-alue, jossa on hyvin pysäköintipaikkoja ja liikkumatilaa raskaalle kalustolle.
Rakennus sijaitsee Valkon satama-alueella merenrannalla. Ollut kalanjalostuskäytössä, mutta soveltuu lähes mihin tahansa elintarviketuotantoon. Todella siistit ja hyväkuntoiset tilat!
Kiinnostuitko? Pyydä lisätietoja!
Kohdetiedot
Sijainti
Katuosoite: Troolitie 8 C, 07910 Valko
Kaupunginosa: Valko
Ympäristö: Teollisuusalue ja satama
Rakennus/huoneisto
Pinta-ala: Noin 440 m² + 60 m² katos
Rakennustyyppi: Elintarvikekiinteistö (Muut maa-, metsä- ja kalatalouden rakennukset)
Rakennusvuosi: 1991
Tilaselitelmä: Elintarviketuotantotila ja pakkastilat sekä toimisto- ja sosiaalitilat
Energiatodistus: Ei lain edellyttämää todistusta
Kunto, varusteet ja palvelut: Hyvä kunto, hyväksyttyä elintarviketuotantotilaa, kylmävarastoa, toimisto- ja sosiaalitilaa.
Lämmitys: Ilmavesilämpöpumpulla
Vapautuu: Heti vapaa
Vuokrahinta ja kulut
Kuukausivuokra: 5,9 €/kk + alv
Sähkömaksu: Mittauksen mukaan (vuokralainen tekee oman sähkösopimuksen)
Vesimaksu: Mittauksen mukaan
Lämmitys: Vuokralainen vastaa kuluista
Auraus ja jätehuolto: Vuokralainen vastaa itse järjestelyistä ja kuluista
Muut ehdot: Vakuus 3 kk:n vuokraa vastaava summa, minimivuokrasopimusaika 12kk määräaikaisena ja sen jälkeen jatkuu toistaiseksi voimassa olevana 3kk irtisanomisajalla, luottotietojen on oltava kunnossa
Vapautuu
Heti
Rakennusvuosi
1991
Katutasossa
Näkyvällä paikalla
Ota yhteyttä
Tilat.fi
KTM, LKV Antti Soivio
Näytä puhelinnumero
0400 446 553
OTM, LKV Riikka Tuominen
Näytä puhelinnumero
0400 551 790
KTM, LKV Maria-Sofia Puhakka
Näytä puhelinnumero
0400-150330
Yrityksen virallinen nimi: LKV Toimitilaa.fi Oy. Toimitilojen välitykseen erikoistunut yritys.
http://www.tilat.fiPyydä lisätietoa
