Vuokrataan toimistotilat - Kempele
Voimatie 6, Ristisuo, 90440 Kempele #10777164
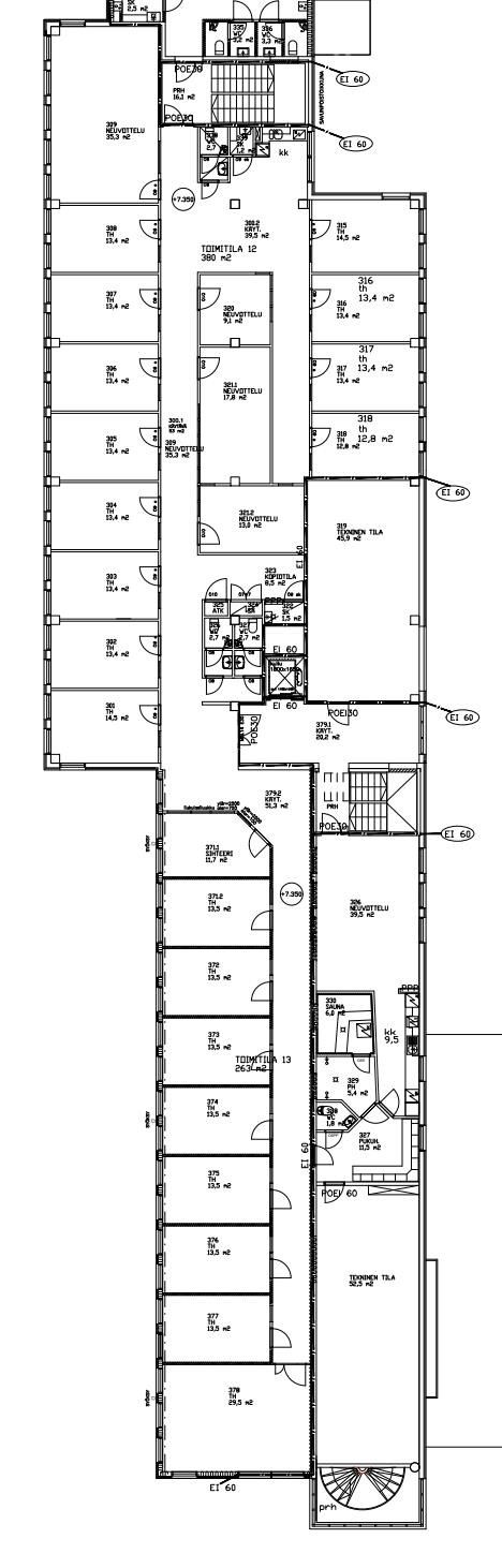
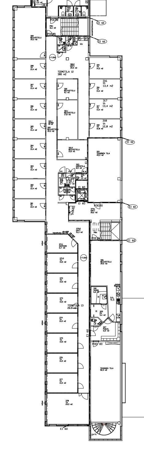
Kempeleestä, osoitteesta Voimatie 6, vuokrattavana siistikuntoinen toimistokokonaisuus. Toimistotilat sijaitsevat rakennuksen kolmannessa kerroksessa, jonne käynti helposti hissillä. Tilat koostuvat toimistohuoneista, saunatiloista, neuvotteluhuoneista sekä taukokeittiöstä. Toimistohuoneita on yhteensä 20 kpl (n. 13-14m2), jotka soveltuvat 1-3 henkilön työhuoneiksi. Lisäksi neuvotteluhuoneita on yhteensä 6 kpl (n. 9m2, 13m2, 17m2, 35m2, 29m2, 39m2) ja nämä soveltuvat hyvin myös avotoimistotiloiksi. Isoimpaan neuvottelutilaan on erillinen sisäänkäynti rapusta, joka mahdollistaa käytön asiakastilaisuuksien pitämiseen. Neuvottelutilan yhteydessä on keittiö sekä saunatilat.
Tilat vapautuu sopimuksen mukaan uudelle käyttäjälle. Vuokra 17€ / m2 sisältää lämmityksen, sähkön ja veden. Autopaikkoja on runsaasti pihassa niin työntekijöille kuin asiakkaillekin.
Tilat sijaitsevat Kempeleessä, aivan moottoritien varrella, joten näkyvyys on taattu ja kulkeminen helppoa. Autolla Oulun Keskustaan ajaa alle 15min, samoin Oulun lentoasemalle. Kempeleen rautatieasemalle on reilu kilometrin matka ja lähimmälle bussipysäkille on n. 400m. Tässä kiinteistössä on useita eri toimijoita, mukaan lukien Antellin lounasravintola. Antellilla on kaksi kokoustilaa vapaasti käytettävissä, joihin on mahdollista saada catering-palvelut.
Esittelyt ja lisätietoa Julia Hoikkala 050 411 8747 tai julia.hoikkala@op.fi.
Tilat vapautuu sopimuksen mukaan uudelle käyttäjälle. Vuokra 17€ / m2 sisältää lämmityksen, sähkön ja veden. Autopaikkoja on runsaasti pihassa niin työntekijöille kuin asiakkaillekin.
Tilat sijaitsevat Kempeleessä, aivan moottoritien varrella, joten näkyvyys on taattu ja kulkeminen helppoa. Autolla Oulun Keskustaan ajaa alle 15min, samoin Oulun lentoasemalle. Kempeleen rautatieasemalle on reilu kilometrin matka ja lähimmälle bussipysäkille on n. 400m. Tässä kiinteistössä on useita eri toimijoita, mukaan lukien Antellin lounasravintola. Antellilla on kaksi kokoustilaa vapaasti käytettävissä, joihin on mahdollista saada catering-palvelut.
Esittelyt ja lisätietoa Julia Hoikkala 050 411 8747 tai julia.hoikkala@op.fi.
OP Koti Pohjoinen Oy LKV
Toimitila- ja vuokravälitys
Lekatie 6
90140 OULU
Petteri Haapala
Asiakkuuspäällikkö, LKV, AKA, KHK
Näytä puhelinnumero
040 567 1497
