Vuokrataan toimistotilat - Helsinki
Salmisaarenaukio 1, Salmisaari, 00180 Helsinki #10776743
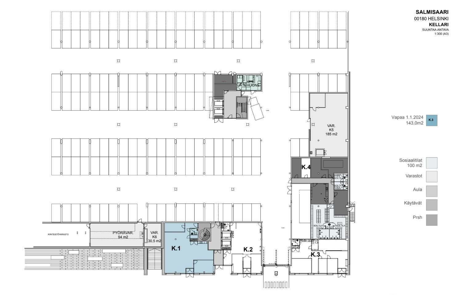
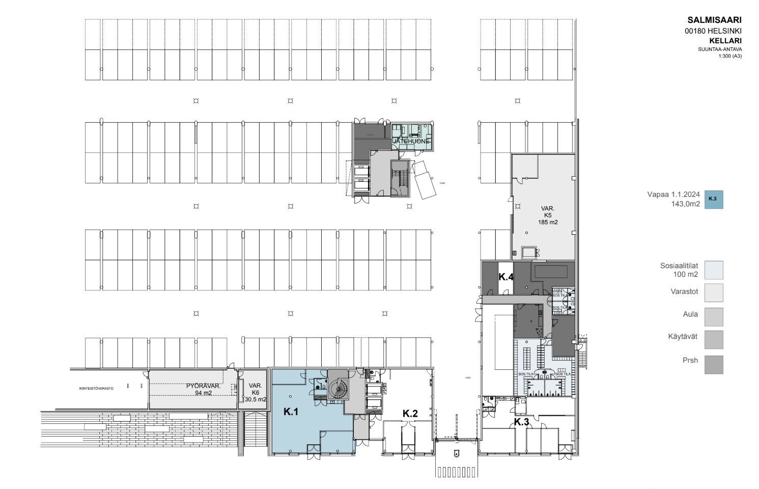
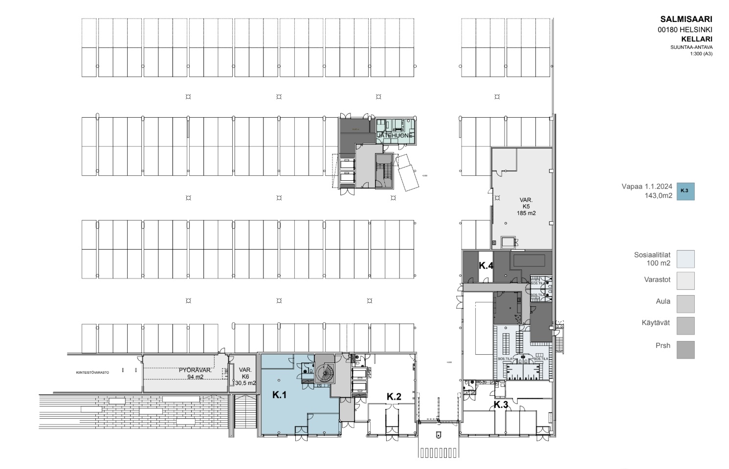
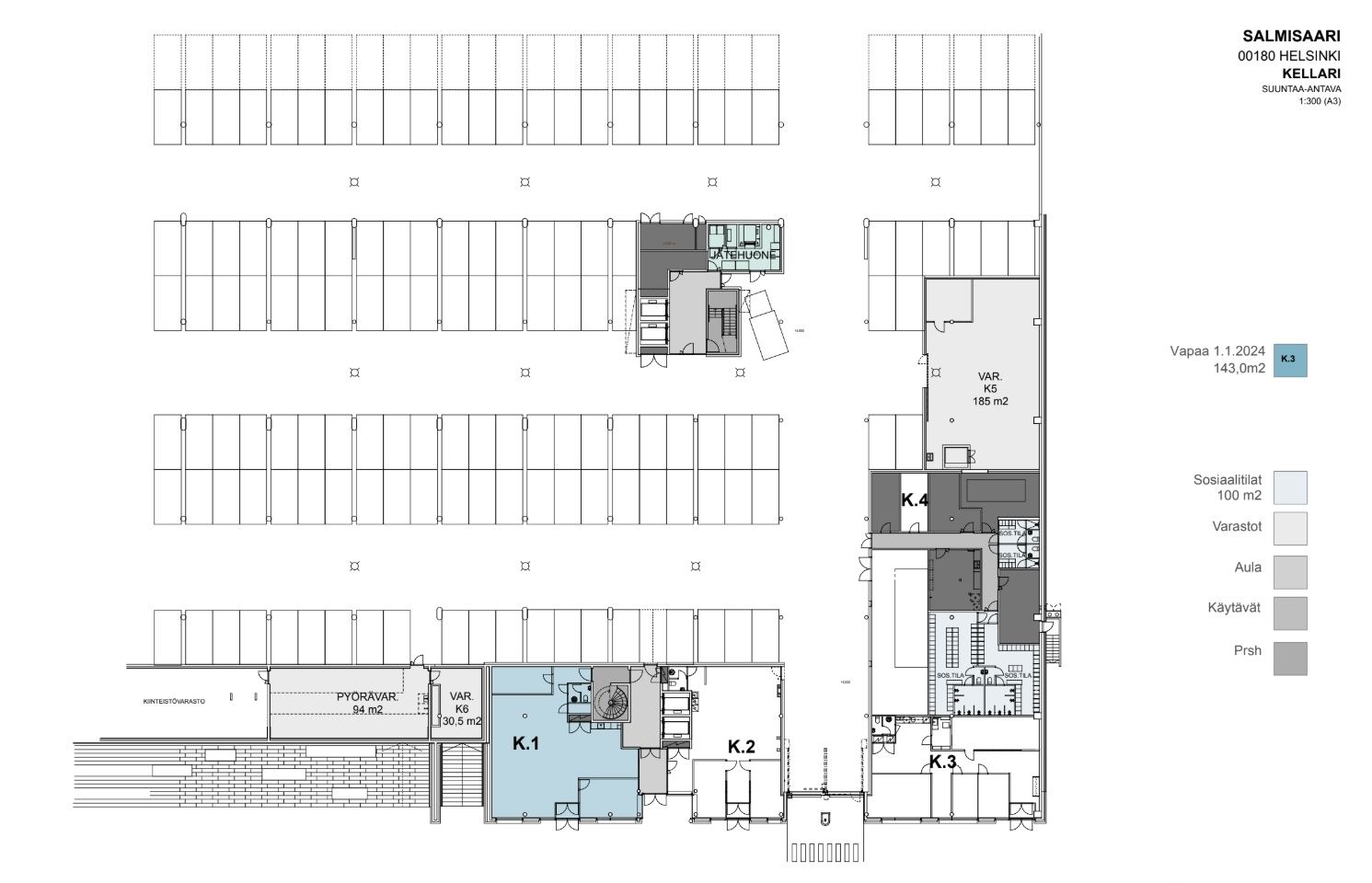
Kompakti katutason monitilatoimisto pääkonttoritasoisessa toimitilakiinteistössä. Oma sisäänkäynti Salmisaarenrannan puolella mahdollistaa tilan käytön niin toimistona kuin showroomina. Tilassa on useampia pienempiä huoneita, keittiö ja wc:t.
Salmisaarenaukio 1 tarjoaa erinomaisen sijainnin toiminnalle. Salmisaari ja Ruoholahti ovat alunperin teollisuus- ja varastoaluetta, joka on muuttunut 1990- ja 2000-luvuilla tärkeäksi yrityselämän keskittymäksi. Täällä kohtaavat historiallinen urbaani alue meren äärellä, teollinen ympäristö sekä huippumodernit pääkonttoritason toimistot.
Vuonna 2007 valmistunut Salmisaarenaukio 1 rakennettiin alun perin korkeatasoiseksi pääkonttorikiinteistöksi. Kiinteistön on suunnitellut arkkitehtitoimisto Helin & Co Architects. Kiinteistö tarjoaa tyylikkäät ja muuntojoustavat toimitilat, jotka suunnitellaan tarpeidenne mukaisesti.
Croisette on uusi ja innovatiivinen toimitilojen välitysyritys Suomessa. Meillä on vahva halu auttaa teitä löytämään paras toimitilaratkaisu mahdollisimman vaivattomasti.
Huomaathan, että kaikki vapaat ja vapautuvat tilat ovat kauttamme saatavilla. Osa tiloista on hiljaisessa markkinoinnissa, mutta ottamalla meihin yhteyttä saat nekin tietoosi.
Palvelumme on tilanhakijoille täysin maksutonta.
Hissi
Croisette Real Estate Partner
Erottajankatu 5 A 6, 00130 Helsinki
Näytä puhelinnumero
+358 400 585 857
Croisette Vuokraus
Näytä puhelinnumero
+358400585857
