Vuokrataan tuotantotilat, varastotilat, työtilat - Kempele
Rasivainiontie 8, 90440 Kempele #10776649
Vuokrataan siisti halli-/ varastotila Kempeleen Riihivainiolta!
Selkeä suorakaiteen muotoinen päätyhalli, jossa yksi kulma-alue matalampaa tilaa.
Ei vuokrata korjaamokäyttöön!
Osoite
Rasivainiontie 8, 90440 Kempele
Tilatyyppi
Tuotantotilaa
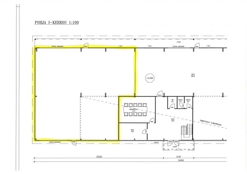
246 m2
Varastotilaa
246 m2
Työtilaa
246 m2
Yhteensä
246 m2
Pohjapiirros
Vuokra
2.646,96€/kk + alv, lisäksi käyttösähkö ja vesi
Vuokraan sisältyy lämpö
Pysäköinti
Hallien välinen piha-alue asfaltoitu ja siinä on lämpöpaikkoja autoille. Lämpöpaikkavuokra 120€/ vuosi + alv.
Muuta
Läpiajettavan hallin vapaa korkeus on pääosin n. 4,5m ja yksi kulma-alue on matalampaa ja siihen voidaan rakentaa toimistotilat.
Taiteovet 5000 x 5000 ja 7000 x 5000.
Taiteovet 5000 x 5000 ja 7000 x 5000.
Vapautuu
Sopimuksen mukaan
Rakennusvuosi
2015
Ota yhteyttä
Pohjois-Suomen Toimitilat Oy
Sepänkatu 20, 90100 Oulu
Pekka Valkola
Näytä puhelinnumero
044 311 0555
Pyydä lisätietoa
