Vuokrataan toimistotilat - Helsinki
Malminkaari 5, Malmi, 00700 Helsinki #10775801
Siisti katutason 302 m² toimisto näkyvällä paikalla, kävelymatkan päässä Malmin juna-asemalta.
Osoite
Malminkaari 5, 00700 Helsinki
Tilatyyppi
Toimistotilaa
302 m2
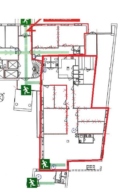
Pohjapiirros
Kiinteistö
Tila jakaantuu kahteen osaan, 236 m² päätila, sekä erillinen, kahdesta huoneesta koostuva 66 m² tila. Pääosin huoneita ja yksi suurempi avotila. Lisäksi kahdet wc-tilat, pieni keittiö ja sosiaalitilaksi soveltuvaa tilaa.
Vuonna 1989 valmistuneessa viisikerroksisessa kiinteistössä on vuokrattavaa toimitilaa yhteensä n. 3 400 m². Kiinteistön tilat soveltuvat monentyyppisiin toimitilaratkaisuihin erikokoisille yrityksille. Pihatasossa on muutama liiketila omalla sisäänkäynnillä.
Kellarikerroksessa on kiinteistön käyttäjille vuokrattavissa pienvarastotilaa. Lämpimässä autotallissa on 31 autopaikkaa ja piha-alueella on 27 autopaikkaa. Pyöräilijöiden käytössä on suihkutila.
Malminkaari 5 sijaitsee vain noin 200 metrin päässä Malmin juna-asemalta ja vilkkaasta joukkoliikenneterminaalista. Hyvien liikenneyhteyksien lisäksi Malmin alue tarjoaa kattavat julkiset ja kaupalliset palvelut. Kauppakeskus Malmin Nova löytyy lähistöltä samoin mm. posti ja kirjasto.
- Pienvarastotilaa kellarissa
- Jäähdytetty ilmanvaihto
- Autotallissa on vuokrattavissa autopaikkoja, piha-alueella pysäköinti veloituksetta
- Moderni tietoliikennekaapelointi
Bussipysäkki alle 100 m, Juna-asema 200 m, Lentoasema 14,1 km
Vuonna 1989 valmistuneessa viisikerroksisessa kiinteistössä on vuokrattavaa toimitilaa yhteensä n. 3 400 m². Kiinteistön tilat soveltuvat monentyyppisiin toimitilaratkaisuihin erikokoisille yrityksille. Pihatasossa on muutama liiketila omalla sisäänkäynnillä.
Kellarikerroksessa on kiinteistön käyttäjille vuokrattavissa pienvarastotilaa. Lämpimässä autotallissa on 31 autopaikkaa ja piha-alueella on 27 autopaikkaa. Pyöräilijöiden käytössä on suihkutila.
Malminkaari 5 sijaitsee vain noin 200 metrin päässä Malmin juna-asemalta ja vilkkaasta joukkoliikenneterminaalista. Hyvien liikenneyhteyksien lisäksi Malmin alue tarjoaa kattavat julkiset ja kaupalliset palvelut. Kauppakeskus Malmin Nova löytyy lähistöltä samoin mm. posti ja kirjasto.
- Pienvarastotilaa kellarissa
- Jäähdytetty ilmanvaihto
- Autotallissa on vuokrattavissa autopaikkoja, piha-alueella pysäköinti veloituksetta
- Moderni tietoliikennekaapelointi
Bussipysäkki alle 100 m, Juna-asema 200 m, Lentoasema 14,1 km
Muuta
Kellarikerroksessa vuokrattavissa pienvarastotilaa.
Vapautuu
Heti
Rakennusvuosi
1989
Kerros
1 / 5
Energiatehokkuusluokka
Ei lain edellyttämää energiatodistusta
Katutasossa
Näkyvällä paikalla
Hissi
Ota yhteyttä
ScanReal Oy LKV
Opus Business Park
Hitsaajankatu 24
00810 Helsinki
info@scanreal.fi
Puh:
Näytä puhelinnumero
020 730 8830
Sopivat toimitilat yhdellä otolla!
Kartoitamme toimitilatarpeesi ja etsimme yrityksellesi parhaiten sopivat vapaat toimitilat. Koska vuokranantajat maksavat palvelumme, on tämä yrityksellesi veloituksetonta.
OTA YHTEYTTÄ - SOVI NÄYTTÖ!
Kaikki kohteemme eivät ole netissä, kerro tilatarpeesi niin kartoitamme vaihtoehdot.
Palvelumme on tilanhakijalle ilmainen
Pyydä lisätietoa
