Vuokrataan toimistotilat - Helsinki
Lönnrotinkatu 11, Kamppi, 00120 Helsinki #10775083
Moderni 587 m² toimistotila erinomaisella sijainnilla keskustan tuntumassa.
Osoite
Lönnrotinkatu 11, 00120 Helsinki
Tilatyyppi
Toimistotilaa
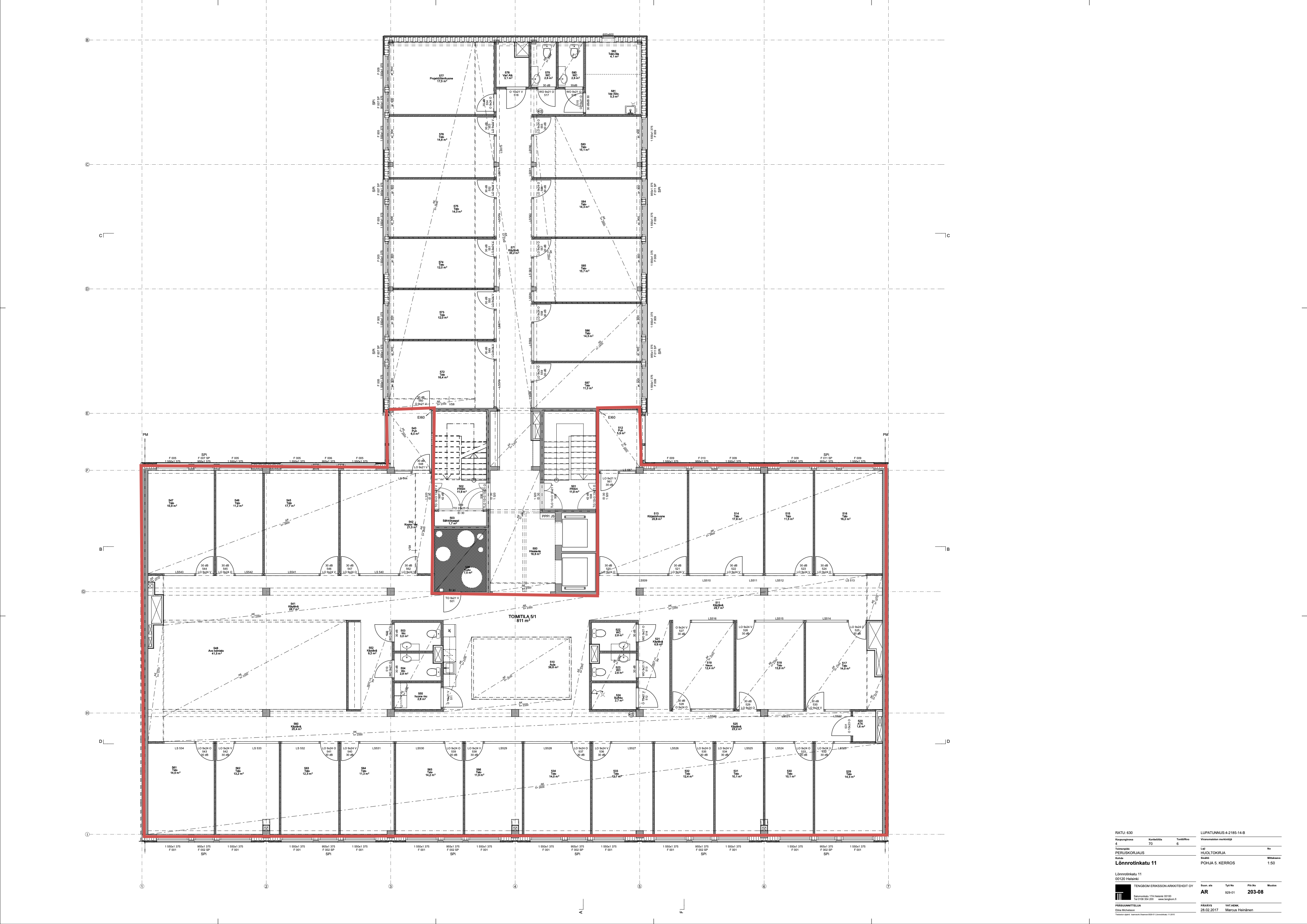
587 m2
Pohjapiirros
Kiinteistö
5. kerroksen toimistotila Helsingin ytimessä, Lönnrotinkadulla.
Modernit ja monimuotoiset tilat on uudistettu 2016 valmistuneen saneerauksen yhteydessä.
Lönnrotinkatu 11 on alun perin vuonna 1972 valmistunut toimistorakennus, joka sijaitsee Helsingin ydinkeskustassa, erinomaisten liikenneyhteyksien äärellä. Nyt kiinteistön kaikki julkisivut, sisätilat ja talotekniikka uudistetaan vastaamaan nykypäivän toimitilan vaatimuksia. Modernien tilojen lisäksi vuokralaisille tarjotaan katutasossa mm. kahvilapalveluita.
Tilat suunnitellaan yrityksesi tarpeita vastaaviksi.
Ilmoituksen kuvat ovat kuvituskuvia kiinteistön eri tiloista.
Modernit ja monimuotoiset tilat on uudistettu 2016 valmistuneen saneerauksen yhteydessä.
Lönnrotinkatu 11 on alun perin vuonna 1972 valmistunut toimistorakennus, joka sijaitsee Helsingin ydinkeskustassa, erinomaisten liikenneyhteyksien äärellä. Nyt kiinteistön kaikki julkisivut, sisätilat ja talotekniikka uudistetaan vastaamaan nykypäivän toimitilan vaatimuksia. Modernien tilojen lisäksi vuokralaisille tarjotaan katutasossa mm. kahvilapalveluita.
Tilat suunnitellaan yrityksesi tarpeita vastaaviksi.
Ilmoituksen kuvat ovat kuvituskuvia kiinteistön eri tiloista.
Sijainti
Kohde sijaitsee erittäin keskeisellä paikalla Helsingin keskustassa Kampissa, muutaman korttelin päässä Mannerheimintiestä.
Ympäristö
Pysäköinti
Kellarikerroksessa on 18 autopaikkaa ja lisäksi piha-alueella 22 autopaikkaa. Kohteen lähellä on myös runsaasti pysäköintilaitoksia.
Palvelut
Puolen kilometrin säteellä sijaitsevat mm. Kampin kauppakeskus, Stockmannin tavaratalo ja Forumin kauppakeskus. Alueella on myös lukuisia ravintoloita ja erikoistavarakauppoja, sekä muita keskustan palveluita.
Kulkuyhteydet
Kohde sijaitsee erinomaisten kulkuyhteyksien äärellä. Lähin raitiovaunupysäkki on aivan nurkan takana ja Kampin metroasemalle ja bussiterminaaliin reilun puolen kilometrin kävelymatka. Rautatieasemallekin on vain alle kilometrin matka.
Metroasema 600 m, Raitiovaunupysäkki 300 m, Bussipysäkki 200 m, Juna-asema 800 m, Lentoasema 20,8 km
Metroasema 600 m, Raitiovaunupysäkki 300 m, Bussipysäkki 200 m, Juna-asema 800 m, Lentoasema 20,8 km
Vapautuu
Heti
Rakennusvuosi
1972
Saneerausvuosi
2016
Kerros
5
Energiatehokkuusluokka
Ei lain edellyttämää energiatodistusta
Näkyvällä paikalla
Hissi
Ota yhteyttä
ScanReal Oy LKV
Opus Business Park
Hitsaajankatu 24
00810 Helsinki
info@scanreal.fi
Puh:
Näytä puhelinnumero
020 730 8830
Sopivat toimitilat yhdellä otolla!
Kartoitamme toimitilatarpeesi ja etsimme yrityksellesi parhaiten sopivat vapaat toimitilat. Koska vuokranantajat maksavat palvelumme, on tämä yrityksellesi veloituksetonta.
OTA YHTEYTTÄ - SOVI NÄYTTÖ!
Kaikki kohteemme eivät ole netissä, kerro tilatarpeesi niin kartoitamme vaihtoehdot.
Palvelumme on tilanhakijalle ilmainen
Pyydä lisätietoa
