Vuokrataan toimistotilat - Jyväskylä
Kivääritehtaankatu 6, Tourula, 40100 Jyväskylä #10774944
Vuokrataan modernia ja persoonallista toimistotilaa Kivääritehtaalta.
Osoite
Kivääritehtaankatu 6, 40100 Jyväskylä
Tilatyyppi
Toimistotilaa
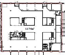
1176 m2
Muuta
Vuonna 1927 valmistunut valtion kivääritehdas on saneerattu 2000-luvun alussa korkeatasoiseksi toimistorakennukseksi jossa eri kokoisia, korkealla huonekorkeudella ja nykyaikaisella kiinteistötekniikalla varustettuja toimistoja: jäähdytys, koneellinen ilmanvaihto lämmön talteenotolla, kuituyhteydet, joustava pohjaratkaisu.
Kohteen saavutettavuus valtateiden risteyksien läheisyydessä on erinomainen, Jyväskylän keskusta on noin 1km päässä ja matkakeskus kävelymatkan etäisyydellä. Lähellä ruokapaikkoja, lähiliikenteen pysäkit sekä ruokakauppa. Kiinteistöllä sähköautojen latauspaikkoja.
Toimistotilat palvelevat nykyaikaista monitilatoimistoa muokattavuuden osalta ja ne soveltuvat monille eri toimijoille.
Katutason kahdella omalla sisäänkäynnillä oleva tila mahdollistaa monen käytön, se on ollut mm. tilitoimiston, postin ja Jyväskylän kaupungin rakennusvalvonnan käytössä. Tila jakaantuu avoimeen sekä enemmän huoneita käsittävään kokonaisuuteen. Isoja työ- tai neuvottelutiloja on sijoitettu persoonallisena parviratkaisuna tilan keskiosaan. Tilasta on poistettu vanha lattiamateriaali, lattia on tasoitettu ja odottaa uuden toimijan mukaista pinnoitetta, esim. palamatto tai vinyyli.
Ota yhteyttä näyttöä varten!
Kohteen saavutettavuus valtateiden risteyksien läheisyydessä on erinomainen, Jyväskylän keskusta on noin 1km päässä ja matkakeskus kävelymatkan etäisyydellä. Lähellä ruokapaikkoja, lähiliikenteen pysäkit sekä ruokakauppa. Kiinteistöllä sähköautojen latauspaikkoja.
Toimistotilat palvelevat nykyaikaista monitilatoimistoa muokattavuuden osalta ja ne soveltuvat monille eri toimijoille.
Katutason kahdella omalla sisäänkäynnillä oleva tila mahdollistaa monen käytön, se on ollut mm. tilitoimiston, postin ja Jyväskylän kaupungin rakennusvalvonnan käytössä. Tila jakaantuu avoimeen sekä enemmän huoneita käsittävään kokonaisuuteen. Isoja työ- tai neuvottelutiloja on sijoitettu persoonallisena parviratkaisuna tilan keskiosaan. Tilasta on poistettu vanha lattiamateriaali, lattia on tasoitettu ja odottaa uuden toimijan mukaista pinnoitetta, esim. palamatto tai vinyyli.
Ota yhteyttä näyttöä varten!
Vapautuu
Kysy
Rakennusvuosi
1927
Kerros
1
Ota yhteyttä
Pyydä lisätietoa
