Vuokrataan toimistotilat - Helsinki
Lyyra, Toinen linja 7, Hakaniemi, 00530 Helsinki #10774325
Ylimmän kerroksen 891 m² toimisto tyylikkäästä vastavalmistuneesta kohteesta, loistoyhteyksien varrelta Hakaniemestä.
Osoite
Toinen linja 7, 00530 Helsinki
Tilatyyppi
Toimistotilaa
891 m2
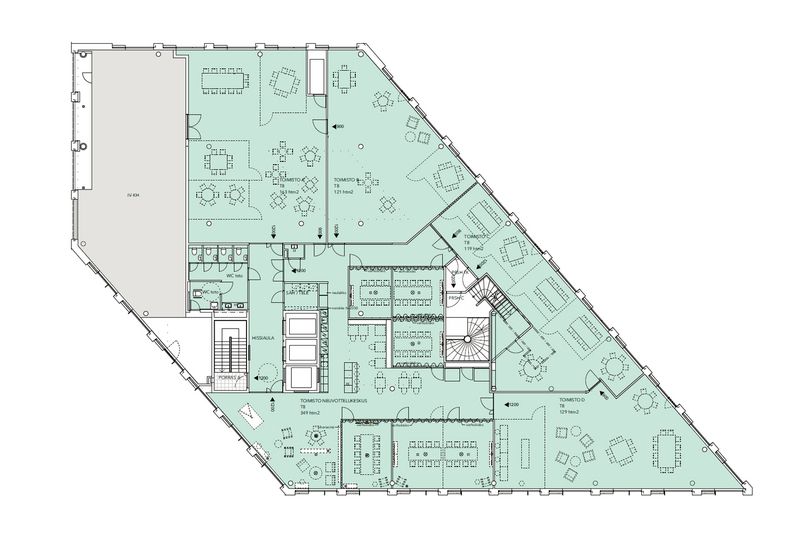
Pohjapiirros
Kiinteistö
Lyyra on vauhdilla kehittyvän Kallion uusi maamerkki. Vanhojen virastotalojen paikalle Toisen linjan ja Porthaninkadun kulmaan nouseva kortteli tuo alueen asukkaiden ulottuville kymmenittäin uusia kahviloita, ravintoloita ja palveluita.
Loistava sijainti takaa myös helpon saavutettavuuden sekä yrityksesi työntekijöille, että mahdollisille asiakkaille ja kumppaneille.
Lyyran uudet toimistot sijaitsevat Helsingin itäisen kantakaupungin parhaalla paikalla suoraan Hakaniemen metroaseman yläpuolella osoitteessa Toinen Linja 7. Ravintolat, kahvilat ja ruokaostokset hoituvat kätevästi samassa korttelissa, ja vieraasi majoittuvat Helsingin ensimmäiseen Citybox-hotelliin kävelykadun toiselle puolelle. Lyyrassa työskentelet LEED Platinum- ja WELL-sertifioiduissa toimitiloissa, jotka sisustetaan juuri sinun yrityksesi näköisiksi. Vuokraa koko kerros käyttöösi, tai valitse tarpeisiisi sopiva tilajako: Lyyran toimitiloissa nautit aina vain parhaasta.
Lyyran toimistorakennuksen ohitse kulkee tunnissa jopa 500 eri julkisen liikenteen kulkuneuvoa. Työmatka toimistolle taittuu kätevästi kaikista suunnista: metrot, raitiovaunut ja bussit pysähtyvät kirjaimellisesti Lyyran etuovelle. Käytössäsi on turvallinen lämmitetty pyörähalli, ja Lyyran omien parkkipaikkojen lisäksi lähialueelle on suunnitteilla tilava parkkihalli.
Lyyran toimistot on suunniteltu kestävyys edellä. Tiloille haetaan LEED Platinum-sertifikaattia, joka on kansainvälisesti tunnistetun järjestelmän korkein taso. LEED takaa energiatehokkuuden lisäksi myös esimerkiksi toimiston materiaalien ja sisäilman laadun. Lisäksi toimistorakennukselle haetaan WELL-sertifikaattia. Kaikki Lyyran tilat tähtäävät Suomen ympäristöministeriön säätelemään A-energialuokkaan eli korkeimpaan mahdolliseen.
Lyyran toimistot on suunniteltu muuntojoustaviksi. Toimistojen tilajaoissa käytetään materiaaleja, jotka on helppo purkaa tai siirtää myöhemmin, jos yrityksesi tilatarpeet muuttuvat. Tilat laajenevat myös pystysuunnassa: eri kerrokset on mahdollista yhdistää yhdeksi toimistoksi kätevästi trendikkäillä sisäportailla.
Loistava sijainti takaa myös helpon saavutettavuuden sekä yrityksesi työntekijöille, että mahdollisille asiakkaille ja kumppaneille.
Lyyran uudet toimistot sijaitsevat Helsingin itäisen kantakaupungin parhaalla paikalla suoraan Hakaniemen metroaseman yläpuolella osoitteessa Toinen Linja 7. Ravintolat, kahvilat ja ruokaostokset hoituvat kätevästi samassa korttelissa, ja vieraasi majoittuvat Helsingin ensimmäiseen Citybox-hotelliin kävelykadun toiselle puolelle. Lyyrassa työskentelet LEED Platinum- ja WELL-sertifioiduissa toimitiloissa, jotka sisustetaan juuri sinun yrityksesi näköisiksi. Vuokraa koko kerros käyttöösi, tai valitse tarpeisiisi sopiva tilajako: Lyyran toimitiloissa nautit aina vain parhaasta.
Lyyran toimistorakennuksen ohitse kulkee tunnissa jopa 500 eri julkisen liikenteen kulkuneuvoa. Työmatka toimistolle taittuu kätevästi kaikista suunnista: metrot, raitiovaunut ja bussit pysähtyvät kirjaimellisesti Lyyran etuovelle. Käytössäsi on turvallinen lämmitetty pyörähalli, ja Lyyran omien parkkipaikkojen lisäksi lähialueelle on suunnitteilla tilava parkkihalli.
Lyyran toimistot on suunniteltu kestävyys edellä. Tiloille haetaan LEED Platinum-sertifikaattia, joka on kansainvälisesti tunnistetun järjestelmän korkein taso. LEED takaa energiatehokkuuden lisäksi myös esimerkiksi toimiston materiaalien ja sisäilman laadun. Lisäksi toimistorakennukselle haetaan WELL-sertifikaattia. Kaikki Lyyran tilat tähtäävät Suomen ympäristöministeriön säätelemään A-energialuokkaan eli korkeimpaan mahdolliseen.
Lyyran toimistot on suunniteltu muuntojoustaviksi. Toimistojen tilajaoissa käytetään materiaaleja, jotka on helppo purkaa tai siirtää myöhemmin, jos yrityksesi tilatarpeet muuttuvat. Tilat laajenevat myös pystysuunnassa: eri kerrokset on mahdollista yhdistää yhdeksi toimistoksi kätevästi trendikkäillä sisäportailla.
Vapautuu
Heti
Rakennusvuosi
2023
Kerros
8 / 8
Energiatehokkuusluokka
Ei lain edellyttämää energiatodistusta
Näkyvällä paikalla
Hissi
Ota yhteyttä
ScanReal Oy LKV
Opus Business Park
Hitsaajankatu 24
00810 Helsinki
info@scanreal.fi
Puh:
Näytä puhelinnumero
020 730 8830
Sopivat toimitilat yhdellä otolla!
Kartoitamme toimitilatarpeesi ja etsimme yrityksellesi parhaiten sopivat vapaat toimitilat. Koska vuokranantajat maksavat palvelumme, on tämä yrityksellesi veloituksetonta.
OTA YHTEYTTÄ - SOVI NÄYTTÖ!
Kaikki kohteemme eivät ole netissä, kerro tilatarpeesi niin kartoitamme vaihtoehdot.
Palvelumme on tilanhakijalle ilmainen
Pyydä lisätietoa
