Myydään varastotilat, työtilat, autotalli/-hallitilat - Sipoo
Hiekkamäentie 25 a, 01150 Sipoo #10774031
Myydään vastavalmistuneita varastohalleja Sipoonlahdessa!
Osoite
Hiekkamäentie 25 a, 01150 Sipoo
Tilatyyppi
Varastotilaa
38,5 m2
Työtilaa
38,5 m2
Autotalli/-hallitilaa
38,5 m2
Yhteensä
38,5 m2
Myyntihinta
59'990 € (velaton)
Muuta
Nyt on myytävänä vastavalmistuneita, laadukkaita varastohalleja Sipoonlahdessa. Hallitilat sopivat monenlaiseen yritystoimintaan.
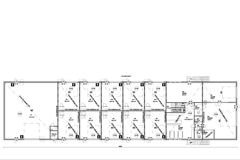
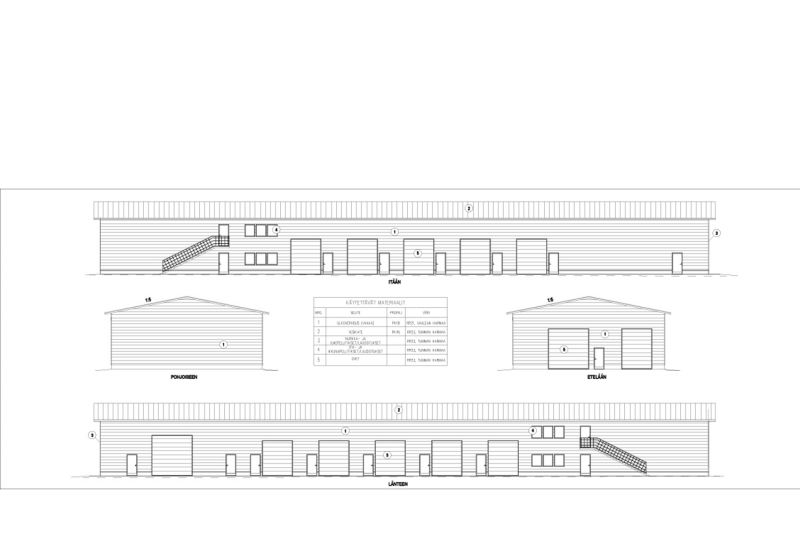
Rakennuksen hallitilat ovat pinta-alaltaan 38,5 m² ja niiden sisäkorkeus on 5,9 metriä. Hallitilan syvyys on 7,15 metriä ja leveys on 5,4 metriä. Halleissa on tilakohtaiset ilmalämpöpumput. Tilojen varusteluun kuulu wc- ja vesipistevaraus, nosto-ovi (L3 m x K3,5 m) käyntiovella, LED-valaistus ja lattiakaivo hiekan- ja öljynerotuksella. Tilakohtaisen sähköliittymän koko on 3 x 25 A ja tiloissa on useampi sähköpistoke, tavallisia pistokepaikkoja ja 2 x 16 A pistokkeet.
Yhtiöllä on oma tontti.
Tilat myydään arvonlisäverolliseen yrityskäyttöön edellä mainituilla hinnoilla (myyjä on tehnyt arvonlisäveropoistot rakennuskustannuksista). Mikäli tila ostetaan yrityksen käyttöön maksaa omistaja alv-vastiketta (hoitovastike + alv , katso erittely alhaalla)
Jos tila ostetaan arvonlisäverovapaaseen yksityiskäyttöön, hintaan lisätään noin 140-150€/m² (summa varmistuu hallin valmistuttua). Yksityiskäyttöön ostetusta tilasta maksetaan vain tavallinen hoitovastike, ei alv-vastiketta (katso erittely alhaalla).
Sibbesborgin kasvava yritysalue sijaitsee erinomaisella paikalla Porvoonväylän kupeessa Sipoonlahdessa. Yritysalueelta on kaksi liittymää Porvoonväylälle, jota pitkin pääsee 15 minuutissa Vuosaaren satamaan sekä noin 20 minuutissa Porvoon keskustaan. Helsinki-Vantaan lentoasemalle ajaa alle puolessa tunnissa.
Laadukkaat hallitilat hyvällä sijainnilla!
Kohdetiedot
Sijainti
Osoite: Hiekkamäentie 25 a, 01150 Sipoo
Kaupunginosa: Söderkulla
Ympäristö: Teollisuusalue
Tontti:
Pinta-ala: 2462 m²
Omistus: Oma
Rakennus/huoneisto
Pinta-alat: 38,5 m²
Huoneistoselitelmä: Hallitila
Kunto, varusteet ja palvelut: Uusi tila, jossa on nosto-ovi, lattiakaivo, ilmalämpöpumppu, wc- ja vesipistevaraus
Pysäköinti: Pihalla
Lämmitys: Sähkölämmitys
Myyntihinta ja kulut
Velaton myyntihinta: 59’990 €
Hoitovastike: 1,75 €/m²/kk (alv. 0%)
Alv-vastike: 1,75 €/m²/kk + alv (25,5 %)
Lämmitys: Ilmalämpöpumpulla omalla kustannuksella
Sähkö- ja vesimaksu: Mittauksen mukaan
Rakennuksen hallitilat ovat pinta-alaltaan 38,5 m² ja niiden sisäkorkeus on 5,9 metriä. Hallitilan syvyys on 7,15 metriä ja leveys on 5,4 metriä. Halleissa on tilakohtaiset ilmalämpöpumput. Tilojen varusteluun kuulu wc- ja vesipistevaraus, nosto-ovi (L3 m x K3,5 m) käyntiovella, LED-valaistus ja lattiakaivo hiekan- ja öljynerotuksella. Tilakohtaisen sähköliittymän koko on 3 x 25 A ja tiloissa on useampi sähköpistoke, tavallisia pistokepaikkoja ja 2 x 16 A pistokkeet.
Yhtiöllä on oma tontti.
Tilat myydään arvonlisäverolliseen yrityskäyttöön edellä mainituilla hinnoilla (myyjä on tehnyt arvonlisäveropoistot rakennuskustannuksista). Mikäli tila ostetaan yrityksen käyttöön maksaa omistaja alv-vastiketta (hoitovastike + alv , katso erittely alhaalla)
Jos tila ostetaan arvonlisäverovapaaseen yksityiskäyttöön, hintaan lisätään noin 140-150€/m² (summa varmistuu hallin valmistuttua). Yksityiskäyttöön ostetusta tilasta maksetaan vain tavallinen hoitovastike, ei alv-vastiketta (katso erittely alhaalla).
Sibbesborgin kasvava yritysalue sijaitsee erinomaisella paikalla Porvoonväylän kupeessa Sipoonlahdessa. Yritysalueelta on kaksi liittymää Porvoonväylälle, jota pitkin pääsee 15 minuutissa Vuosaaren satamaan sekä noin 20 minuutissa Porvoon keskustaan. Helsinki-Vantaan lentoasemalle ajaa alle puolessa tunnissa.
Laadukkaat hallitilat hyvällä sijainnilla!
Kohdetiedot
Sijainti
Osoite: Hiekkamäentie 25 a, 01150 Sipoo
Kaupunginosa: Söderkulla
Ympäristö: Teollisuusalue
Tontti:
Pinta-ala: 2462 m²
Omistus: Oma
Rakennus/huoneisto
Pinta-alat: 38,5 m²
Huoneistoselitelmä: Hallitila
Kunto, varusteet ja palvelut: Uusi tila, jossa on nosto-ovi, lattiakaivo, ilmalämpöpumppu, wc- ja vesipistevaraus
Pysäköinti: Pihalla
Lämmitys: Sähkölämmitys
Myyntihinta ja kulut
Velaton myyntihinta: 59’990 €
Hoitovastike: 1,75 €/m²/kk (alv. 0%)
Alv-vastike: 1,75 €/m²/kk + alv (25,5 %)
Lämmitys: Ilmalämpöpumpulla omalla kustannuksella
Sähkö- ja vesimaksu: Mittauksen mukaan
Vapautuu
Heti
Kerros
1 / 1
Näkyvällä paikalla
Ota yhteyttä
Tilat.fi
KTM, LKV Antti Soivio
Näytä puhelinnumero
0400 446 553
OTM, LKV Riikka Tuominen
Näytä puhelinnumero
0400 551 790
KTM, LKV Maria-Sofia Puhakka
Näytä puhelinnumero
0400-150330
Tilat.fi Oy on toimitilojen välitykseen erikoistunut yritys.
http://www.tilat.fiPyydä lisätietoa
