Vuokrataan - Helsinki
Lautatarhankatu 6, Sörnäinen, 00580 Helsinki #10773433
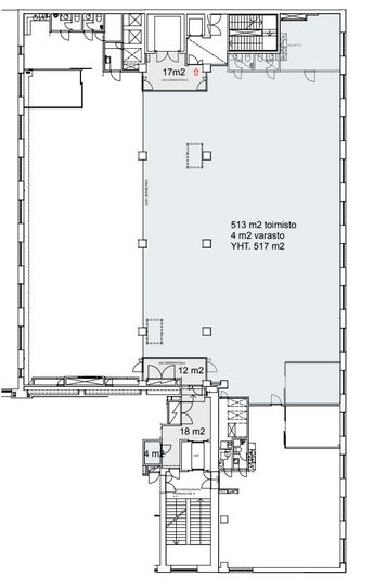
Vuokrattavana 2.kerroksen korkea avotoimisto ( 514 m2)., johon tulee tavarahissi. Tilan isot ruutuikkunat ovat Työpajankadun / Teurastamon suuntaan. Lindström talo tarjoa vuokralaisille kaikki tarvittavat palvelut ml aulapalvelu, vuokrattavat neuvottelutilat, lounasravintola, kuntosali yms.
Kysy lisää sp: heli.reinberg@rhg.fi.
Osoite
Lautatarhankatu 6, 00580 Helsinki
Vapautuu
Kysy
Huoneiden lukumäärä
1
Energiatehokkuusluokka
Ei lain edellyttämää energiatodistusta
Ota yhteyttä
RHG Real Estate
Hämeenkatu 2 B20, 20500 Turku
Näytä puhelinnumero
020 734 4020
Heli Reinberg
Näytä puhelinnumero
040 647 4900
Pyydä lisätietoa
