Myydään tuotantotilat, varastotilat, autotalli/-hallitilat - Porvoo
Timpurinkuja 5, 06150 Porvoo #10772581
Myynnissä uudenveroinen hallikiinteistö Porvoossa! Velaton myyntihinta: 830'000 €
Osoite
Timpurinkuja 5, 06150 Porvoo
Tilatyyppi
Tuotantotilaa
725 m2
Varastotilaa
725 m2
Autotalli/-hallitilaa
725 m2
Yhteensä
725 m2
Pohjapiirros
Virtuaaliesittely
Myyntihinta
830'000 €
Muuta
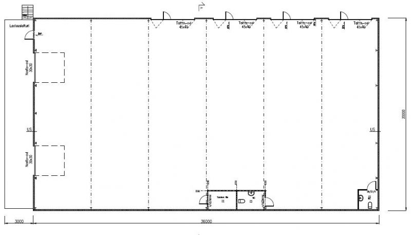
Porvoon Tarmolan teollisuus- ja toimitila-alueella on myynnissä uudenveroinen korkea tuotanto- ja varastokiinteistö.
Rakennuksen pinta-ala on yhteensä noin 720 m² ja se on jaettu neljään erilliseen hallitilaan.
Isoin päätytila on noin 360 m² (leveys 18 metriä ja syvyys 20 metriä.) Tilassa wc ja vesipiste sekä lattiakaivo. Varusteluun kuuluu myös 2 sähkökäyttöistä nosto-ovea ja yksi iso paljeovi (L4,5 m x K4,5 m). Paljeoven edessä on tasamaa ja piha-aluetta. Nosto-ovet ovat mitoiltaan L3,0 m x K3,0 m ja ovien edessä on noin 80 cm korkuinen lastauslaituri. Laiturin syvyys on 2,5 metriä ja pituus 20 metriä.
Rakennuksen kaksi muuta tilaa ovat pienempiä tuotanto- ja varastotiloja. Toinen tiloista 245 m² ja se koostuu kahdesta yhdistetystä hallitilasta (leveys 12 metriä ja syvyys 20 metriä). Varusteluun kuuluu iso parvi, jonka päällä toimistotila. Tilassa wc ja vesipisteet sekä lattiakaivot ja isot paljeovet (L4,5 m x K4,5 m).
Pienin tila on pinta-alaltaan 120 m² (leveys 6 metriä ja syvyys 20 metriä). Tilan varusteluun kuuluu vesipiste, wc ja lattiakaivo. Hallin sisätilan korkeus kaikissa tiloissa on enimmillään noin 10 metriä.
Lämmitysmuoto rakennuksessa on maalämpö.
Iso päätytila (360 m² tila) on tällä hetkellä vuokraamatta, muissa tiloissa on pitkäaikaiset, hyvät vuokralaiset. Neliövuokrat noin 8,8–9,7 €/m²/kk.
Rakennukset sijaitsevat hyvällä paikalla Tarmolassa, josta lyhyt matka Porvoon moottoritielle.
Lastauslaiturillista hallitilaa hyvällä sijainnilla!
Kohdetiedot
Sijainti
Katuosoite: Timpurinkuja 5, 06150 Porvoo
Kaupunginosa: Tarmola
Ympäristö: Teollisuus- ja toimitila-alue
Tontti
Pinta-ala: 2517 m²
Omistus: Porvoon kaupunki
Asemakaava: Teollisuus- ja varastorakennusten korttelialue e=0,4 II
Rakennus
Pinta-alat: 725 m²
Kiinteistötyyppi: Varastorakennus
Rakennusvuosi: 2018
Energiatodistus: Ei lain edellyttämää todistus
Varusteet: Uudenveroiset tilat, lastauslaituri, ovipuhaltimet, isot paljeovet, lattiakaivoja, vesipisteitä, wc, hyvä valaistus, koneellinen poistoilma, automaattinen savunpoisto, kameravalvonta, hälyttimet, kauko-ohjattavat lukot
Lämmitys: Maalämpö
Kunto, varusteet ja palvelut: Hyvässä kunnossa olevat tilat
Pysäköinti: Pihassa
Myyntihinta ja kulut
Velaton myyntihinta: 830'000 €
Kiinteistövero: 5 870,03 €
Kiinteistövakuutus: 1 088,95 €
Sähkö: 9 036,77 €/vuodessa (laskutetaan pääosin vuokralaisilta)
Tonttivuokra: 3 067,85 €/vuodessa
Vuokratulot: Noin 8,8–9,70 €/m²/kk
Rakennuksen pinta-ala on yhteensä noin 720 m² ja se on jaettu neljään erilliseen hallitilaan.
Isoin päätytila on noin 360 m² (leveys 18 metriä ja syvyys 20 metriä.) Tilassa wc ja vesipiste sekä lattiakaivo. Varusteluun kuuluu myös 2 sähkökäyttöistä nosto-ovea ja yksi iso paljeovi (L4,5 m x K4,5 m). Paljeoven edessä on tasamaa ja piha-aluetta. Nosto-ovet ovat mitoiltaan L3,0 m x K3,0 m ja ovien edessä on noin 80 cm korkuinen lastauslaituri. Laiturin syvyys on 2,5 metriä ja pituus 20 metriä.
Rakennuksen kaksi muuta tilaa ovat pienempiä tuotanto- ja varastotiloja. Toinen tiloista 245 m² ja se koostuu kahdesta yhdistetystä hallitilasta (leveys 12 metriä ja syvyys 20 metriä). Varusteluun kuuluu iso parvi, jonka päällä toimistotila. Tilassa wc ja vesipisteet sekä lattiakaivot ja isot paljeovet (L4,5 m x K4,5 m).
Pienin tila on pinta-alaltaan 120 m² (leveys 6 metriä ja syvyys 20 metriä). Tilan varusteluun kuuluu vesipiste, wc ja lattiakaivo. Hallin sisätilan korkeus kaikissa tiloissa on enimmillään noin 10 metriä.
Lämmitysmuoto rakennuksessa on maalämpö.
Iso päätytila (360 m² tila) on tällä hetkellä vuokraamatta, muissa tiloissa on pitkäaikaiset, hyvät vuokralaiset. Neliövuokrat noin 8,8–9,7 €/m²/kk.
Rakennukset sijaitsevat hyvällä paikalla Tarmolassa, josta lyhyt matka Porvoon moottoritielle.
Lastauslaiturillista hallitilaa hyvällä sijainnilla!
Kohdetiedot
Sijainti
Katuosoite: Timpurinkuja 5, 06150 Porvoo
Kaupunginosa: Tarmola
Ympäristö: Teollisuus- ja toimitila-alue
Tontti
Pinta-ala: 2517 m²
Omistus: Porvoon kaupunki
Asemakaava: Teollisuus- ja varastorakennusten korttelialue e=0,4 II
Rakennus
Pinta-alat: 725 m²
Kiinteistötyyppi: Varastorakennus
Rakennusvuosi: 2018
Energiatodistus: Ei lain edellyttämää todistus
Varusteet: Uudenveroiset tilat, lastauslaituri, ovipuhaltimet, isot paljeovet, lattiakaivoja, vesipisteitä, wc, hyvä valaistus, koneellinen poistoilma, automaattinen savunpoisto, kameravalvonta, hälyttimet, kauko-ohjattavat lukot
Lämmitys: Maalämpö
Kunto, varusteet ja palvelut: Hyvässä kunnossa olevat tilat
Pysäköinti: Pihassa
Myyntihinta ja kulut
Velaton myyntihinta: 830'000 €
Kiinteistövero: 5 870,03 €
Kiinteistövakuutus: 1 088,95 €
Sähkö: 9 036,77 €/vuodessa (laskutetaan pääosin vuokralaisilta)
Tonttivuokra: 3 067,85 €/vuodessa
Vuokratulot: Noin 8,8–9,70 €/m²/kk
Vapautuu
Heti
Rakennusvuosi
2018
Katutasossa
Näkyvällä paikalla
Lastauslaituri
Ota yhteyttä
Tilat.fi
KTM, LKV Antti Soivio
Näytä puhelinnumero
0400 446 553
OTM, LKV Riikka Tuominen
Näytä puhelinnumero
0400 551 790
KTM, LKV Maria-Sofia Puhakka
Näytä puhelinnumero
0400-150330
MBA, LKV Susanne Wallenius
Näytä puhelinnumero
0400-128877
LKV Tilat.fi Oy on toimitilojen välitykseen erikoistunut yritys.
http://www.tilat.fiPyydä lisätietoa
