Vuokrataan toimistotilat, tuotantotilat, varastotilat - Helsinki
Sorvaajankatu 11 a, Herttoniemi, 00880 Helsinki #10772552
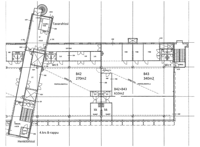
SORVAAJANKATU 11a - toimisto-/tuotanto-/varastotila 610m2
Tämä 4. krs monikäyttöinen tila sijaitsee kiinteistön B-rapussa. Käynti henkilöhissillä. Erittäin korkean avotilan lisäksi myös pienempiä huoneita ja iso neuvottelutila. Tilakokonaisuudessa myös 2 keittiö- ja 4 wc-tilaa.
Tavarahuolto hoituu katetun lastauslaiturin (jossa nostin)/tavarahissin kautta.
KATSO TILAN VIRTUAALIESITTELY!
Lisätiedot ja kohdenäytöt: p. 040 7070 321 / HeikkiKerros: 4
Osoite
Sorvaajankatu 11 a, 00880 Helsinki
Tilatyyppi
Toimistotilaa
610 m2
Tuotantotilaa
610 m2
Varastotilaa
610 m2
Yhteensä
610 m2
Kulkuyhteydet
Metro: Herttoniemi 850 m / Siilitie 1,6 km -
Bussipysäkki: 300 m (linjat 79/500) ja 450 m (linjat 80/82/82B/83/94N) -
Itäväylälle autolla: 600 m
Bussipysäkki: 300 m (linjat 79/500) ja 450 m (linjat 80/82/82B/83/94N) -
Itäväylälle autolla: 600 m
Ota yhteyttä
CRE PREMISES
Puh. Näytä puhelinnumero 020 7290 710
Vantaankoskentie 14
01670 VANTAA
Pyydä lisätietoa
