Vuokrataan toimistotilat, tuotantotilat - Helsinki
Pulttitie 16, Roihupelto, 00880 Helsinki #10772540
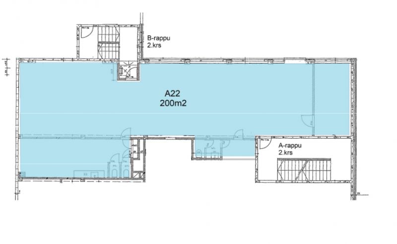
PULTTITIE 16 - 200m2
Vuokrattavana edullinen 2. kerroksen toimisto-/tuotantotila. Tila pitää sisällään ison avotilan lisäksi pienemmän huoneen, keittiön ja 3 wc tilaa. Ei hissiä.
Lisätiedot ja kohdenäytöt: p. 040 7070 321 / HeikkiKerros: 2
Osoite
Pulttitie 16, 00880 Helsinki
Tilatyyppi
Toimistotilaa
200 m2
Tuotantotilaa
200 m2
Yhteensä
200 m2
Kulkuyhteydet
Metro Siilitie: 1,4 km -
Bussipysäkki: 600 m (linjat 80/92N/500) -
Autolla Itäväylälle: 900 m
Bussipysäkki: 600 m (linjat 80/92N/500) -
Autolla Itäväylälle: 900 m
Ota yhteyttä
CRE PREMISES
Puh. Näytä puhelinnumero 020 7290 710
Vantaankoskentie 14
01670 VANTAA
Pyydä lisätietoa
