Vuokrataan toimistotilat, liiketilat, tuotantotilat, varastotilat, työtilat, autotalli/-hallitilat, muut tilat - Jyväskylä
yritystie 6, Seppälänkangas, 40320 Jyväskylä #10772499
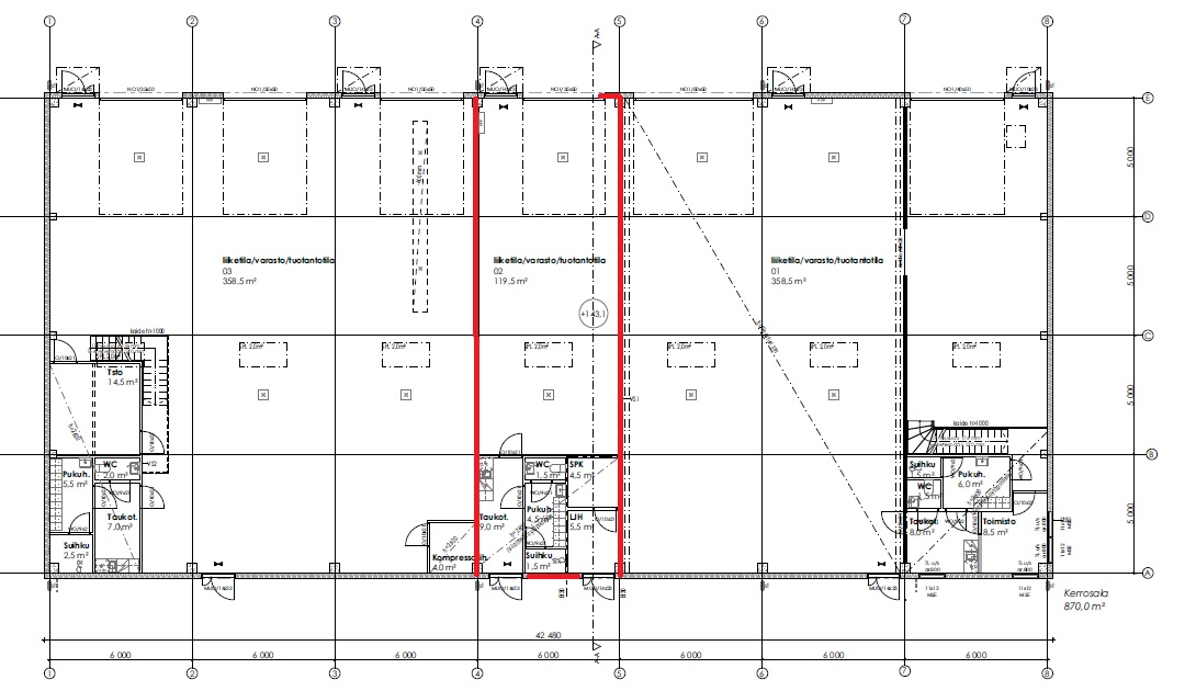
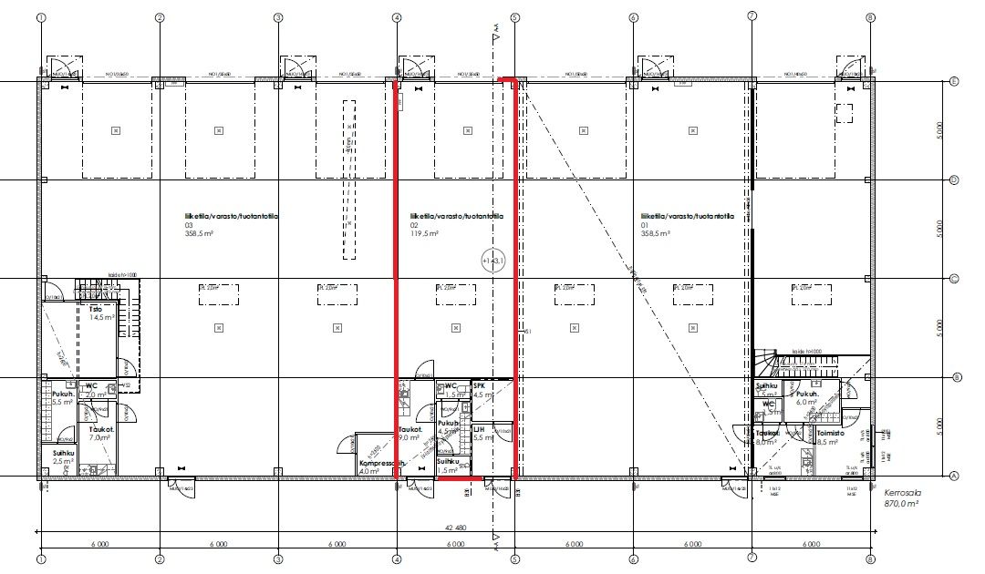
Tämä uudiskohde valmistuu touko- / kesäkuussa 2026. Uudiskohde tuotantona Liike-, Tuotanto-, Varasto-, Logistiikka- ja Toimistokohde Jyväskylän Palokankaalla.
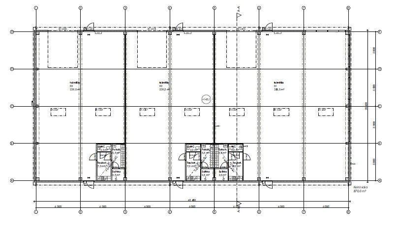
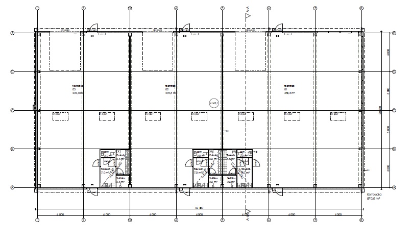
Kohteessa on vapaana vielä n. 109 m2 tila. Tilan varusteluun voi vielä vaikuttaa. Hallin leveys 6 metriä ja pituus 15 metriä. Alakertaan on suunniteltu taukotila keittiövarustuksella, pukuhuone, wc ja suihku. Parvitilaan voidaan tehdä toimistotiloja tarpeen mukaan.
Nämä uudet, nykyaikaiset, laadukkaat ja monipuoliset tilat sijaitsevat Palokankaan alueella hyvien kulkuyhteyksien varrella. Tilat suunnitellaan ja räätälöidään käyttäjän tarpeiden mukaan. Kohde tulee lämpiämään kaukolämmöllä. Reilun kokoinen yhteiskäyttöpiha.
- Uusi ja moderni rakennus
- Soveltuu Liike-, tuotanto-, varastointi-, logistiikka- ja toimistokäyttöön
- Monipuoliset mahdollisuudet räätälöidä tilat tarpeen mukaan
- Korkeat kattoa korkeudet n. 7 m ja mahdollisuus tehdä siltanosturi
- Nosto-ovi leveys 3,5 m ja korkeus 5 m
- Hyvin pysäköintitilaa
- Mahdollisuus tehdä pihakatos
- Hyvä sijainti Palokankaan alueella
- Muuttamaan pääsee alkukesästä 2026
- Kohde tulee lämpiämään kaukolämmöllä
- Kohteen kaava merkintä on T, Teollisuus- ja varastorakennusten korttelialue
Lisätiedot ja yhteydenotot: Henri Kumpulainen, Puh: 040 864 3631 tai sähköpostitse henri.kumpulainen@aveon.fi
Uudiskohde
Katutasossa
Näkyvällä paikalla
Lastauslaituri
Siltanosturi
Aveon Real Estate Oy
Kauppakatu 18 C 26, 40100 Jyväskylä
Henri Kumpulainen
Puh.
Näytä puhelinnumero
040 864 3631
henri.kumpulainen@aveon.fi
Olemme kiinteistöliiketoiminnan asiantuntija, joka toimii yrittäjämäisesti neuvonantajana kiinteistökaupoissa, toimitilavälittämisessä sekä kiinteistökehityksessä.
Asiakkaitamme ovat kotimaiset ja ulkomaiset kiinteistönomistajat, -sijoittajat sekä tilojen käyttäjät kaikkialla Suomessa.
