Myydään toimistotilat, tuotantotilat, muut tilat - Oulu
Ratamotie 64, 90800 Oulu #10770056
Myydään sijoituskohteeksi "Patelasta" hyvässä kunnossa oleva korjaamohalli, jossa Autokorjaamo Vepsäläinen on toiminut vuokralaisena jo vuodesta 2006.
Osoite
Ratamotie 64, 90800 Oulu
Tilatyyppi
Toimistotilaa
121 m2
Tuotantotilaa
377 m2
Muuta tilaa
85 m2
Yhteensä
583 m2
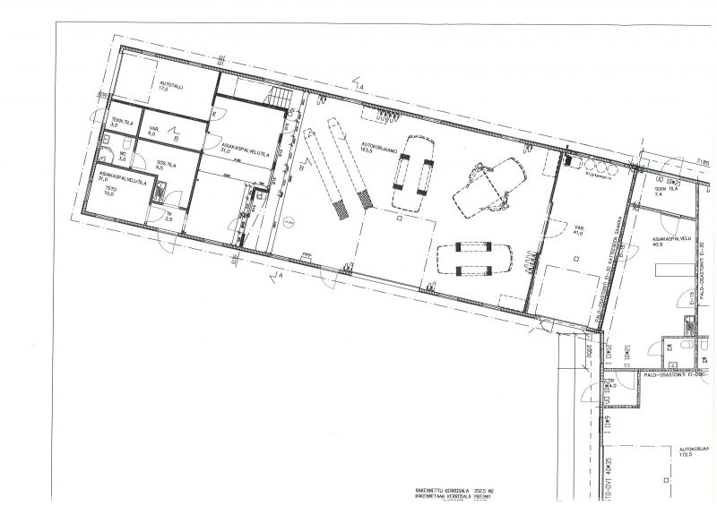
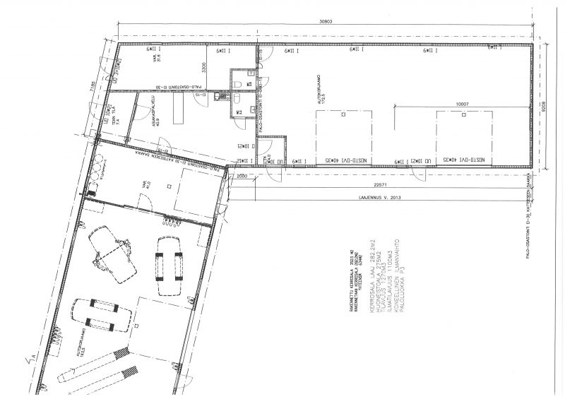
Tilajako
Kokonaispinta-ala 635m²
Muut tilat sisältävät varastoa, autotallin, sos.tilat sekä tekniset tilat
Pohjapiirros
Myyntihinta
Velattomana 550.000€
Kiinteistö
Oulun kaupungin vuokratontti, vuokrasopimus voimassa 31.12.2030 saakka
Sijainti
Ratamotien Patelan puoleisessa päässä
Pysäköinti
Piha-alueella n. 30 autopaikkaa
Palvelut
Rajakylän ja Patelan, Ritaharjuun n. 2km
Kulkuyhteydet
Bussit Ratamotietä ja Haukiputaantietä pitkin
Vuokralaisia
Autokorjaamo Vepsäläinen, vuokrasopimus juuri uusittu seuraavaksi 5 vuodeksi. Vuokra kaikista tiloista yht. 6000€/kk + alv. Vuokralainen maksaa lisäksi lämmityksen, sähkön ja veden.Omistajalle jäävät kulut n. 500€/kk.
Muuta
Alkuperäinen halli 353m² on rakennettu 1996 ja laajennusosa 282m² on rakennettu 2014. Laajennusosassa maalämpö, joka voidaan myös nykyisin laittein laajentaa alkuperäiselle puolelle.
Vanhan halliosan korkeus 5,1m ja uuden 4,0m. Halleissa öljyn-ja hiekanerotuskaivot.
Hyväksytty tulityöpaikaksi 2014.
Vanhan halliosan korkeus 5,1m ja uuden 4,0m. Halleissa öljyn-ja hiekanerotuskaivot.
Hyväksytty tulityöpaikaksi 2014.
Vapautuu
Vuokrattu
Energiatehokkuusluokka
C2013
E-luku
61 kWhE/m²/vuosi
Näkyvällä paikalla
Liitetiedostot
Ota yhteyttä
Pohjois-Suomen Toimitilat Oy
Sepänkatu 20, 90100 Oulu
Pekka Valkola
Näytä puhelinnumero
044 311 0555
Pyydä lisätietoa
