Vuokrataan toimistotilat - Helsinki
Mannerheimintie 15B, Töölö, 00260 Helsinki #10769469
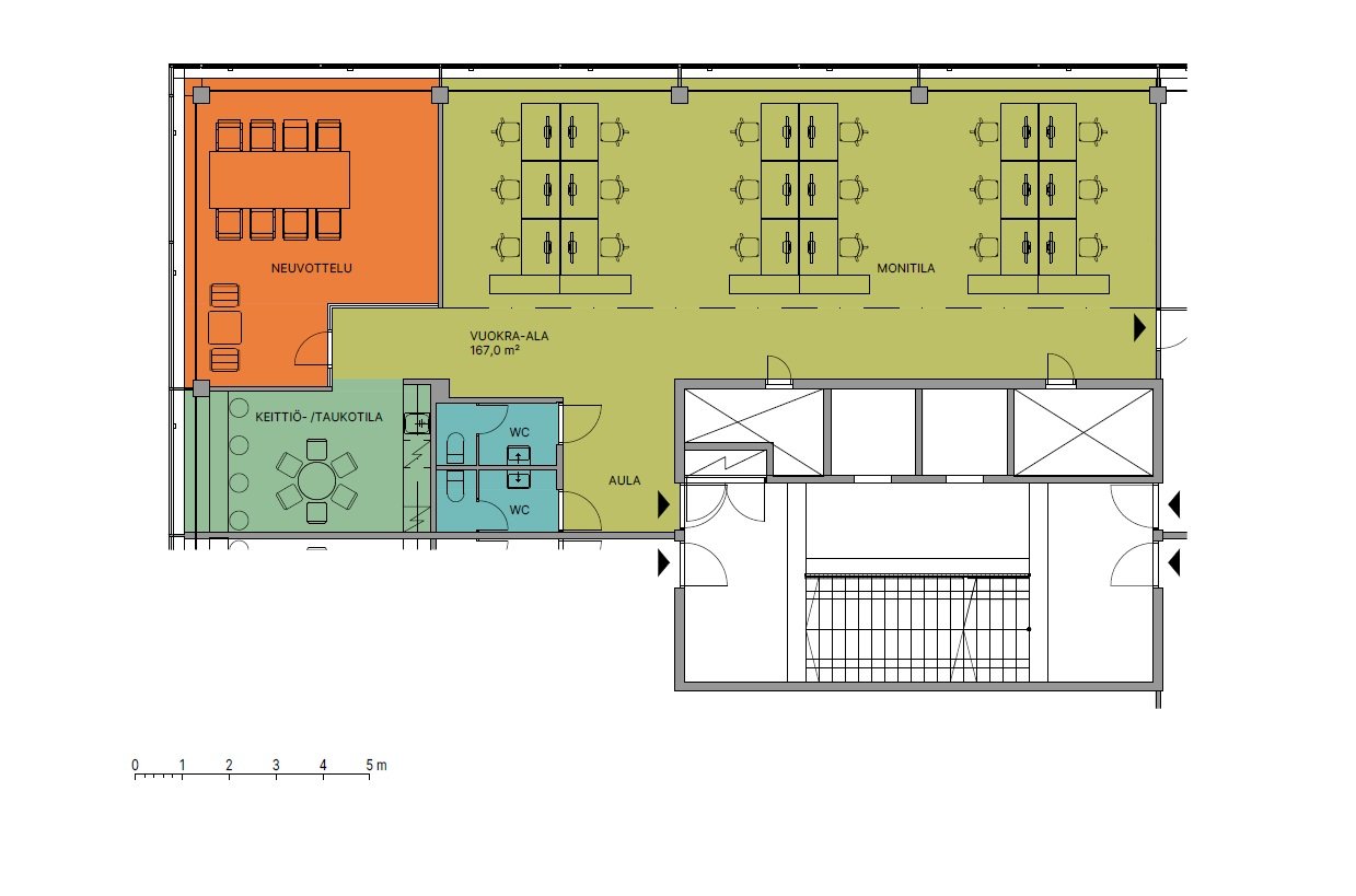
Huikea mahdollisuus tehdä omannäköinen toimisto. Kiinteistön kolmannen kerroksen suurempi tila voidaan jakaa 2-6 käyttäjälle josta tämä 167 m2 olisi yksi tila. Ohessa muutama virtuaalikuva siitä mikä kaikki ehostuksella tilaan on mahdollista eli tila rakennetaan ja remontoidaan tulevan käyttäjän tarpeen ja toiveiden mukaan. Vuokrataso on järkevä vaikka lyhyt matka jalan tai ratikalla / bussilla vaikkapa Rautatieasemalle tai Pasilaan.
Todella uniikilla sijainnilla, Oopperatalon edessä sijaitseva Mannerheimintie 15 koostuu kahdesta rakennuksesta eli A ja B. Näistä A on entinen Töölön Sokeritehtaan toimistotalo ja B myöhemmin rakennettu, lasinen pääkonttorirakennus. Siksi nimi Sakkaroosi kokonaisuudelle on annettu.
Julkisilla yhteydet ovat loistavat, sillä talot sijaitsevat Mannerheimintien, Runeberginkadun ja Helsinginkadun risteyksessä, joka on raitioliikenteen solmukohta. Vieressä sijaitsevat isot hotellit, runsaasti kulttuuria ja ravintoloita, ja lisäksi ydinkeskustaan on matkaa vain alle kaksi kilometriä.
Croisette on uusi ja innovatiivinen toimitilojen välitysyritys Suomessa. Meillä on vahva halu auttaa teitä löytämään paras toimitilaratkaisu mahdollisimman vaivattomasti.
Huomaathan, että kaikki vapaat ja vapautuvat tilat ovat kauttamme saatavilla. Osa tiloista on hiljaisessa markkinoinnissa, mutta ottamalla meihin yhteyttä saat nekin tietoosi.
Palvelumme on tilanhakijoille täysin maksutonta.
Croisette Real Estate Partner
Erottajankatu 5 A 6, 00130 Helsinki
Näytä puhelinnumero
+358 400 585 857
Croisette Vuokraus
Näytä puhelinnumero
+358400585857
